297 BRITANNIA Ave, Hamilton, Ontario L8H 1Y2
Contact us about this property
Highlights
Estimated valueThis is the price Wahi expects this property to sell for.
The calculation is powered by our Instant Home Value Estimate, which uses current market and property price trends to estimate your home’s value with a 90% accuracy rate.Not available
Price/Sqft$602/sqft
Monthly cost
Open Calculator
Description
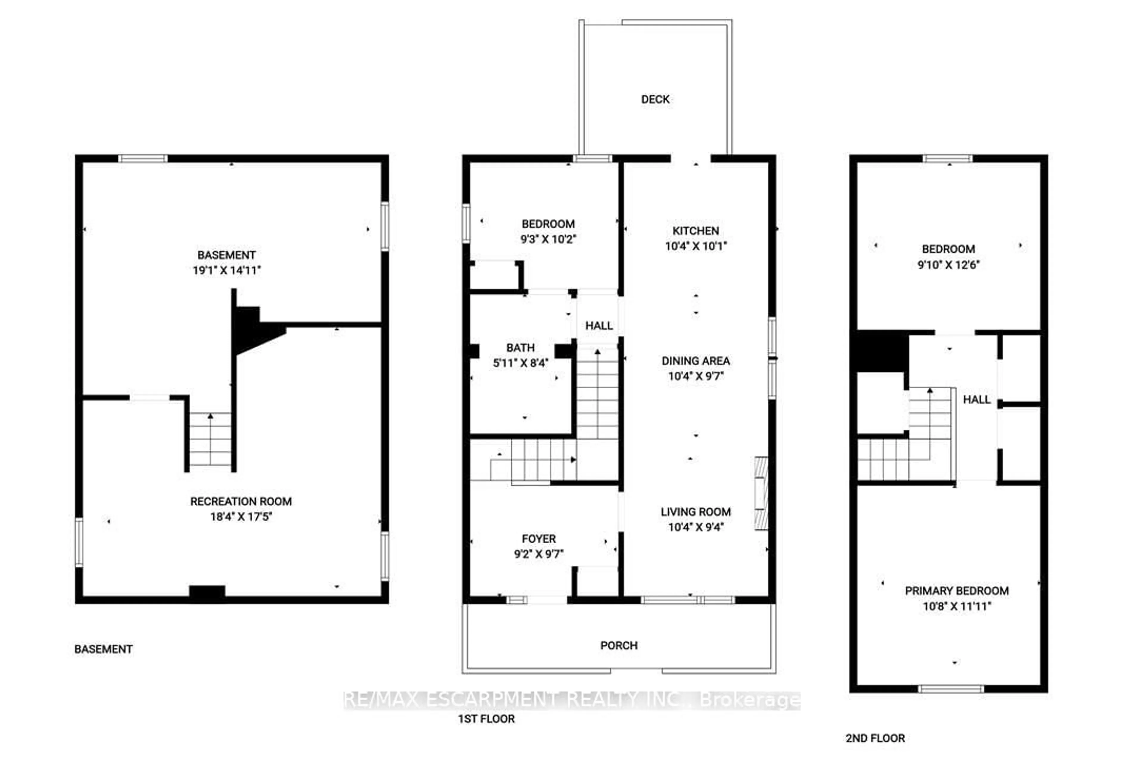
RENOVATED HOUSE at an excellent location, over 1300 SF of finished living area. Open Concept main floor. Upgrades include a Brand New Custom Kitchen, Stainless steel appliances & fresh neutral paint throughout the house. New Laminate Flooring, New doors/trims/baseboard, lots of pot lights & modern lights fixtures. Renovated 4 Pcs Full bathroom. Partially finished full basement, with large Rec-room. All new windows with Transferable Warranty. House is located close to school, public transit, shopping and other amenities. Show with pride, a must see. Room sizes and square feet are approximate. Room size measurements are taken at widest points.
Property Details
Interior
Features
Main Floor
Living
5.79 x 6.2Combined W/Dining
Kitchen
3.15 x 3.07Primary
3.12 x 2.82Bathroom
0.0 x 0.04 Pc Bath
Exterior
Features
Property History
46



























