54 Birch Ave, Hamilton, Ontario L8L 6H7
Contact us about this property
Highlights
Estimated valueThis is the price Wahi expects this property to sell for.
The calculation is powered by our Instant Home Value Estimate, which uses current market and property price trends to estimate your home’s value with a 90% accuracy rate.Not available
Price/Sqft$457/sqft
Monthly cost
Open Calculator

Curious about what homes are selling for in this area?
Get a report on comparable homes with helpful insights and trends.
+5
Properties sold*
$540K
Median sold price*
*Based on last 30 days
Description
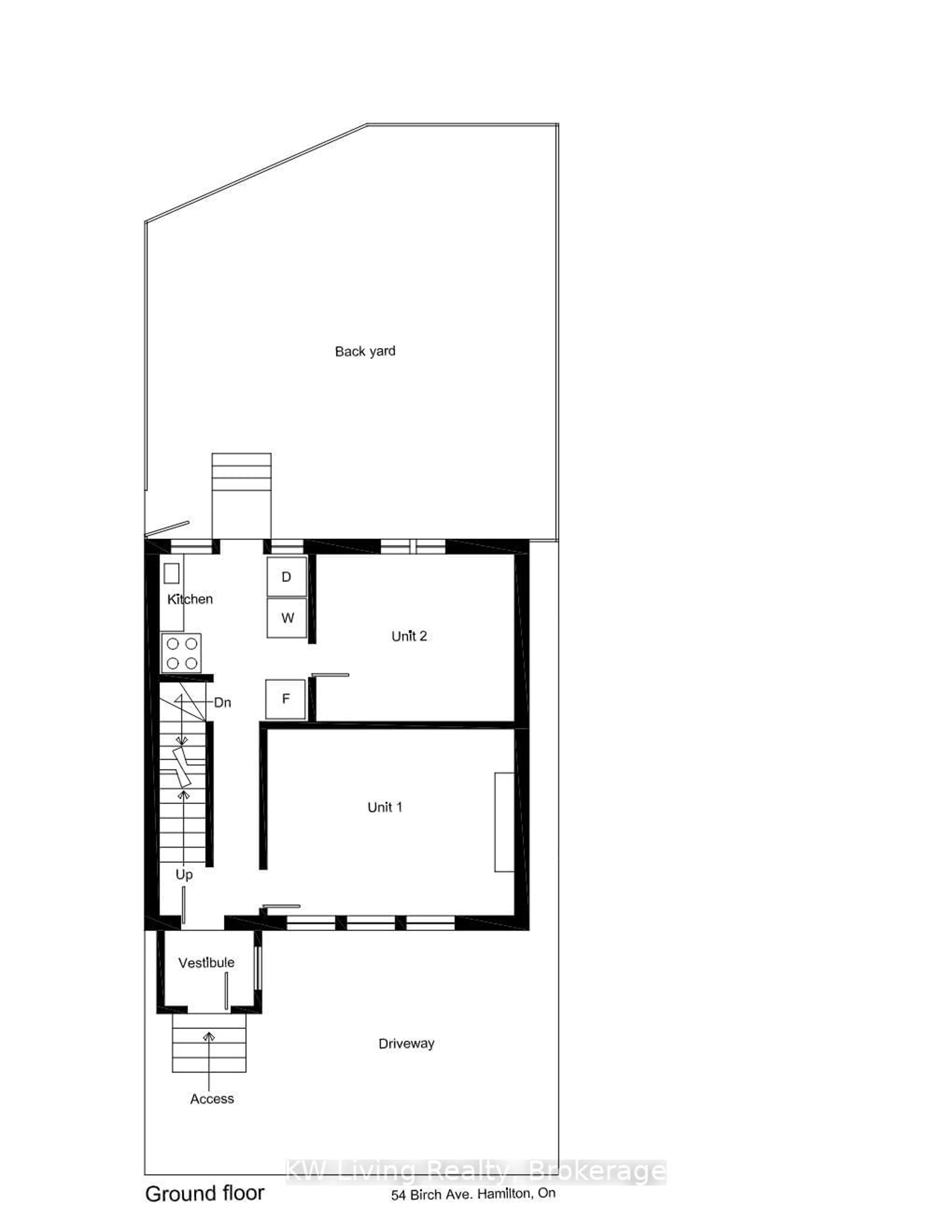
ATTENTION,INVESTORS AND RENOVATORS! Passive Income Opportunity - Turnkey Rental. Exceptional investment opportunity. Rental income $5,700/month + coin laundry $200/month. Potentially convert into a Triplex Property. Detached house with 5 bedrooms, family Room on 3rd Floor, large backyard and & basement apartment with separate entrance. Property sold as is. Renovation & property management services available by seller upon agreement.
Property Details
Interior
Features
Main Floor
Foyer
3.12 x 1.88Exterior
Features
Parking
Garage spaces 1
Garage type None
Other parking spaces 0
Total parking spaces 1
Property History
32


























