100 Promenade Circ #608, Vaughan, Ontario L4J 7W7
Contact us about this property
Highlights
Estimated valueThis is the price Wahi expects this property to sell for.
The calculation is powered by our Instant Home Value Estimate, which uses current market and property price trends to estimate your home’s value with a 90% accuracy rate.Not available
Price/Sqft$682/sqft
Monthly cost
Open Calculator
Description
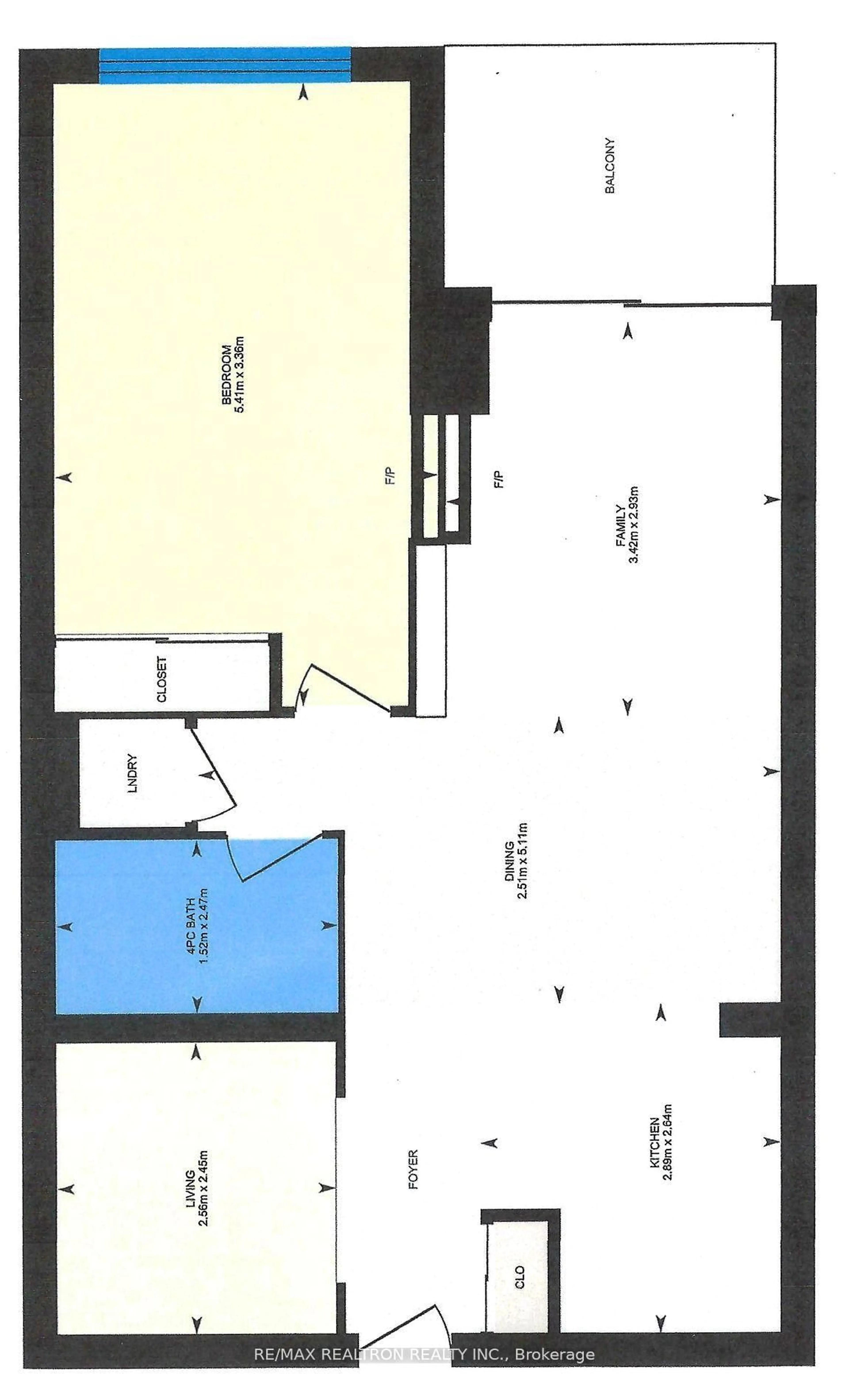
Welcome to this bright 1-bedroom plus den condo perfectly located in one of Thornhill's most sought-after communities and buildings. This thoughtfully designed suite features an open-concept layout with large floor to ceiling windows windows and wonderfulfinishes.The kitchen offers stainless steel appliances, granite countertops, and ample storage, ideal for cooking or entertaining. The versatile den provides the perfect space for a home office, guest room, or reading nook. The primary bedroom is complete with a large double closet and plenty of natural light. Enjoy your private balcony with beautiful views, in-suite laundry, and premium building amenities including a fitness centre, party room, 24-hour concierge, and visitor parking.Located just steps to shopping, restaurants, parks, and transit - with easy access to highways 407 and 7 - this condo combines convenience and comfort living in one exceptional package. Perfect for first-time buyers, professionals, or investors alike.
Property Details
Interior
Features
Main Floor
Kitchen
2.89 x 2.64Stainless Steel Appl / Granite Counter / Double Sink
Dining
3.82 x 2.53Laminate / Crown Moulding / Combined W/Living
Living
3.21 x 2.53W/O To Balcony / Crown Moulding / Laminate
Primary
5.28 x 3.36Window Flr to Ceil / Double Closet / East View
Exterior
Features
Parking
Garage spaces 1
Garage type Underground
Other parking spaces 0
Total parking spaces 1
Condo Details
Inclusions
Property History
13























