36 Harold Wilson Lane #Lot 34, Richmond Hill, Ontario L4S 1N5
Contact us about this property
Highlights
Estimated valueThis is the price Wahi expects this property to sell for.
The calculation is powered by our Instant Home Value Estimate, which uses current market and property price trends to estimate your home’s value with a 90% accuracy rate.Not available
Price/Sqft$565/sqft
Monthly cost
Open Calculator
Description
Award-Winning Quality! Own at Townsquare by OPUS Homes (2021 & 2024 BILD Builder of the Year). This south-facing, back-to-back gem features a roomy 3-bedroom floor plan with plenty of space for a growing family. Loaded with upgrades and built with OPUS's signature Green Initiatives for superior energy efficiency and lower utility costs. Includes 2-car parking. An incredible opportunity for First-Time Buyers to secure the HST Rebate in a prime Richmond Hill location. Don't miss this remarkable, energy-conscious family home!
Property Details
Interior
Features
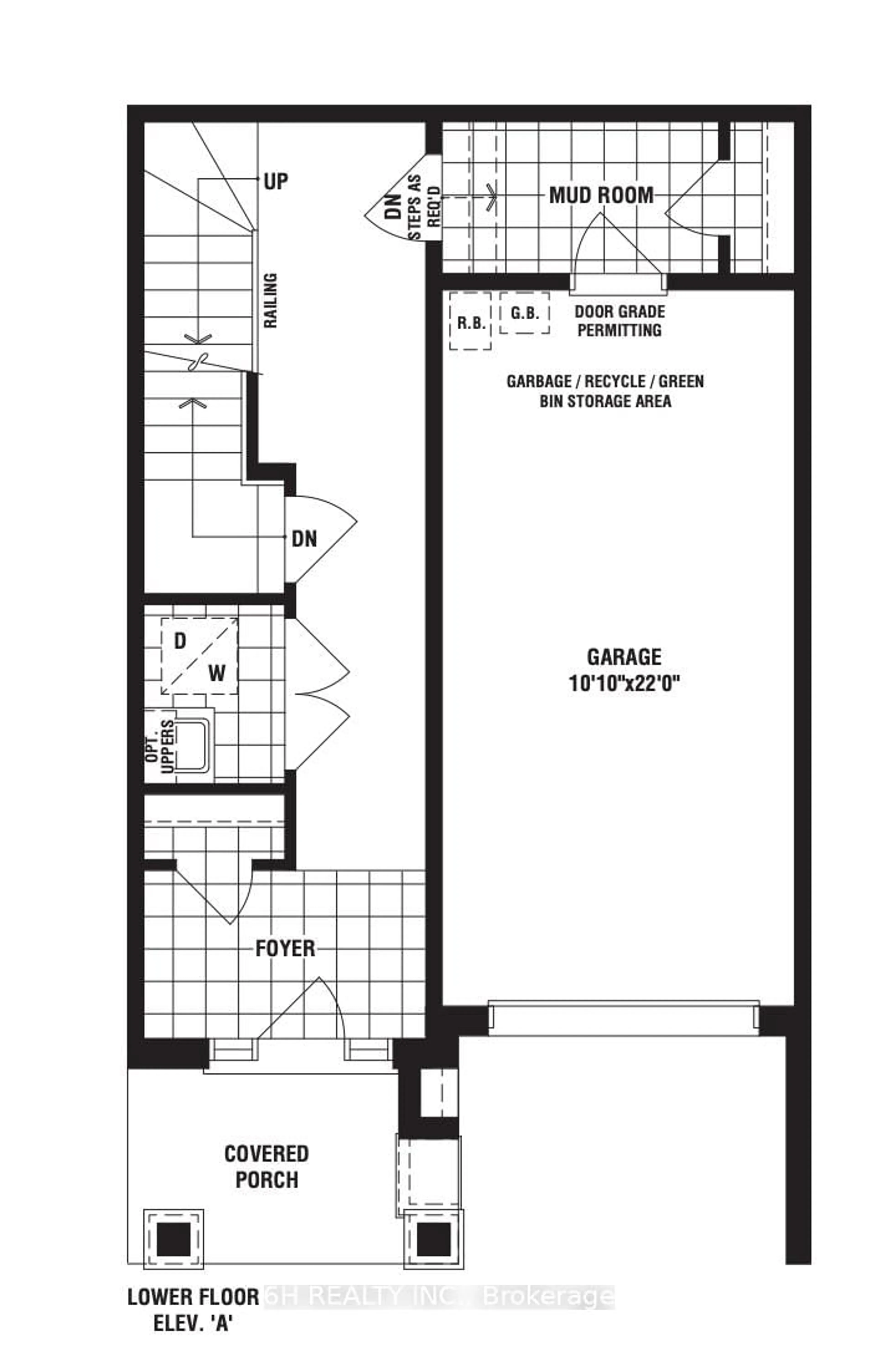
Lower Floor
Foyer
1.68 x 2.64Tile Floor / Open Concept / Closet
Exterior
Features
Parking
Garage spaces 1
Garage type Attached
Other parking spaces 1
Total parking spaces 2
Property History
4



















