268 Buchanan Dr #111W, Markham, Ontario L3R 8G9
Contact us about this property
Highlights
Estimated valueThis is the price Wahi expects this property to sell for.
The calculation is powered by our Instant Home Value Estimate, which uses current market and property price trends to estimate your home’s value with a 90% accuracy rate.Not available
Price/Sqft$873/sqft
Monthly cost
Open Calculator
Description
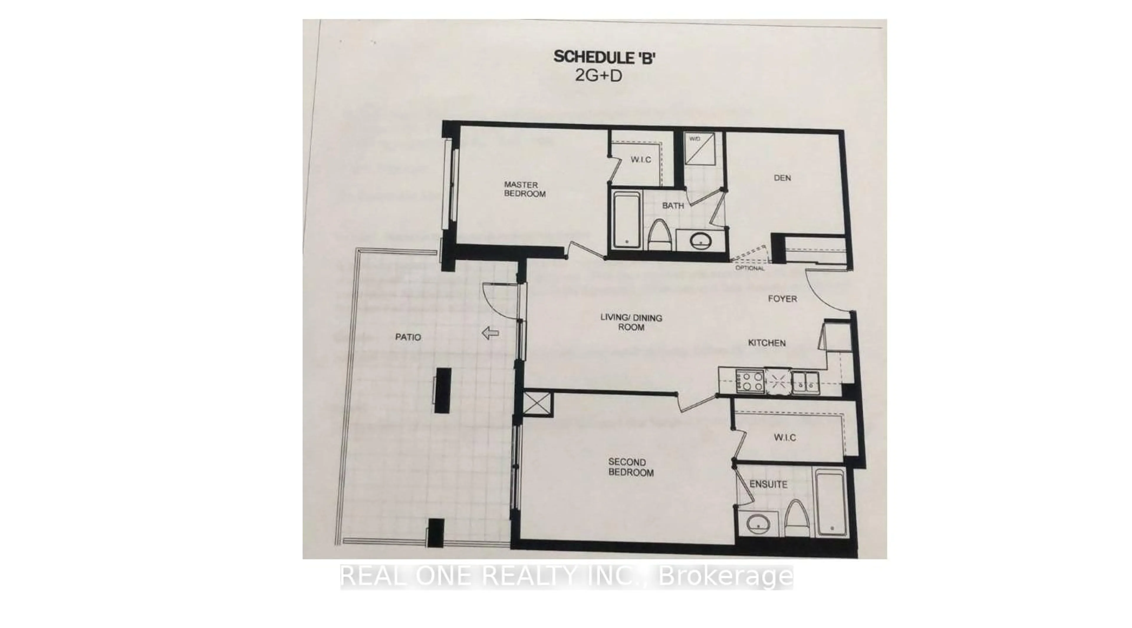
Rarely offered Main Floor 2 Bedroom +Den (Den can be used as 3rd bed) ) 2 Bathroom suite featuring approximately 900 sq ft of interior living space plus a 200 sq ft enclosed private patio in Ultra Luxury Unionville Gardens - perfect for outdoor relaxation or entertaining. Enjoy soaring 10 ft ceilings and convenient ground-level access with no elevator required.This west-facing unit is exceptionally quiet and filled with abundant natural light. Functional split-bedroom layout offers privacy, complemented by wide plank laminate flooring throughout. Spacious den is large enough to accommodate a double bed - ideal for a third bedroom, home office, or guest space.Located directly across from Whole Foods Plaza and steps to transit for ultimate convenience.Luxury Amenities Include:Indoor pool, hot & cold plunge pools, saunas, Mahjong room, ping pong room,KARAOKE LOUNGE, fully equipped gym, party room, yoga studio, library, sky deck with Tai Chi garden, and guest suites.Situated within top-ranked Coledale Public School and Unionville High School district.Buyer to verify room sizes. Stock Photos(Unit has been freshly painted in designer color).Condo fees include water, heating, cooling, one locker, and one underground parking space. Perfect Unit for Empty Nesters.
Property Details
Interior
Features
Flat Floor
Living
4.26 x 3.07Laminate / West View / W/O To Terrace
Dining
4.26 x 3.07Laminate / Combined W/Kitchen / Open Concept
Kitchen
3.26 x 3.07Laminate
Primary
4.0 x 3.31Laminate
Exterior
Features
Parking
Garage spaces 1
Garage type Underground
Other parking spaces 0
Total parking spaces 1
Condo Details
Inclusions
Property History
46



























