24 Bellbrook Rd, Toronto, Ontario M1S 1J9
Contact us about this property
Highlights
Estimated valueThis is the price Wahi expects this property to sell for.
The calculation is powered by our Instant Home Value Estimate, which uses current market and property price trends to estimate your home’s value with a 90% accuracy rate.Not available
Price/Sqft$587/sqft
Monthly cost
Open Calculator
Description
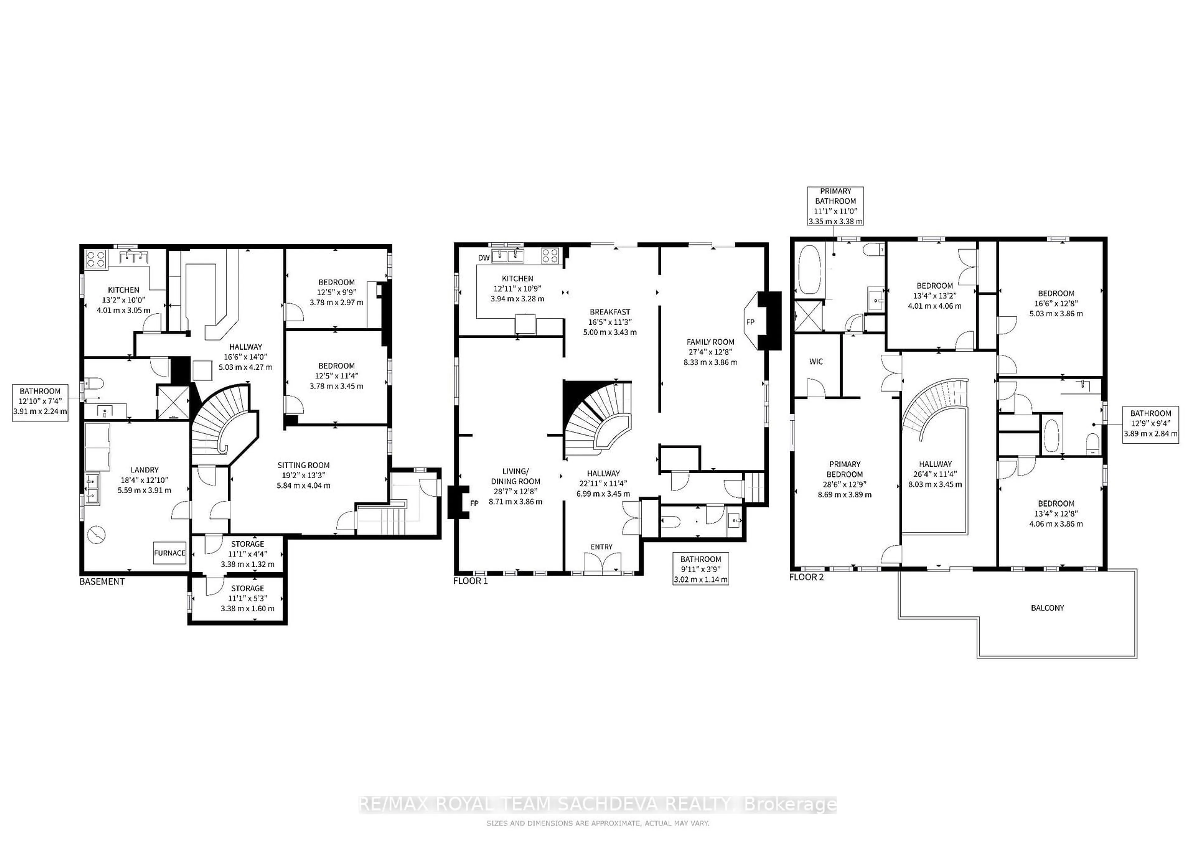
Situated On A Premium 56 X 150 Ft Lot, This All-Brick 3303 sqft + 1631 sqft Basement Home Offers Exceptional Space. Features A 6-Car Driveway .Plus 2-Car Garage-Ideal For Large Or Multi-Generational Families.Step Into A Bright, 22-Ft High Foyer With Porcelain Floors, Crown Moulding & Chandelier. Main Floor Offers Spacious Living/Dining, Cozy Family Room With Fireplace, Renovated Powder Room & Breakfast Area Overlooking The Backyard. Upgraded Kitchen With Granite Countertops, Stainless Steel Appliances & Ample Cabinetry. Walk-Out To Deck & Private Backyard With Mature Cherry Trees-Perfect For Entertaining Or Relaxing.Upper Level Features A Large Primary Bedroom With His & Hers Walk-In Closets, Dressing Area, Renovated Ensuite & Access To A Private Terrace With Open Southeast Views. Three Additional Spacious Bedrooms With Hardwood Floors & Renovated Main Bath.Separate Entrance, Fully Finished Basement With Sitting Room, Rec Room With Wet Bar, Eat-In Kitchen, 2 Bedrooms With Windows, Full Bath, Oversized Laundry & Ample Storage. Upgrades: Roof (2019), Furnace (2017), A/C (2014), Hardwood Floors Upstairs, Laminate Basement, Porcelain Tiles Main Floor, Renovateed Bathrooms, Most Of House Recently Painted, Steel Basement Entrance Door, ADT Alarm System.Welcome To This Well-Maintained, Feature-Packed Home In A Highly Desirable Neighbourhood Near Kennedy & Finch, Close To Huntingwood. Surrounded By Custom Homes In A Quiet, Family-Friendly Community With Excellent Access To Hwy 401 & 404, TTC (Finch & Eglinton), Agincourt Mall, Bridlewood Mall, Schools, Libraries, Parks, Gyms, Tennis Courts & Golf Courses.
Property Details
Interior
Features
Main Floor
Living
8.71 x 3.86Combined W/Dining / hardwood floor
Dining
8.71 x 3.86Combined W/Living / hardwood floor / Crown Moulding
Kitchen
3.94 x 3.25Eat-In Kitchen / Tile Floor / Granite Counter
Breakfast
5.0 x 3.43Combined W/Kitchen / Porcelain Floor / W/O To Yard
Exterior
Features
Parking
Garage spaces 2
Garage type Attached
Other parking spaces 6
Total parking spaces 8
Property History
49











