151 Village Green Sq #506, Toronto, Ontario M1S 0K5
Contact us about this property
Highlights
Estimated valueThis is the price Wahi expects this property to sell for.
The calculation is powered by our Instant Home Value Estimate, which uses current market and property price trends to estimate your home’s value with a 90% accuracy rate.Not available
Price/Sqft$682/sqft
Monthly cost
Open Calculator
Description
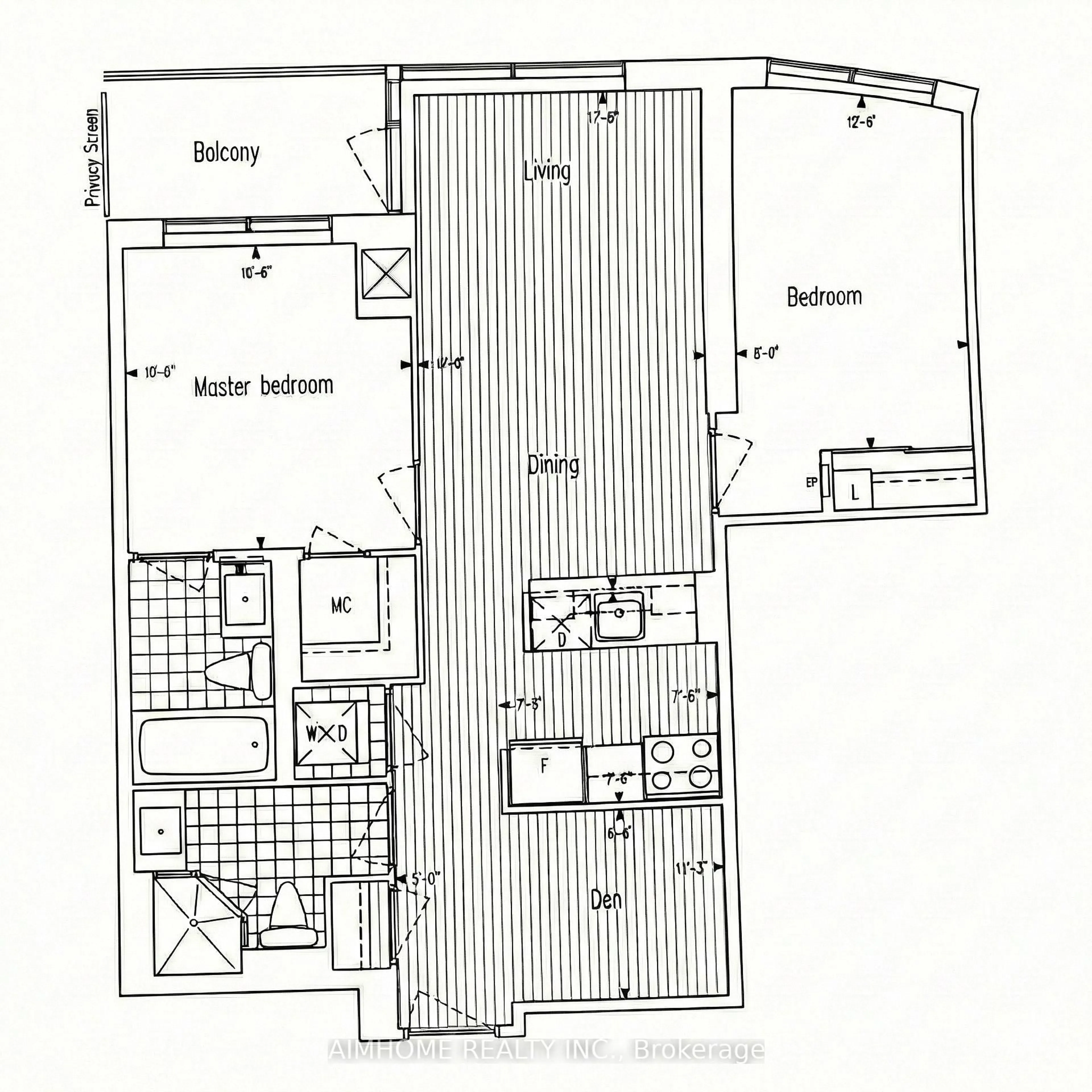
Tridel Luxury Condo! Very Good Location! Hwy 401/ Kennedy! Layout With 2+1 Br. (Large Den Can Be Used As Bedroom Or Home Office). Newer Laminate Flooring Through out (2023), Freshly Painted throughout the entire Unit (2023), Upgraded Fotile Range Hood (2023), New Ceiling Lights (2025). Walk Out Balcony With Sun-Filled Beautiful Park View. Master Bedroom Has Walk In Closet And 4 Pcs Ensuite. Open Concept Living With Modern Kitchen. Luxurious Condo Facilities. 24 Hours Concierge. Minutes To 401, 404 & Dvp. Steps To 24 Hr Transit, Close To Go Stn, Stc, Centennial College, Ut Scarborough. There Is A Bus Stop Of TTC 43C Bus Passes Right By This Building During Morning and Evening Rush Hours, Providing Convenient Transit Access For Daily Commuting. Price Included Upgraded One Large Locker And One Large Parking, Parking And Locker Are Close To Elevator.
Property Details
Interior
Features
Main Floor
Dining
5.33 x 3.05Combined W/Living / Laminate / Open Concept
Kitchen
2.29 x 2.29Marble Counter / Laminate
Primary
3.05 x 3.2W/I Closet / Laminate / 4 Pc Ensuite
2nd Br
3.81 x 2.44B/I Closet / Laminate / Large Window
Exterior
Features
Parking
Garage spaces 1
Garage type Underground
Other parking spaces 0
Total parking spaces 1
Condo Details
Amenities
Concierge, Exercise Room, Guest Suites, Gym, Visitor Parking, Party/Meeting Room
Inclusions
Property History
39

























