455 Wellington St #610, Toronto, Ontario M5J 2R2
Contact us about this property
Highlights
Estimated valueThis is the price Wahi expects this property to sell for.
The calculation is powered by our Instant Home Value Estimate, which uses current market and property price trends to estimate your home’s value with a 90% accuracy rate.Not available
Price/Sqft$1,524/sqft
Monthly cost
Open Calculator
Description
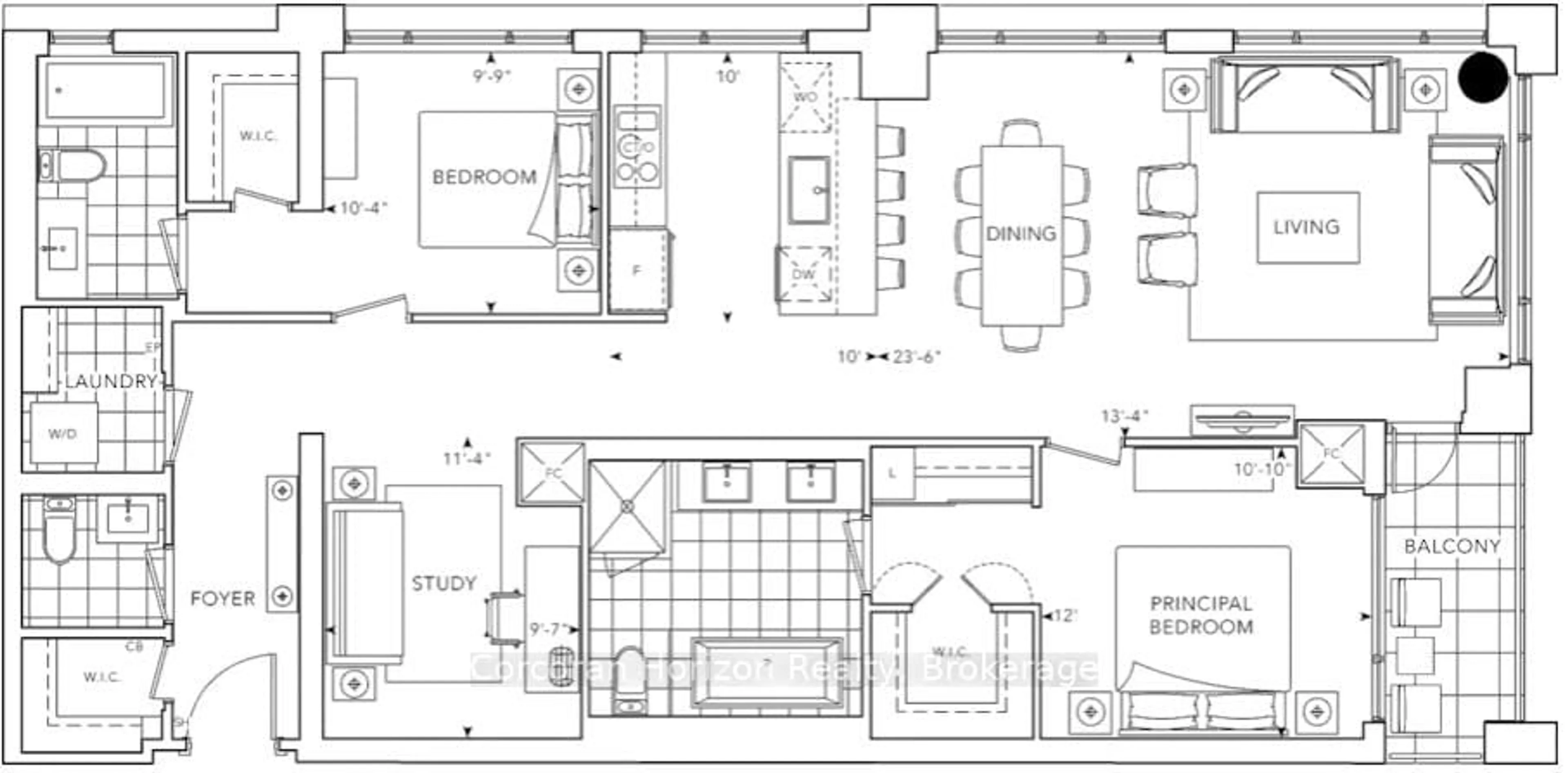
Experience elevated downtown living in the heart of Toronto's vibrant Waterfront Communities. Tridel at The Well is a triumph of design - a luxury boutique condo rising 14 stories on Wellington Street West, overlooking the Grand Promenade below and seamlessly blending modern architectural elegance with the street's historic character. Part of downtown Toronto's most ambitious mixed-use community, this residence offers a lifestyle defined by luxury, convenience, and sophistication. This sun-filled northwest corner suite spans 1,515 sq.ft. and features 2 Bedrooms + Study and 2.5 Bathrooms, with oversized windows that flood the home with natural light and showcase dynamic city views. Thoughtfully designed with a seamless, carpet-free layout, it boasts rich hardwood floors, engineered quartz countertops, and a full suite of premium Miele built-in appliances. The spacious primary retreat is a serene sanctuary, complete with a spa-inspired ensuite and boutique-style his and hers walk-in closets. A generous second bedroom, dedicated study, and beautifully appointed bathrooms provide flexibility and comfort for modern living. Enjoy 24-hour concierge and security along with an exceptional collection of amenities, including a state-of-the-art fitness centre and weight area, private dining room, entertainment lounge, elegant fireplace lounge, and a stunning outdoor pool with tanning deck (seasonal).Complete with 1 parking space and 1 locker, this residence offers a Walk Score of 94 and Transit Score of 100 - placing you steps from world-class dining, shopping, and the energy of Wellington Street West. This is downtown Toronto living at its finest - sophisticated, sunlit, and seamlessly connected to everything the city has to offer.
Upcoming Open House
Property Details
Interior
Features
Ground Floor
2nd Br
3.16 x 3.0W/I Closet
Primary
3.65 x 3.085 Pc Ensuite / W/I Closet
Foyer
4.75 x 1.5Hardwood Floor
Living
6.88 x 4.2Combined W/Dining / hardwood floor
Exterior
Features
Parking
Garage spaces 1
Garage type Underground
Other parking spaces 0
Total parking spaces 1
Condo Details
Amenities
Bike Storage, Elevator, Exercise Room, Gym, Outdoor Pool
Inclusions
Property History
44











