215 Queen St #1810, Toronto, Ontario M5A 1S2
Contact us about this property
Highlights
Estimated valueThis is the price Wahi expects this property to sell for.
The calculation is powered by our Instant Home Value Estimate, which uses current market and property price trends to estimate your home’s value with a 90% accuracy rate.Not available
Price/Sqft$450/sqft
Monthly cost
Open Calculator
Description
Welcome To Smart House Condos Situated In The Heart Of Downtown Toronto! Features Include A Designer High-End Kitchen With Integrated Appliances And Quartz Counters, Large Balcony, Flooring Throughout, A Locker, And The Bathroom Offers A Rainfall & Handheld Shower Head. Amenities Include An Available Party Room & Meeting Room, Outdoor Patio, Concierge, And A Gym. Located On Vibrant Queen Street West & The Financial/Entertainment District, The Building's Excellent Location Provides Great Convenience With Nearby Restaurants And Cafes, Theaters & Concert Halls, Osgoode Subway Station, And The 24/7 Queen Street TTC As Well As A Short Walking Distance To The Eaton Centre, And University Of Toronto. This Well Designed Studio Condo Has A lot To Offer!
Property Details
Interior
Features
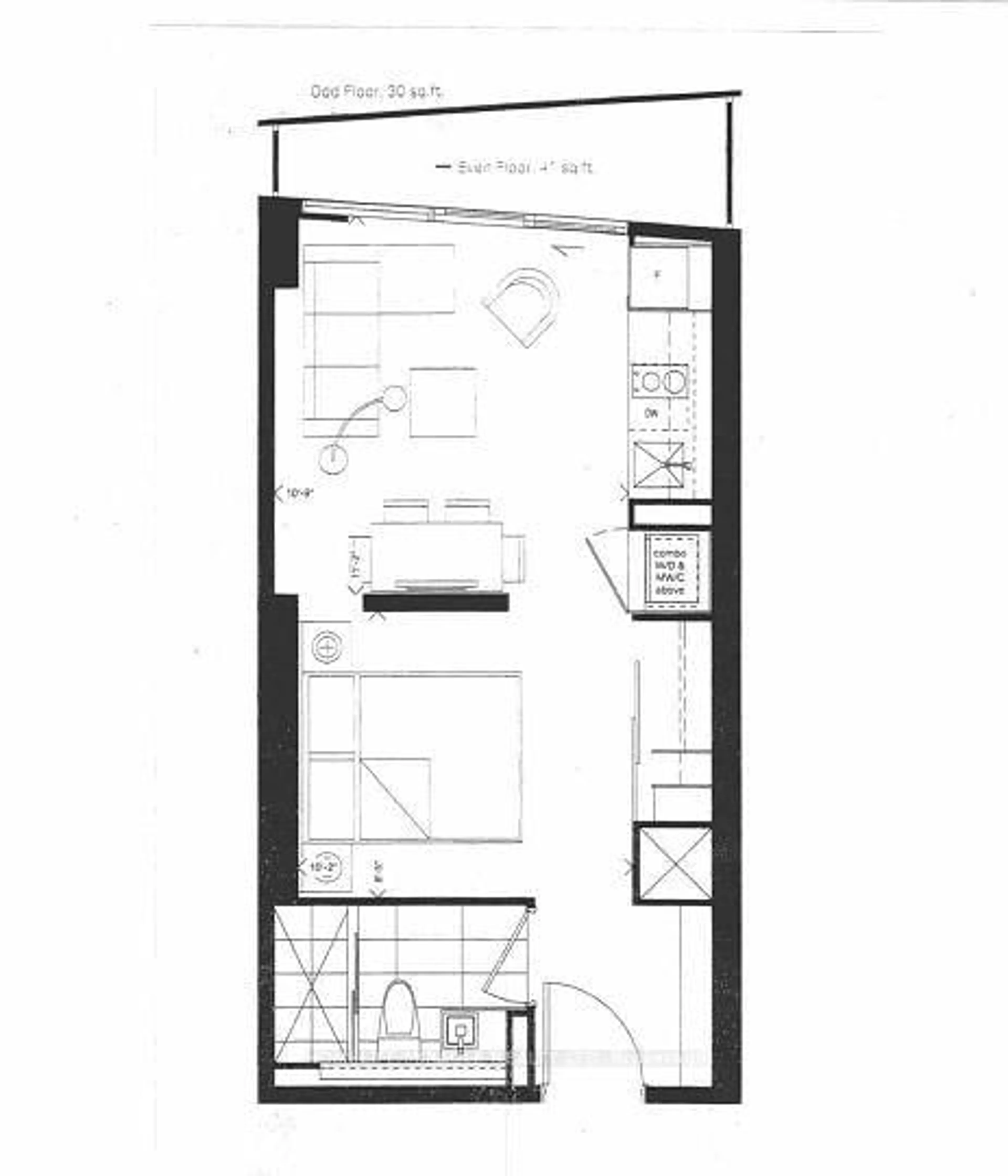
Main Floor
Br
3.85 x 3.6Laminate / Closet / Combined W/Living
Living
3.85 x 3.6Laminate / Combined W/Dining / Combined W/Br
Dining
3.85 x 3.6Laminate / Combined W/Living / W/O To Balcony
Kitchen
3.85 x 3.6Laminate / Quartz Counter / B/I Appliances
Exterior
Features
Condo Details
Inclusions
Property History
17
























