4288 Shelby Cres, Mississauga, Ontario L4W 3N5
Contact us about this property
Highlights
Estimated valueThis is the price Wahi expects this property to sell for.
The calculation is powered by our Instant Home Value Estimate, which uses current market and property price trends to estimate your home’s value with a 90% accuracy rate.Not available
Price/Sqft$740/sqft
Monthly cost
Open Calculator
Description
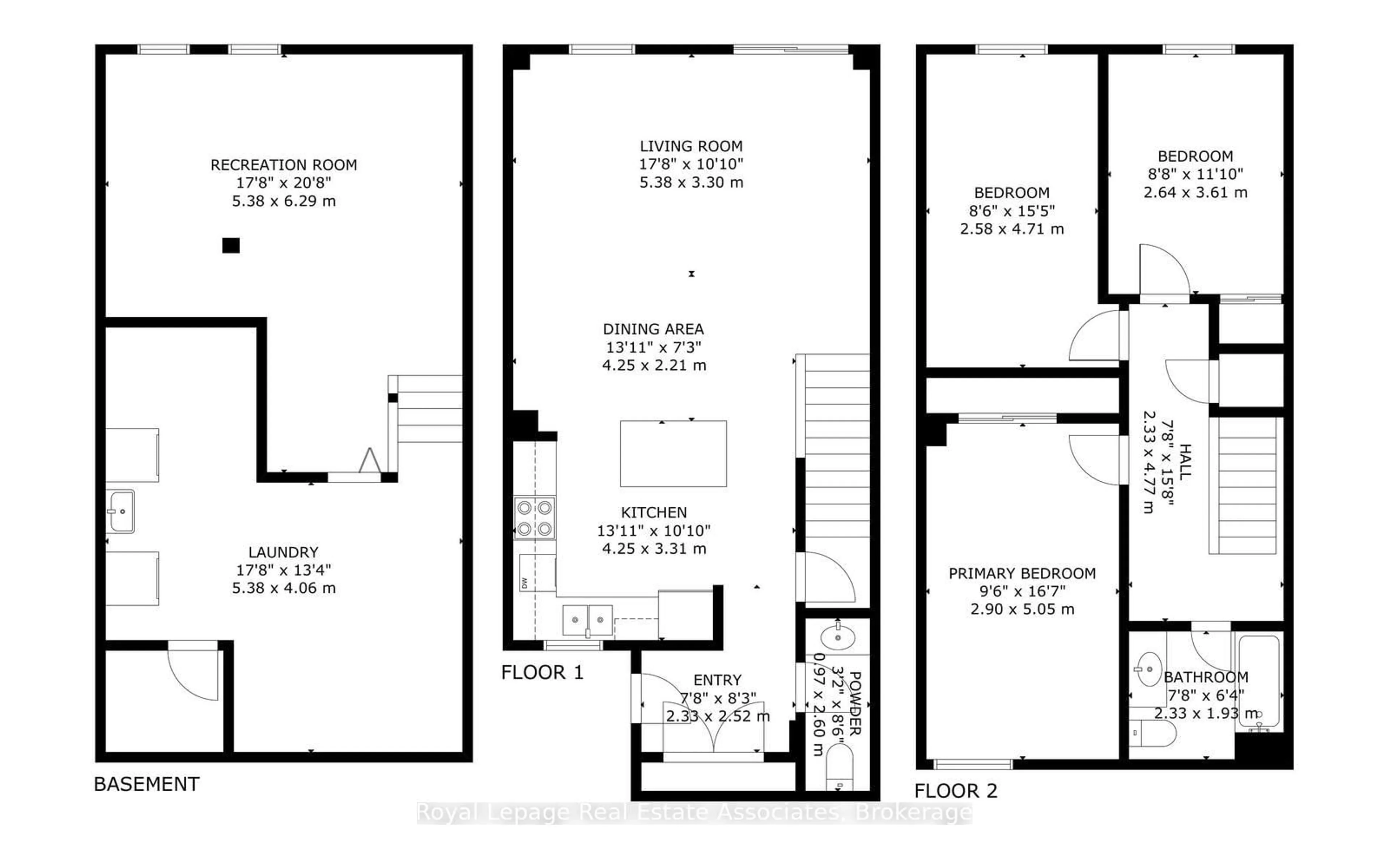
Warm and inviting 3 bedroom detached home nestled in the heart of the desirable Rathwood neighbourhood. The open-concept main level is perfect for both everyday living and entertaining, featuring bright, connected living and dining spaces that flow seamlessly into the kitchen. Upstairs, the home offers three spacious bedrooms, providing comfort and flexibility for growing families or those working from home. The finished basement adds valuable extra living space, ideal for a rec room, home office, or gym. Step outside to the west-facing backyard and enjoy afternoon sun and evening sunsets-perfect for relaxing or hosting summer gatherings. This well-rounded home is ideally located close to parks, schools, transit, and everyday amenities. Shingles'21, High Efficiency Furnace'20, CAC'20.
Upcoming Open House
Property Details
Interior
Features
Main Floor
Kitchen
4.25 x 3.31Ceramic Floor / Centre Island / Open Concept
Living
5.38 x 3.3hardwood floor / W/O To Deck / Combined W/Dining
Dining
4.25 x 2.21hardwood floor / Combined W/Living / Open Concept
Exterior
Features
Parking
Garage spaces 1
Garage type Attached
Other parking spaces 2
Total parking spaces 3
Property History
33












