4107 Rolling Valley Dr, Mississauga, Ontario L5L 2J1
Contact us about this property
Highlights
Estimated valueThis is the price Wahi expects this property to sell for.
The calculation is powered by our Instant Home Value Estimate, which uses current market and property price trends to estimate your home’s value with a 90% accuracy rate.Not available
Price/Sqft$788/sqft
Monthly cost
Open Calculator
Description
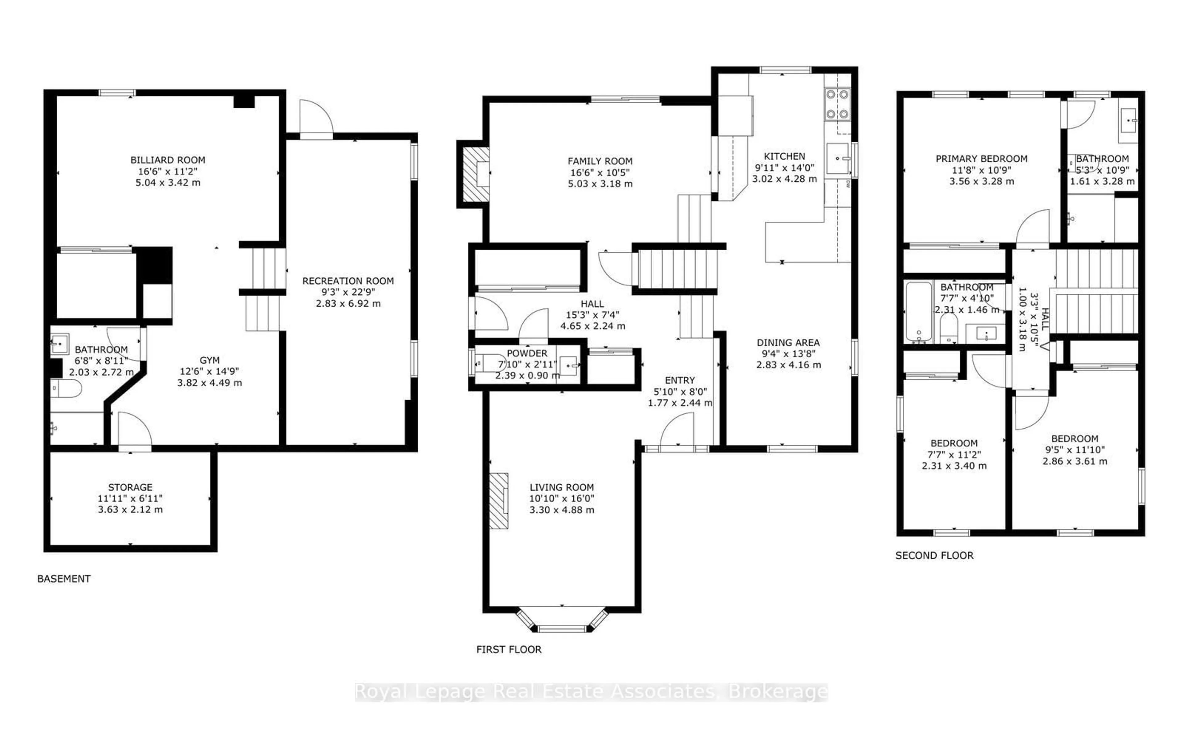
Lovely & spacious 3 bedroom, family home nestled in one of Erin Mills' most highly desirable neighbourhoods. Set on a huge oversized 53'x120' pie shaped lot and one of the largest on the street! This exceptional property offers incredible space for the growing family, both inside and out. With multiple living areas and a functional layout, there is plenty of room for everyday living and entertaining friends with ease. The main level showcases a beautifully renovated kitchen featuring quartz countertops, a built-in pantry, custom Aya cabinetry with convenient pull-out drawers, and a layout that overlooks the family room and private backyard. The lower levels continue to impress with a spacious rec room and an additional games room, perfect for movie nights, hobbies, a home gym, or play space. Renovated bathrooms add modern comfort throughout, while the primary and basement 3 piece baths offer the added luxury of heated floors. Step outside to your own private fenced backyard oasis, an ideal setting for summer gatherings, children at play, or simply relaxing in a peaceful outdoor retreat. Spacious 2 car garage with AGDO and remote. A rare opportunity to own a beautifully updated family home on a premium lot in sought-after Erin Mills. Steps to schools, parks, trails & public transit. Close to Erin Mills Town Centre, Credit Valley Hospital, UTM Mississauga Campus, Erindale & Clarkson Go Stations. Easy access to highways 403, 407 & QEW. Furnace'25, Central Vac Canister'21, Kitchen'2019, North Star windows, irrigation sytem.
Property Details
Interior
Features
Main Floor
Kitchen
4.28 x 3.02Quartz Counter / Breakfast Bar / Pot Lights
Dining
4.16 x 2.83hardwood floor / Open Concept / O/Looks Backyard
Exterior
Features
Parking
Garage spaces 2
Garage type Detached
Other parking spaces 4
Total parking spaces 6
Property History
50
























