1063 Douglas Mccurdy Common #907, Mississauga, Ontario L5G 0C5
Contact us about this property
Highlights
Estimated valueThis is the price Wahi expects this property to sell for.
The calculation is powered by our Instant Home Value Estimate, which uses current market and property price trends to estimate your home’s value with a 90% accuracy rate.Not available
Price/Sqft$797/sqft
Monthly cost
Open Calculator
Description
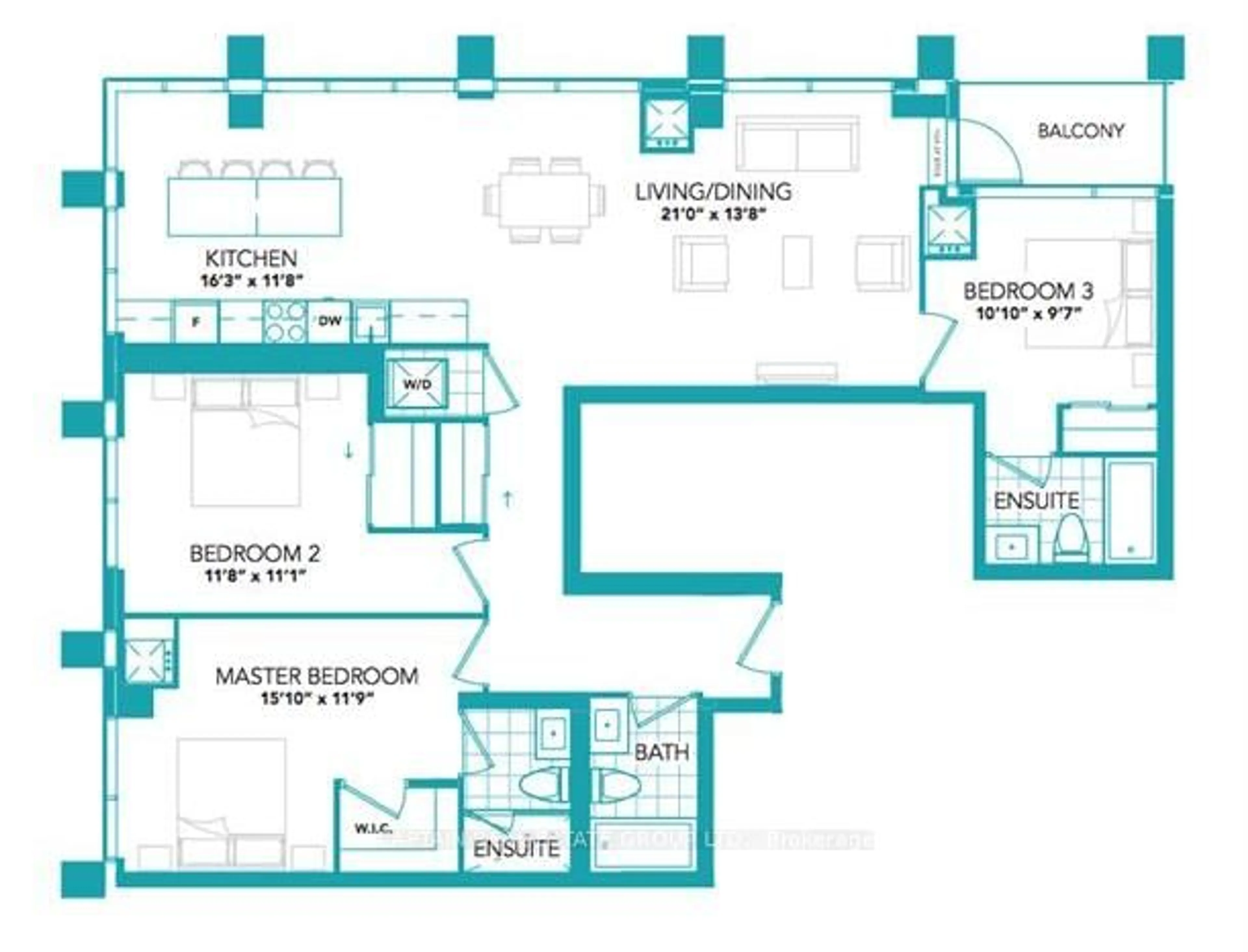
Welcome To This Bright, Spacious 3-Bedroom, 3-Bath Suite Just Steps From The Lake. Designed For Modern Living, It Features An Open-Concept Layout With Engineered Hardwood Floors And A Sleek Kitchen With Stainless Steel Appliances, A Large Island, And Premium Finishes. Two Bedrooms Includes A 3-Piece Ensuite. Comes With One Parking Space. Enjoy Top-Tier Amenities And A Prime Location Close To Shopping, Transit, Highways, Port Credit, And U Of T Mississauga.
Property Details
Interior
Features
Main Floor
Living
6.4 x 4.21Combined W/Dining
Kitchen
4.96 x 3.6Primary
4.6 x 3.63W/I Closet / 3 Pc Ensuite
3rd Br
3.08 x 2.963 Pc Ensuite
Exterior
Features
Parking
Garage spaces 1
Garage type Underground
Other parking spaces 0
Total parking spaces 1
Condo Details
Inclusions
Property History
2






















