35 Trailwood Dr #1515, Mississauga, Ontario L4Z 3L6
Contact us about this property
Highlights
Estimated valueThis is the price Wahi expects this property to sell for.
The calculation is powered by our Instant Home Value Estimate, which uses current market and property price trends to estimate your home’s value with a 90% accuracy rate.Not available
Price/Sqft$381/sqft
Monthly cost
Open Calculator
Description
Fantastic opportunity for 1st time buyers!! Bright & spacious 2 bed, 2 bath condo situated in the convenient area of Hurontario - an ideal home for comfortable, low-maintenance living. This thoughtfully designed suite has an open concept living/dining space with floor to ceiling windows, filling the unit with natural light, and offering picturesque North-West Views. The primary bedroom features a walk-in closet and a private 4-piece ensuite, providing a relaxing retreat at the end of the day, while the second bedroom is well-sized and versatile for guests, a home office, or family living. An in-unit storage closet adds valuable extra space rarely found in condo living. Maintenance fees include hydro, heat & water. Perfectly located close to transit including the future light rail transit (LRT), 403&401 highways, Pearson Airport, shopping, and parks. Building facilities include 24 hour security, gym, indoor pool, hot tub, sauna, games/party room, visitor parking and playground/parkette. Some photos have been virtually staged.
Property Details
Interior
Features
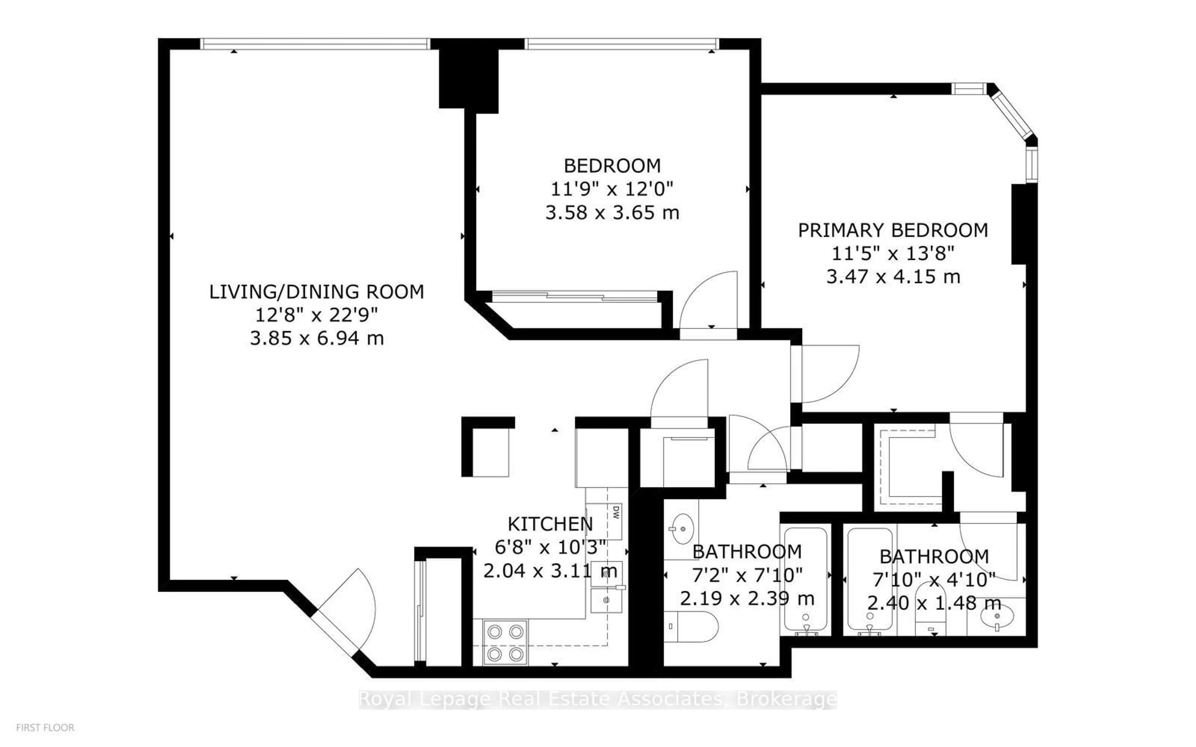
Main Floor
Kitchen
3.11 x 2.04Tile Floor / B/I Dishwasher
Living
6.94 x 3.85Laminate / Window Flr to Ceil / Combined W/Dining
Dining
6.94 x 3.85Laminate / Open Concept / Combined W/Living
Primary
4.15 x 3.47Laminate / 4 Pc Ensuite / W/I Closet
Exterior
Parking
Garage spaces 1
Garage type Underground
Other parking spaces 0
Total parking spaces 1
Condo Details
Amenities
Concierge, Gym, Indoor Pool
Inclusions
Property History
30
























