3900 Confederation Pkwy #204,, Mississauga, Ontario L5B 0M3
Contact us about this property
Highlights
Estimated valueThis is the price Wahi expects this property to sell for.
The calculation is powered by our Instant Home Value Estimate, which uses current market and property price trends to estimate your home’s value with a 90% accuracy rate.Not available
Price/Sqft$0/sqft
Monthly cost
Open Calculator
Description
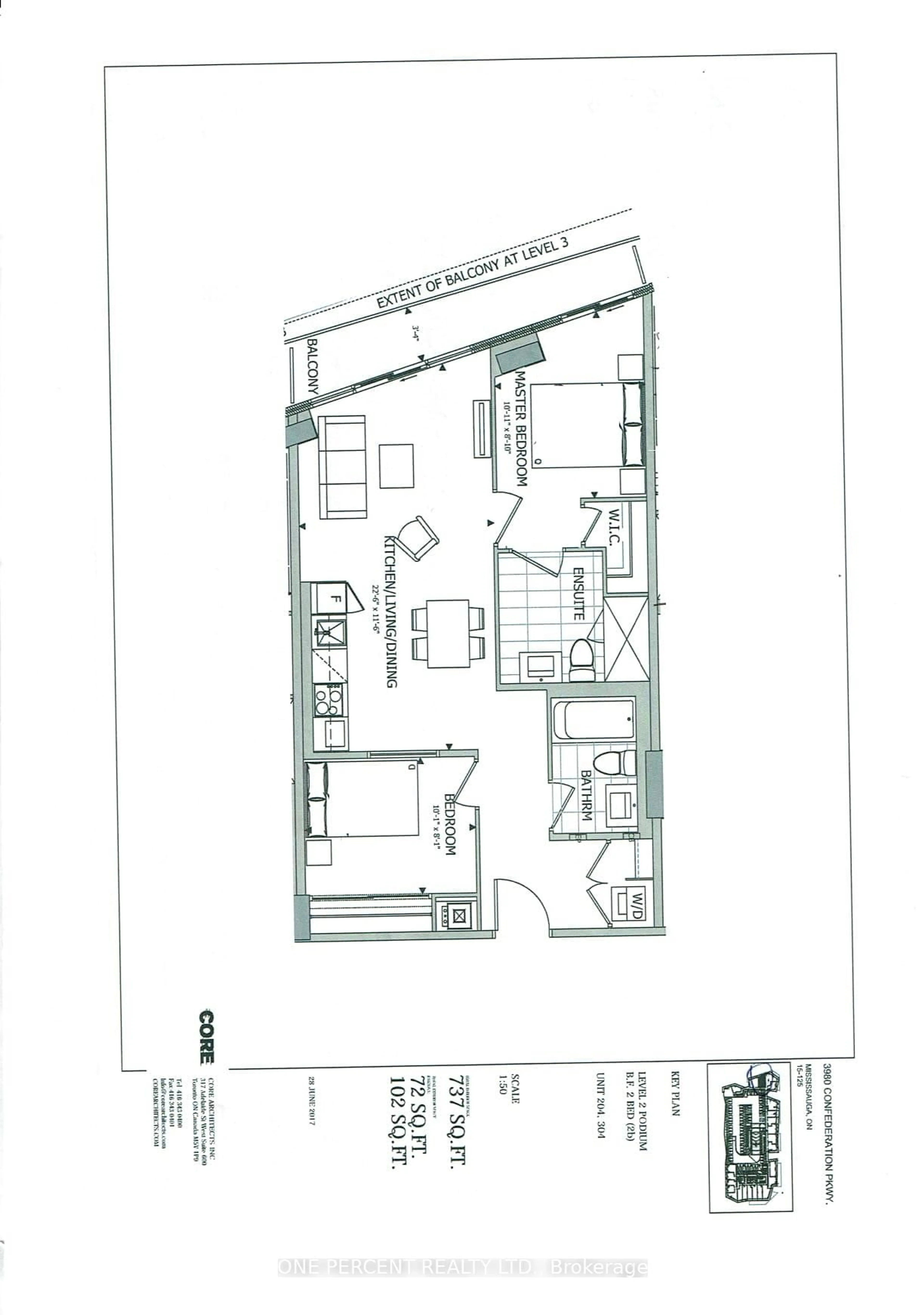
URGENT SALE - SELLER WILL CONSIDER ALL REASONABLE UNCONDITIONAL OFFERS. CLOSING REQUIRED BY THE END OF JUNE 2026. Welcome to M City 1, where luxury living meets unbeatable convenience in the heart of Mississauga. This stunning 2-bedroom, 2-bathroom condo on the 2nd floor features floor-to-ceiling windows that flood the space with natural light, creating a bright, modern, and inviting atmosphere. Residents enjoy an exceptional selection of premium amenities, including a seasonal outdoor skating rink, 24-hour concierge, a chef-inspired kitchen, event space, games room with a children's play area, outdoor pool, and a spacious rooftop terrace perfect for relaxing or entertaining.This beautifully appointed unit also includes an expansive 174 sq. ft. balcony, 1 parking space, and 1 locker, offering the perfect blend of comfort, style, and practicality. Ideally located just steps from Square One, Sheridan College, top restaurants, nightlife, the Living Arts Centre, cinemas, public transit, and Celebration Square, with easy access to Highways 401 and 403.This is a rare opportunity to own in one of Mississauga's most sought-after communities. PLEASE NOTE PROPERTY IS NOT SALE FOR $1.
Property Details
Interior
Features
Flat Floor
2nd Br
3.07 x 2.69B/I Closet / Double Closet / Glass Block Window
Living
3.35 x 3.5Open Concept / Combined W/Kitchen / Balcony
Bathroom
2.44 x 1.563 Pc Ensuite
Kitchen
3.5 x 3.2B/I Appliances / B/I Closet / B/I Fridge
Exterior
Features
Parking
Garage spaces 1
Garage type Underground
Other parking spaces 0
Total parking spaces 1
Condo Details
Amenities
Elevator, Community BBQ, Indoor Pool, Concierge
Inclusions
Property History

50
























