80 Atherton Ave, Ajax, Ontario L1T 0L3
Contact us about this property
Highlights
Estimated valueThis is the price Wahi expects this property to sell for.
The calculation is powered by our Instant Home Value Estimate, which uses current market and property price trends to estimate your home’s value with a 90% accuracy rate.Not available
Price/Sqft$496/sqft
Monthly cost
Open Calculator
Description
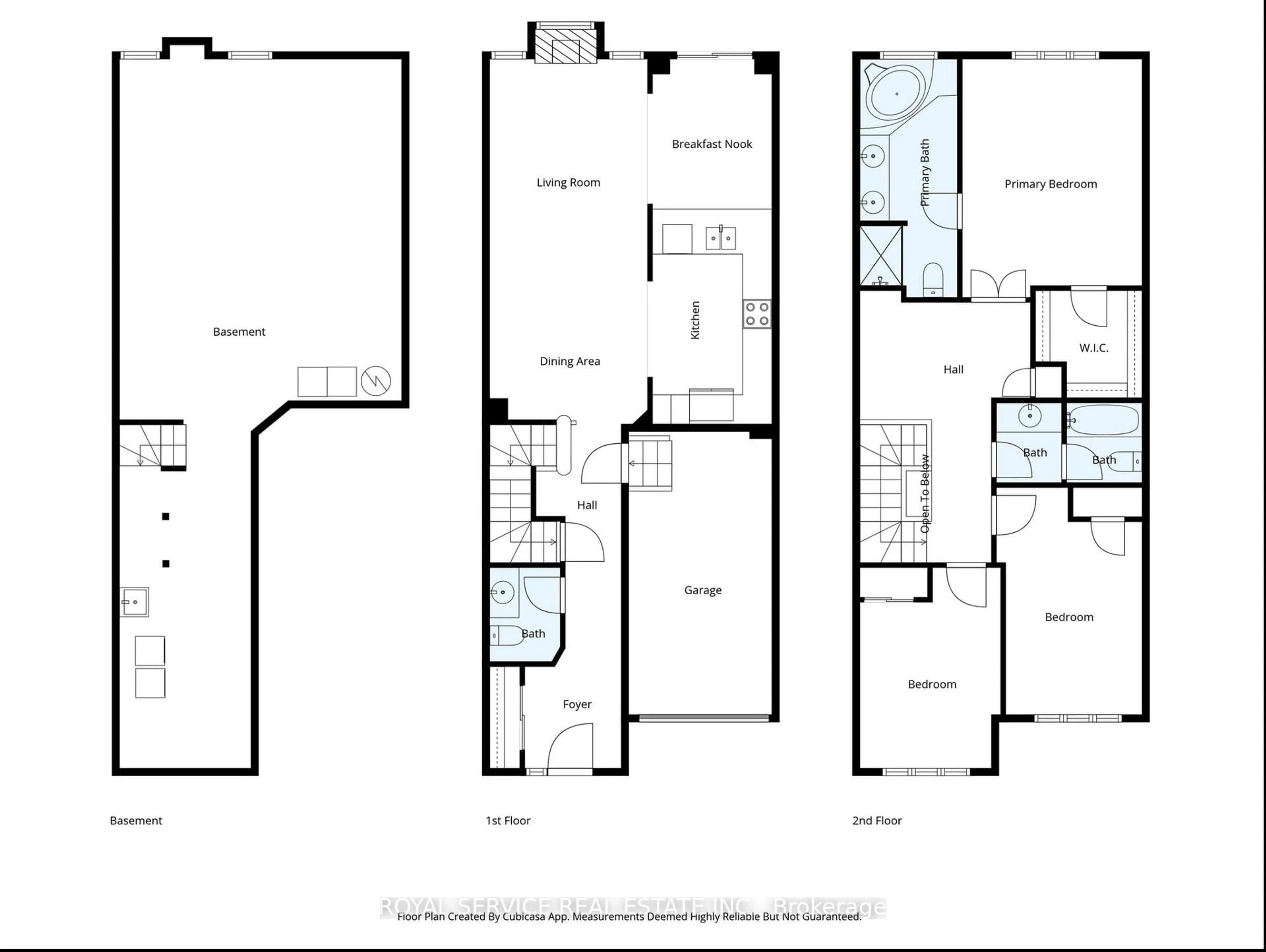
No neighbours behind just open space & an updated ready to move in home. If that's been on your list, this one is definitely worth a look. This 2-storey townhouse offers a layout with a bright open main floor, hardwood flooring & a gas fireplace that anchors the living space. The kitchen features granite countertops, updated appliances including a newer dishwasher & exhaust fan (2026) a breakfast area with a walkout to the backyard.Out back is where this home stands apart you're not looking into a row of houses. Instead, you get open space behind creating a more open feel and added privacy. Upstairs the landing opens up into a surprisingly large usable space perfect for a home office, reading nook or kids' play area. The primary bedroom includes a walk-in closet and a 5-piece ensuite with double sinks, soaker tub a separate shower. Two additional bedrooms and a full bath complete the level, with crown moulding, updated lighting, and new (2026) carpet and under pad throughout the second floor a staircase.The home has been refreshed throughout including fresh paint, refinished hardwood, updated toilets in all bathrooms & thoughtful details like LED pot lights & an upgraded front entry door. Interior access to the garage adds everyday convenience.The basement remains unfinished, offers clean usable space with two large egress windows & a 3-piece rough-in for future potential for a washroom. Practical updates include duct cleaning and furnace servicing (2026), a rental hot water tank plus painted garage and basement floors for a clean, low-dust environment. Front and backyard will be newly sodded in May 2026 & exterior painting of the front door and garage is being completed. Purdue Parkette is just steps down the street adding convenience to families with small children.A solid option for buyers looking for a home that is well cared for, offers more privacy & space than most townhomes, and still leaves room to grow. Watch the virtual tour & book your showing today.
Property Details
Interior
Features
Main Floor
Foyer
1.98 x 2.45Double Closet / Glass Doors / Ceramic Floor
Kitchen
2.45 x 4.47Breakfast Bar / Pantry / Stainless Steel Appl
Breakfast
2.45 x 2.99Ceramic Floor / W/O To Deck / Breakfast Area
Living
3.24 x 4.64Gas Fireplace / hardwood floor / Pot Lights
Exterior
Features
Parking
Garage spaces 1
Garage type Built-In
Other parking spaces 1
Total parking spaces 2
Property History
38







