Contact us about this property
Highlights
Estimated valueThis is the price Wahi expects this property to sell for.
The calculation is powered by our Instant Home Value Estimate, which uses current market and property price trends to estimate your home’s value with a 90% accuracy rate.Not available
Price/Sqft$642/sqft
Monthly cost
Open Calculator
Description
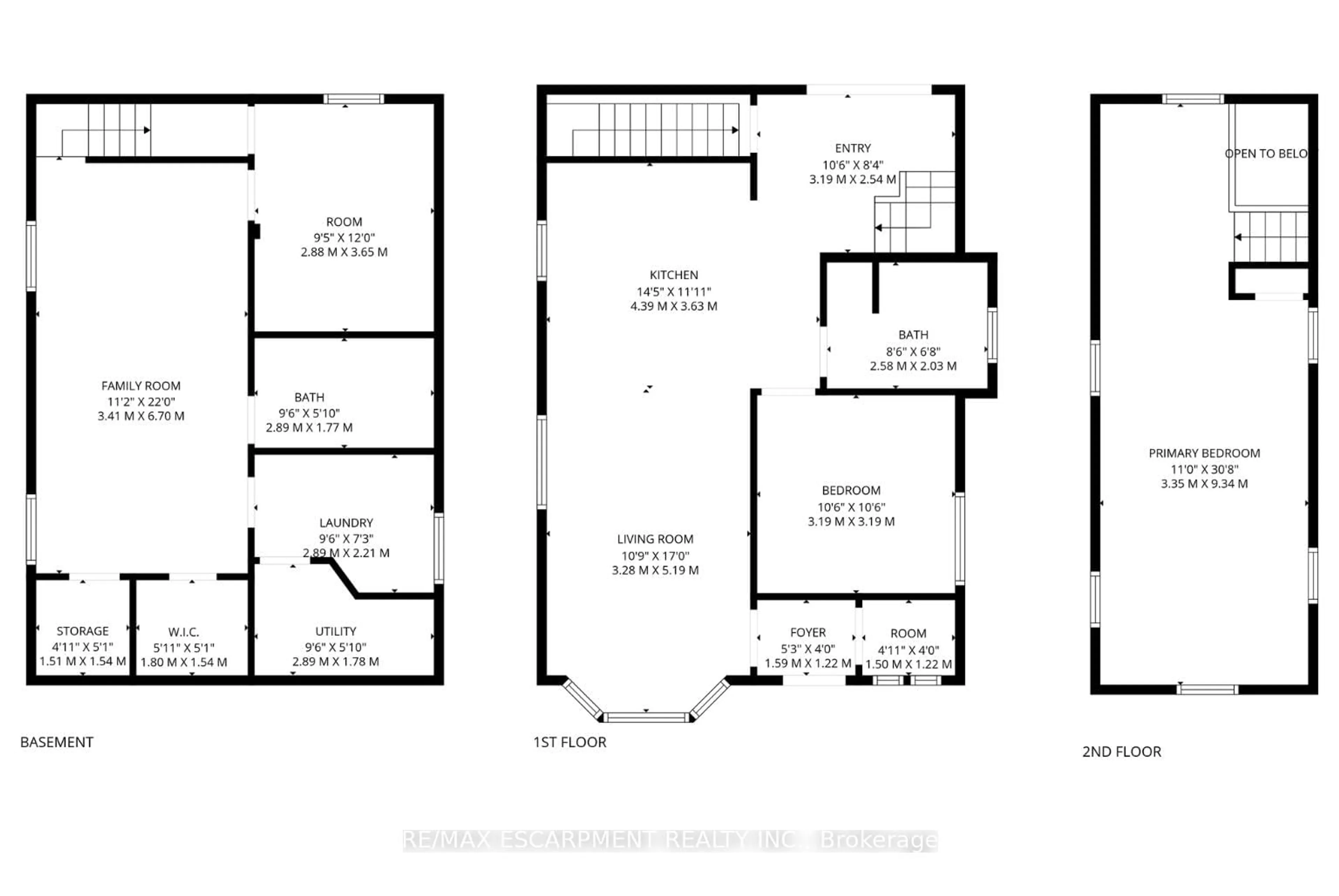
Simply stunning, this beautifully appointed home showcases quality craftsmanship and luxurious updates throughout. From the moment you arrive, the pride of ownership is unmistakable, with charming curb appeal and a sense of care carried through every inch of the property. Inside, experience a home that truly feels even better in person. Meticulously maintained & thoughtfully updated, the interior blends modern style with everyday comfort. The open-concept main floor flows effortlessly, featuring rich flooring, crown moulding, recessed lighting, & expansive windows that fill the space with natural light, creating an inviting atmosphere. At the heart of the home, the stunning updated kitchen (2024) is both functional and beautiful, with updated cabinetry, quartz countertops, a sleek backsplash, soft-close cupboards & accent lighting - designed to impress w/ an added coffee station for convenience! Primary bedroom on main level and a spa-inspired 4-piece bathroom with a luxurious shower system complete the main level. A grand staircase guides you to the upper level, where a sunlit sanctuary awaits. Four skylights fill the spacious bedroom with natural light, complemented by LED lighting and a charming office nook - ideal for working from home. The fully finished basement offers a bright and welcoming environment from large windows and with 2 tone ambient lighting. Here you'll find a comfortable rec room, an additional bedroom, a beautifully finished 4-piece bathroom, and a clean, well-organized laundry space designed for practicality + additional storage space. Step outside to a private backyard featuring a quality-built private fence (2023), large deck overlooking an expansive yard - perfect for entertaining or relaxing - with a garden shed for extra storage. Addt'l highlights include 200 amp service. Complete in 2024: Finished Basement, Driveway , Kitchen update and A/C! Close to all major amenities & hwy access! Turn-key & exceptional... A MUST SEE! Don't miss out!
Property Details
Interior
Features
Main Floor
Foyer
1.59 x 1.22Br
3.19 x 3.19Other
1.5 x 1.22Living
3.28 x 5.19Exterior
Features
Parking
Garage spaces -
Garage type -
Total parking spaces 3
Property History
45














