38 Black Locust Way, Brantford, Ontario N3R 7C7
Contact us about this property
Highlights
Estimated valueThis is the price Wahi expects this property to sell for.
The calculation is powered by our Instant Home Value Estimate, which uses current market and property price trends to estimate your home’s value with a 90% accuracy rate.Not available
Price/Sqft$346/sqft
Monthly cost
Open Calculator
Description
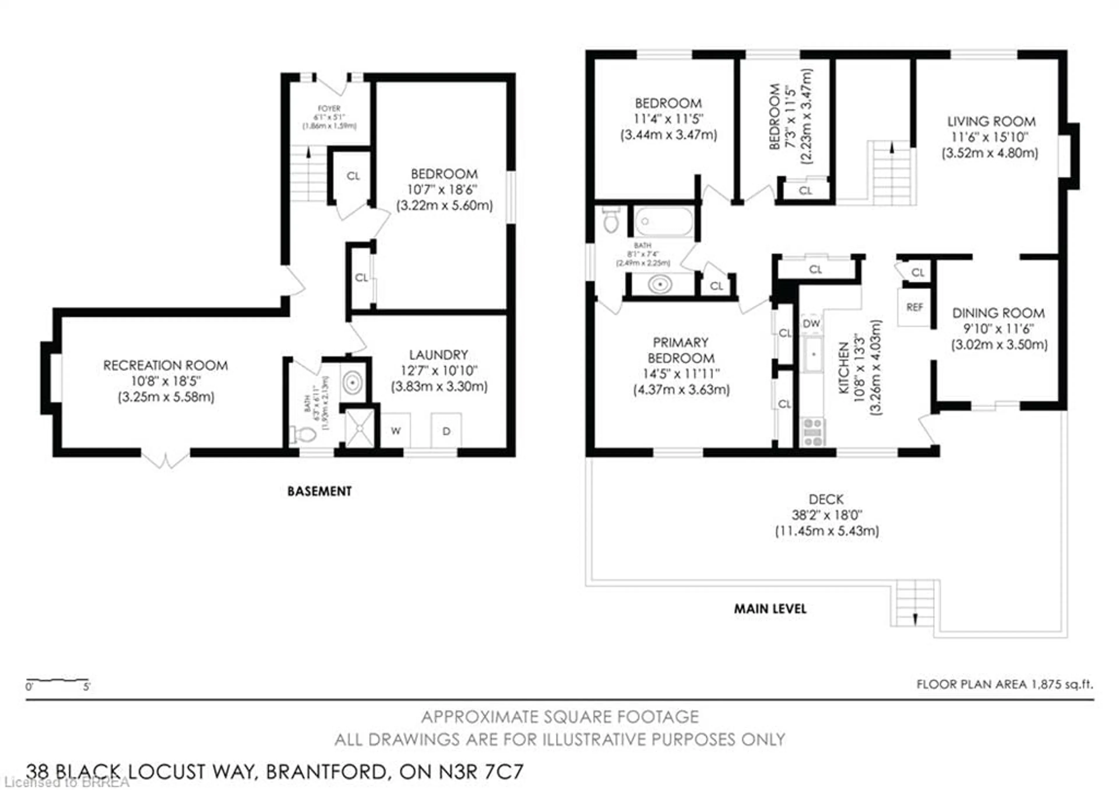
Located in a desirable, mature, family friendly neighbourhood with close proximity to schools, shopping and a long list of amenities, 38 Black Locust Way is a brick raised bungalow (ranch) with 4 beds (3+1), 2 full baths, a double car garage, multi-level deck with an abundance of storage that surrounds an in ground pool and hot tub. The main foyer leads you to a large Living Room, then a separate dining room and spacious kitchen - down the hall you will find 2 spacious bedrooms and one smaller bedroom as well as a 4 piece bath. The lower level features a large 4th bed, laundry room with mechanicals/utilities, a 3 piece bath and a Rec Room with a walk up leading you to the back yard featuring a multi level deck (approx 4 years old), in ground heated pool (liner approx 10 yrs). This house features a Steel Roof with a Transferrable 50 year warranty.
Property Details
Interior
Features
Main Floor
Living Room
3.51 x 4.83Bathroom
2.46 x 2.244-Piece
Dining Room
3.00 x 3.51Kitchen
3.25 x 4.04Exterior
Features
Parking
Garage spaces 2
Garage type -
Other parking spaces 2
Total parking spaces 4
Property History
49








