Calderwood Dr #RC-1, Wellington, Nova Scotia B2T 0K9
Contact us about this property
Highlights
Estimated valueThis is the price Wahi expects this property to sell for.
The calculation is powered by our Instant Home Value Estimate, which uses current market and property price trends to estimate your home’s value with a 90% accuracy rate.Not available
Price/Sqft$558/sqft
Monthly cost
Open Calculator
Description
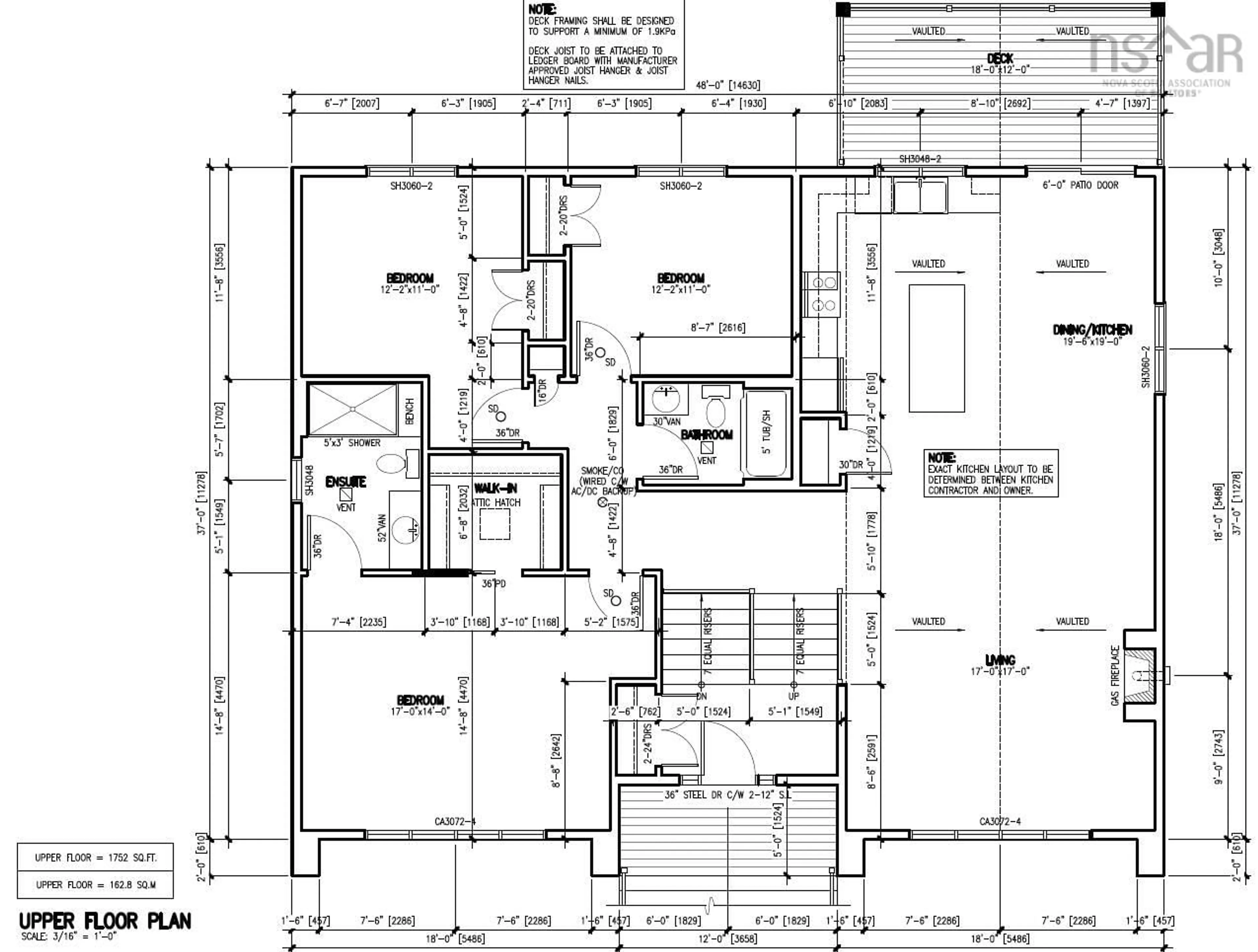
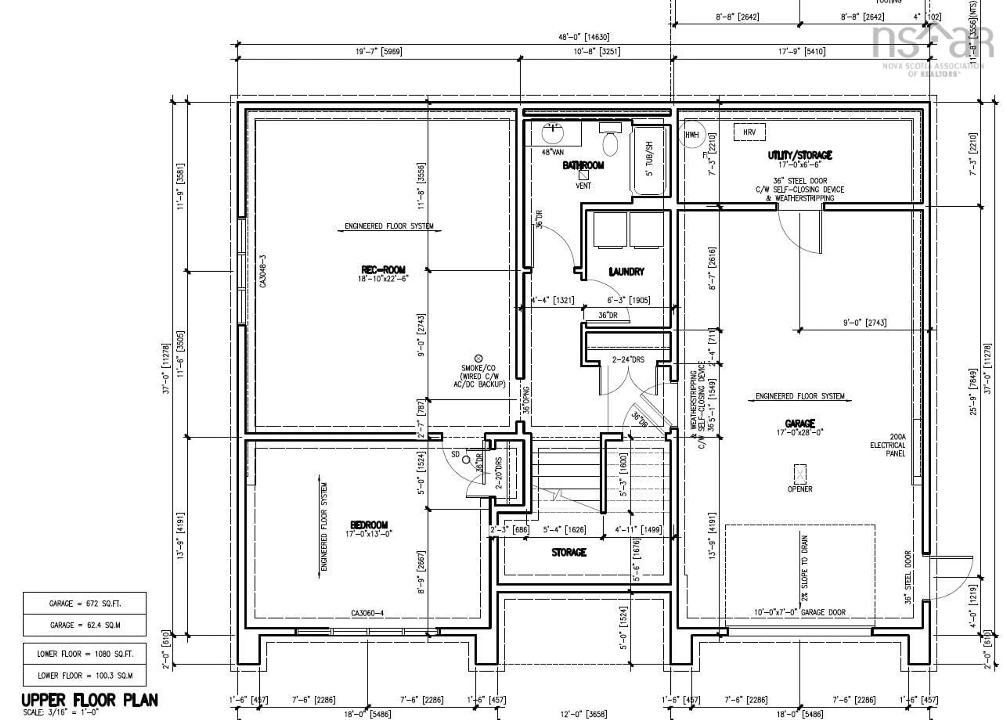
Another quality built Gerald Mitchell Home. The Bear Split Entry is our latest and quickly becoming our most popular split entry plan. Spacious and efficient, this four bedroom, three bath family home checks all the boxes. Beautiful open concept layout, vaulted ceilings, elegant design, custom kitchen with stone countertops, lovely custom cabinets, and pantry, living room propane fireplace, beautiful covered back deck, 3 bedrooms up. Master suite, with ensuite and walk in closet, plus a main bath for the kids and guests. Downstairs you'll find a fourth bedroom, spacious family room, bathroom, laundry, extra storage and an attached garage. Efficient heating & cooling w heat pumps and amplified by the economical layout, modern and bright, the Bear split entry is a gem. Oaken Hills is a sought after beautiful family subdivision with quiet streets and nature all around. A lively playground and trail runs through the heart of the neighbourhood, large wooded lots offer privacy and beauty. New Aero tech exit provides easy access. Fall River is minutes away and features all the amenities you'll need, shopping, dining, and recreation. Many parks trails and lakes near by. 15 mins to Dartmouth or Bedford shopping commons, and 10 mins to the airport.
Property Details
Interior
Features
Main Floor Floor
Living Room
17 x 17Eat In Kitchen
19.6 x 19Bath 1
6 x 6Primary Bedroom
17 x 14Exterior
Features
Parking
Garage spaces 1
Garage type -
Other parking spaces 2
Total parking spaces 3
Property History
8





