2907 BEVMARIL CRESCENT, Gabriola Island, British Columbia V0R1X7
Contact us about this property
Highlights
Estimated valueThis is the price Wahi expects this property to sell for.
The calculation is powered by our Instant Home Value Estimate, which uses current market and property price trends to estimate your home’s value with a 90% accuracy rate.Not available
Price/Sqft$304/sqft
Monthly cost
Open Calculator
Description
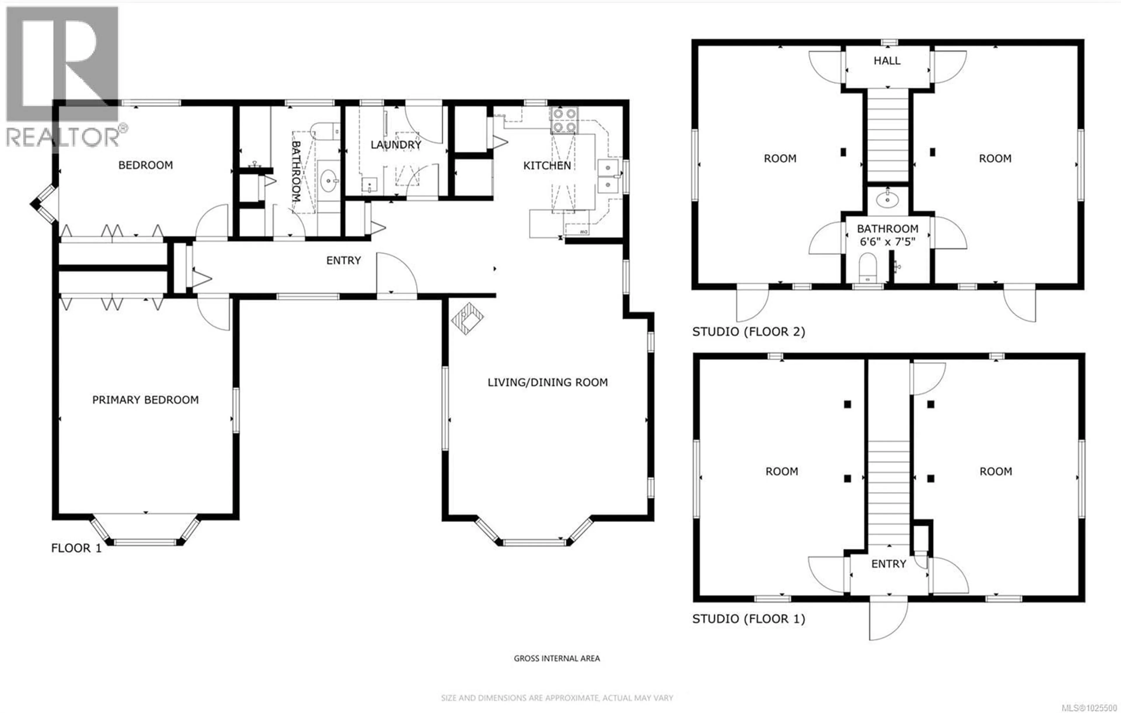
Just steps from Degnen Bay in a quiet, established neighbourhood, this warm and welcoming property features a 2-bedroom, 1-bathroom home plus a substantial detached 1,140 sq ft studio with bathroom, all set on a private and level 0.90-acre lot on Gabriola’s desirable south end. A special setting offering space to create, garden, and enjoy the natural beauty of island living.The 1,121 sq ft home offers a comfortable, easy layout centered around a courtyard-style deck, creating a lovely connection between indoor and outdoor spaces. The well-designed kitchen with wood cabinetry opens to a welcoming living room with woodstove and garden views. The primary bedroom offers a cozy window bench overlooking the garden, with a second bedroom, entrance with laundry, and a bright 4-piece bathroom with skylight — all thoughtfully arranged on one level. Serviced by a heat pump, well, and updated septic system. The spacious detached wood studio is a valuable feature — ideal for creative pursuits, home office, art or music studio, or a range of other possibilities. The two rooms on the main level feature wood ceilings and beams, while the upper level offers two rooms with wood floors and a 3-piece bathroom. Sunny, south-facing, and full of potential, with established gardens in a fenced area, a picturesque yard, a 15x13 workshop, and a charming sauna ready to be brought back to life. A circular driveway welcomes you into this peaceful Gulf Island retreat just moments from the ocean — a property that truly feels like home. Full informaiton package with floor plans, video tour & virtual tour available. All information to be verified by a buyer if deemed important. (id:39198)
Property Details
Interior
Features
Other Floor
Bathroom
5'6 x 6'6Studio
12'6 x 18'1Studio
12'6 x 18'1Studio
12'6 x 18'1Exterior
Parking
Garage spaces -
Garage type -
Total parking spaces 4
Property History
42




