365 KING ROAD, Gabriola Island, British Columbia V0R1X1
Contact us about this property
Highlights
Estimated valueThis is the price Wahi expects this property to sell for.
The calculation is powered by our Instant Home Value Estimate, which uses current market and property price trends to estimate your home’s value with a 90% accuracy rate.Not available
Price/Sqft$472/sqft
Monthly cost
Open Calculator
Description
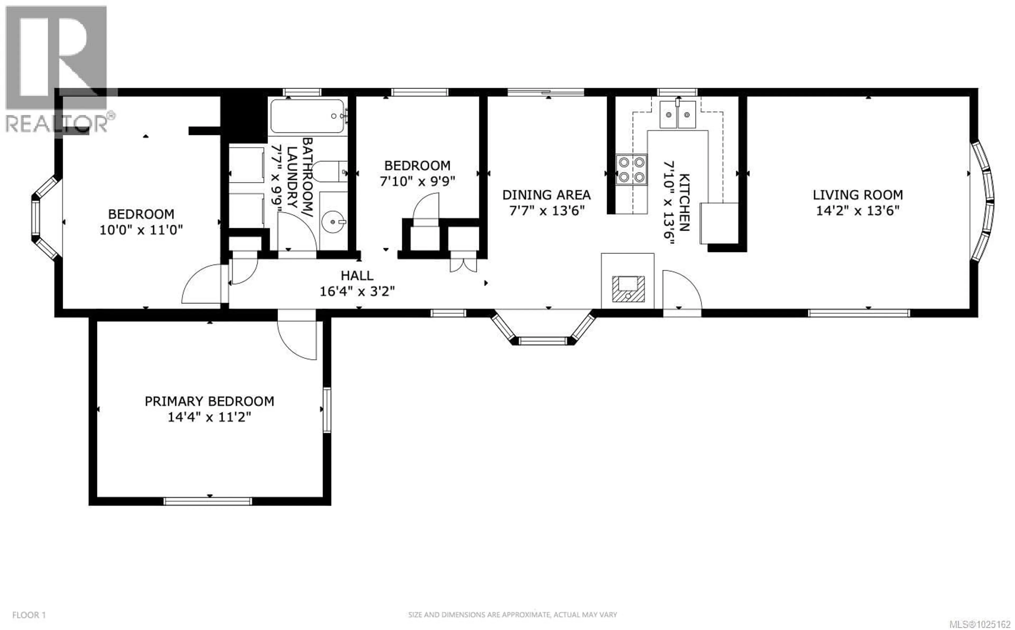
Tucked into a peaceful pocket in one of Gabriola’s most loved locations, this bright and welcoming 3-bedroom, 1-bath home offers comfortable island living just minutes from Twin Beaches, an extensive trail network, the general store, and the ferry. The 1,006 sq.ft. home features a functional layout with a spacious primary bedroom, heat pump, cozy woodstove, and an EPDM roof replaced in 2018. A covered deck off the dining area provides a lovely place to relax and overlook the yard, while meandering pathways and natural rockwork guide you through a beautiful blend of open space, native vegetation, and mature trees. A detached studio offers flexible space for guests, hobbies, or creative pursuits, complemented by a greenhouse, carport, and mostly fenced yard. Serviced by a well and cisterns, with generator included, this is a comfortable and versatile property in a quiet, convenient setting.Full information package with floor plans, virtual tour and video available. All info to be verified by buyer if deemed important. (id:39198)
Property Details
Interior
Features
Main level Floor
Primary Bedroom
15 x 10Other
7'8 x 7'9Bedroom
10 x 8Bedroom
14'3 x 10'10Exterior
Parking
Garage spaces -
Garage type -
Total parking spaces 3
Property History
38




