2550 QUEENS AVENUE, West Vancouver, British Columbia V7V2Y8
Contact us about this property
Highlights
Estimated valueThis is the price Wahi expects this property to sell for.
The calculation is powered by our Instant Home Value Estimate, which uses current market and property price trends to estimate your home’s value with a 90% accuracy rate.Not available
Price/Sqft$787/sqft
Monthly cost
Open Calculator
Description
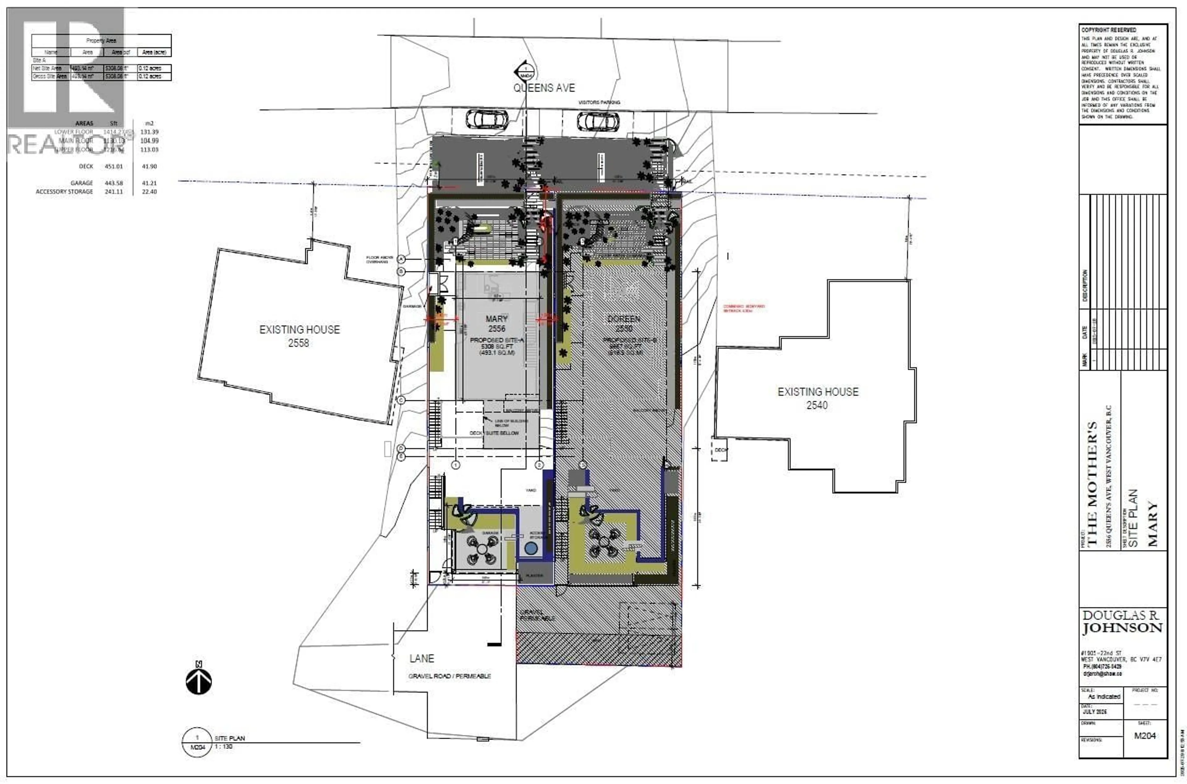
INCREDIBLE OPPORTUNITY. AMAZING 3800 sqft brand new home with EPIC VIEWS. This home can be built and ready to move into in 12 months! INCREDIBLE DESIGN is already finished, submitted AND APPROVED to the district saving you months of decisions, planning and permit time with the district. The DESIGNED IS what one would LOVE TO ENJOY and was inspired by the G´DAY Home that was architecturally created by MCLEOD BOVELL Modern Houses with 3 levels, all having incredible views and done with contemporary style that is TIMELESS. This lot 2550 Queens --has been officially subdivided. All details, subdivision, plans and more can be all reviewed. Imagine in 12 months you could be living in your brand new VIEW LOT IN West Vancouver! Call for details! (id:39198)
Property Details
Interior
Features
Property History
11





