103 - 3189 CAMOSUN STREET, Vancouver, British Columbia V6R3X2
Contact us about this property
Highlights
Estimated valueThis is the price Wahi expects this property to sell for.
The calculation is powered by our Instant Home Value Estimate, which uses current market and property price trends to estimate your home’s value with a 90% accuracy rate.Not available
Price/Sqft$1,099/sqft
Monthly cost
Open Calculator
Description
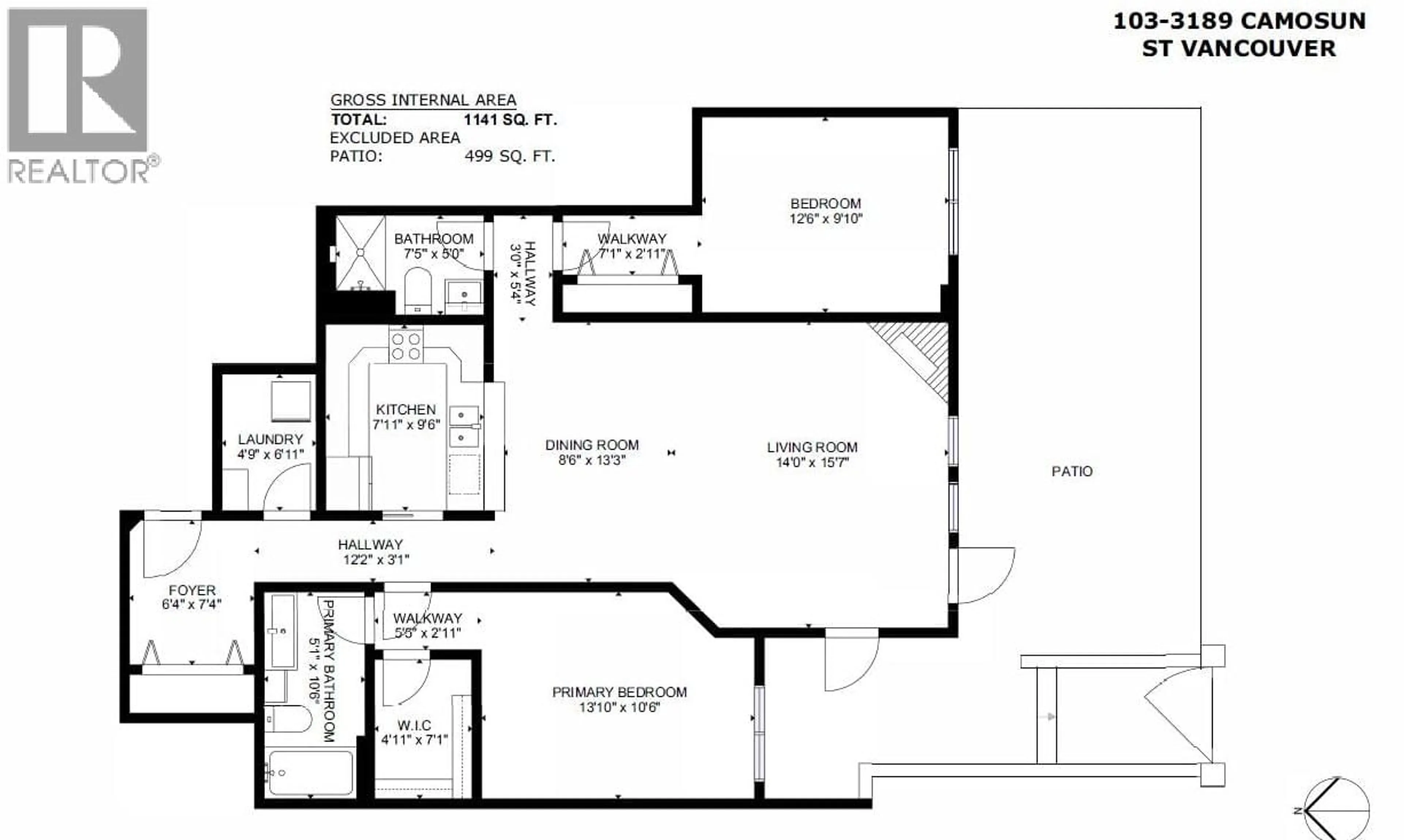
Welcome to this spacious 2 bed/2 bath unit in Point Grey, featuring a well-designed layout with beautiful cherry hardwood floors. The open-concept kitchen offers custom Euro-Rite cabinets & sleek quartz countertops. From the living room, step onto a bright south-facing patio. The main bedroom includes a large walk-in closet, & enjoy the added convenience of a generous laundry area, 2 parking stalls & a storage locker. Access is mainly through the ground floor patio door on W. 16th Ave. Prime location! Just steps from top Point Grey schools, including Queen Elizabeth Elementary, Jules Quesnel, & Lord Byng Secondary. Conveniently located behind a bus stop, it's a quick 5-min drive to UBC. Ideal for families, university ties, young professionals, or investors. (id:39198)
Property Details
Interior
Features
Exterior
Parking
Garage spaces -
Garage type -
Total parking spaces 2
Condo Details
Amenities
Laundry - In Suite
Inclusions
Property History
18





