7261 SHERBROOKE STREET, Vancouver, British Columbia V5X1T7
Contact us about this property
Highlights
Estimated valueThis is the price Wahi expects this property to sell for.
The calculation is powered by our Instant Home Value Estimate, which uses current market and property price trends to estimate your home’s value with a 90% accuracy rate.Not available
Price/Sqft$922/sqft
Monthly cost
Open Calculator
Description
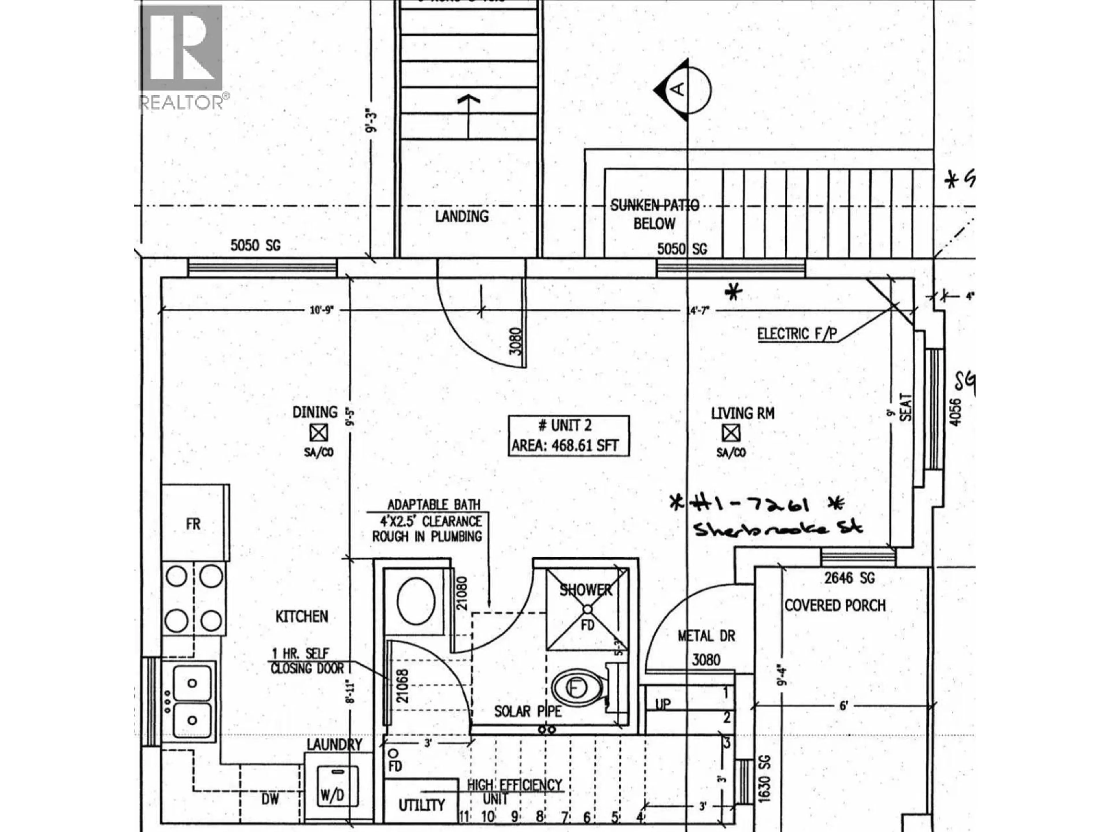
CORNER lot with LEGAL 2 bedroom separate entrance rental suite! Beautiful brand new 3 level front 1/2 duplex close to the park. Featuring the ideal floor plan with 3 Bedrooms and 3 Bathrooms. Once you enter the main floor you will notice 9 foot ceilings with an open concept kitchen, living room. Upstairs consists of 3 bedrooms with 2 full bathroom. More windows and lots of light due to corner unit.Second legal rental suite can be used for family or rental income!Please take advantage the coming 2026 FIFA World Cup in June. The other half duplex 1195 E 57 st also for sale.Close to Knight bridge but quiet!Park just sits in front of the building. Location offers a quick walk to schools and transit!School catchment:Walter Moberly Elementary, David Thompson and Sir Winston Churchill Secondary. (id:39198)
Property Details
Interior
Features
Exterior
Parking
Garage spaces -
Garage type -
Total parking spaces 2
Property History
24





