304 - 495 6TH AVENUE, Vancouver, British Columbia V5Y1L3
Contact us about this property
Highlights
Estimated valueThis is the price Wahi expects this property to sell for.
The calculation is powered by our Instant Home Value Estimate, which uses current market and property price trends to estimate your home’s value with a 90% accuracy rate.Not available
Price/Sqft$1,115/sqft
Monthly cost
Open Calculator
Description
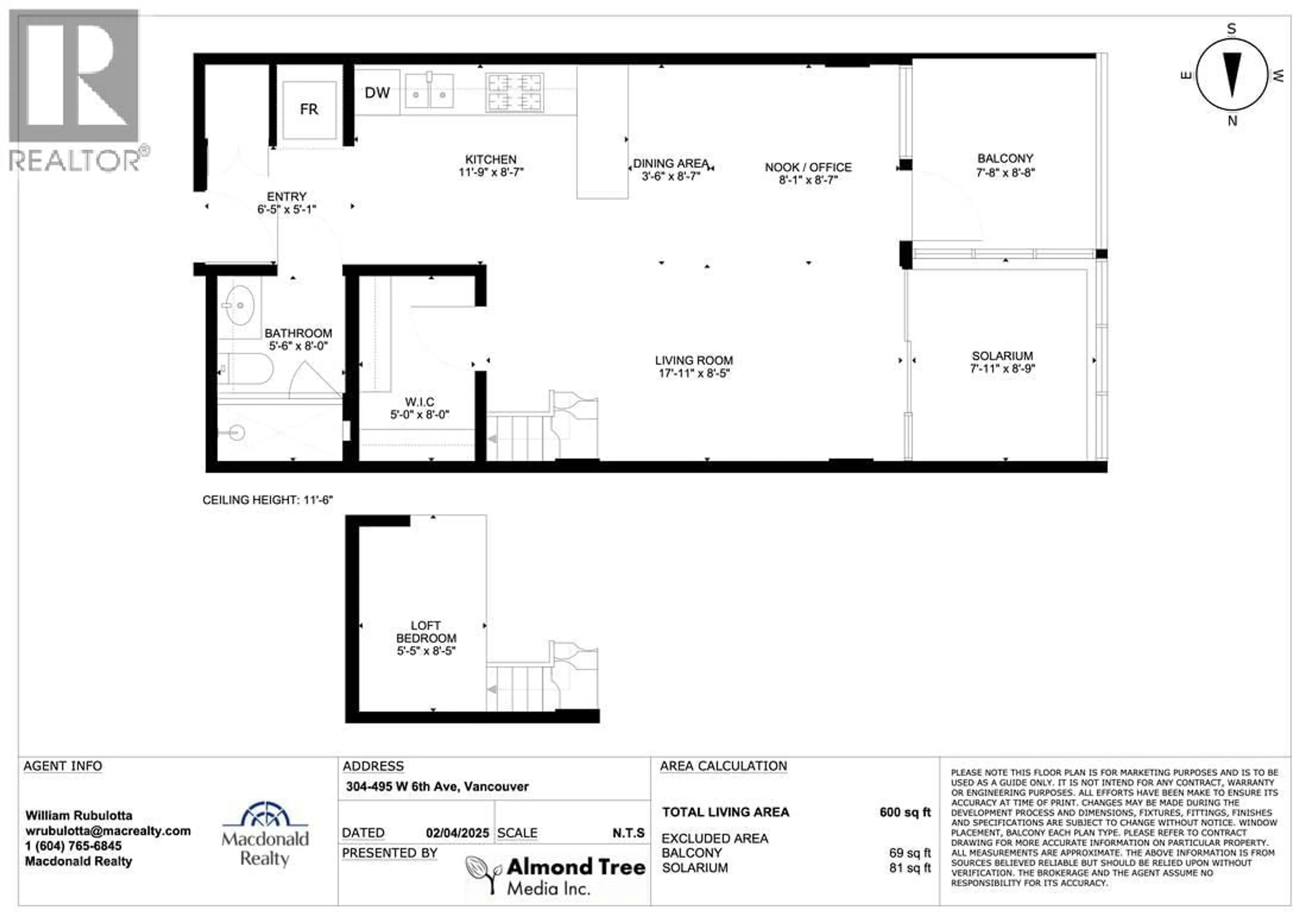
Welcome to Unit 304 at "Loft 495", a beautifully-designed 600 sqft, 1-bedroom loft that seamlessly blends modern elegance with versatile functionality. Featuring soaring 11 ft ceilings, this live/work loft offers a bright, open space perfect for creativity, relaxation, or productivity. The standout solarium is a multi-purpose gem, ready to be your home office, bedroom, reading nook, or indoor garden - the choice is yours! The newly updated bathroom adds a touch of sophistication, perfectly complementing the loft´s chic design. Step onto your private patio to enjoy stunning west-facing views and serene sunsets. With grocery & hardware stores, gourmet dining, and two Canada Line stations just steps away, this peaceful retreat offers unmatched convenience and the ultimate urban lifestyle. (id:39198)
Property Details
Interior
Features
Exterior
Parking
Garage spaces -
Garage type -
Total parking spaces 1
Condo Details
Amenities
Laundry - In Suite
Inclusions
Property History
24




