836 64TH AVENUE, Vancouver, British Columbia V6B2L4
Contact us about this property
Highlights
Estimated valueThis is the price Wahi expects this property to sell for.
The calculation is powered by our Instant Home Value Estimate, which uses current market and property price trends to estimate your home’s value with a 90% accuracy rate.Not available
Price/Sqft$1,044/sqft
Monthly cost
Open Calculator
Description
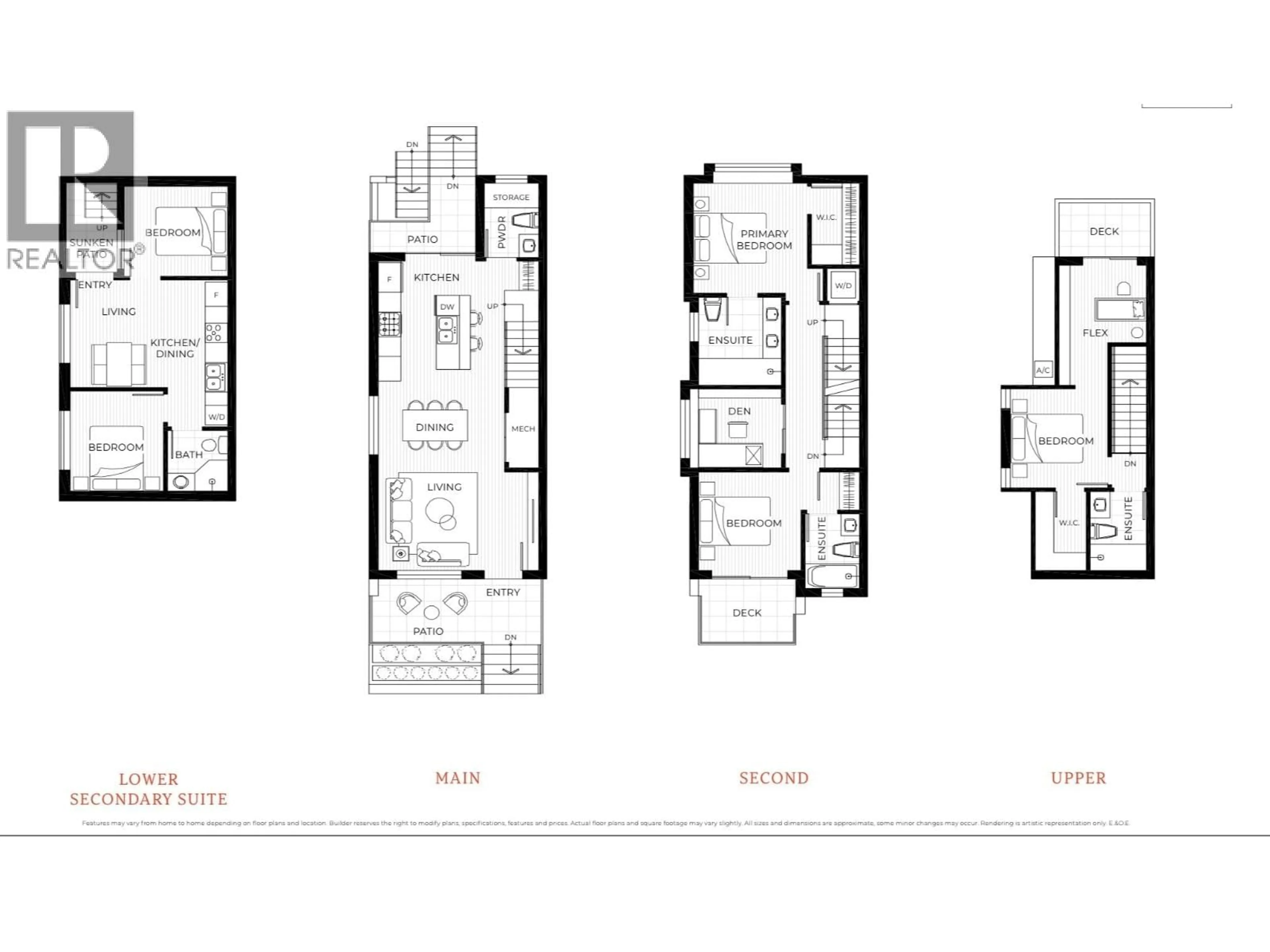
Brand new home. NO strata fee! Legal 2-Bed rental suite in basement. A curated collection of bespoke Duplex homes on Vancouver's tree-lined Marpole neighbourhood. Impeccable space designed enables spacious interior for living. Smart Home system equipped entire community, together with spa-like bathrooms, air conditioner and floor heating and more. Show by appointment. Openhouse 2-4 pm March 8. (id:39198)
Property Details
Interior
Features
Exterior
Parking
Garage spaces -
Garage type -
Total parking spaces 2
Condo Details
Inclusions
Property History
37





