4791 CULLODEN STREET, Vancouver, British Columbia V5V4X8
Contact us about this property
Highlights
Estimated valueThis is the price Wahi expects this property to sell for.
The calculation is powered by our Instant Home Value Estimate, which uses current market and property price trends to estimate your home’s value with a 90% accuracy rate.Not available
Price/Sqft$1,405/sqft
Monthly cost
Open Calculator
Description
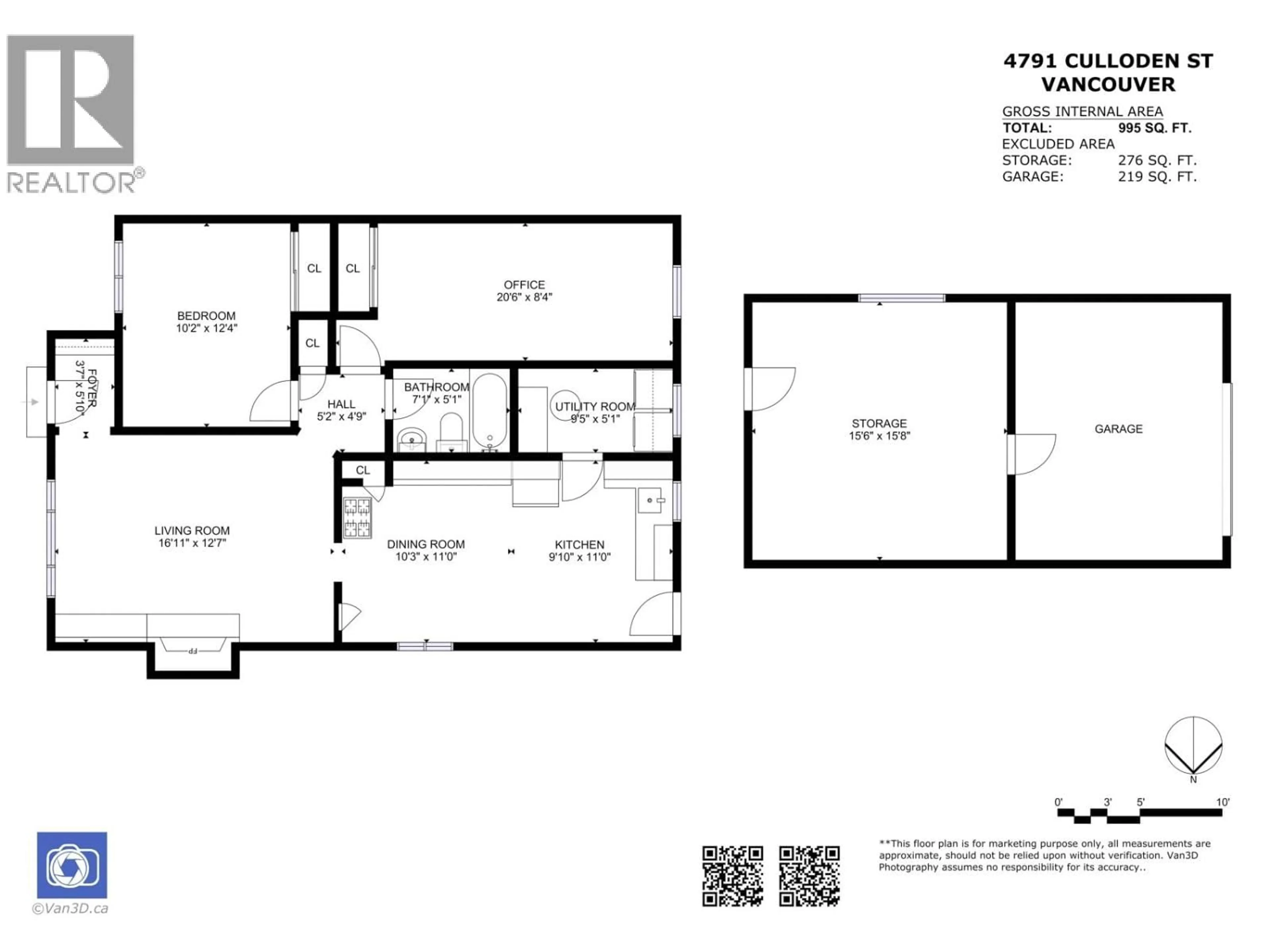
Open House Feb 8, Sunday 2 - 4pm // PRICED WELL BELOW ASSESSMENT!!! Well maintained charmer situated on a rare 46´ frontage lot near Knight & 33rd area! First time on the market in over 40 years; this rancher features 2 bedrooms and 1 full bathroom. Bright, sunny and spacious livingroom with original inlay hardwood floors, wood burning fireplace, updated furnace, newer washer and dryer and hot water tank replaced 2020. Flat lot with building potential for Multiplex development; Buyers to contact City of Vancouver for more information. Centrally located just steps to McBride Elementary, minutes to Tupper Secondary, Kensington Park community centre and transit! (id:39198)
Property Details
Interior
Features
Exterior
Parking
Garage spaces -
Garage type -
Total parking spaces 1
Property History
23




