4327 PERRY STREET, Vancouver, British Columbia V5N3X6
Contact us about this property
Highlights
Estimated valueThis is the price Wahi expects this property to sell for.
The calculation is powered by our Instant Home Value Estimate, which uses current market and property price trends to estimate your home’s value with a 90% accuracy rate.Not available
Price/Sqft$1,165/sqft
Monthly cost
Open Calculator
Description
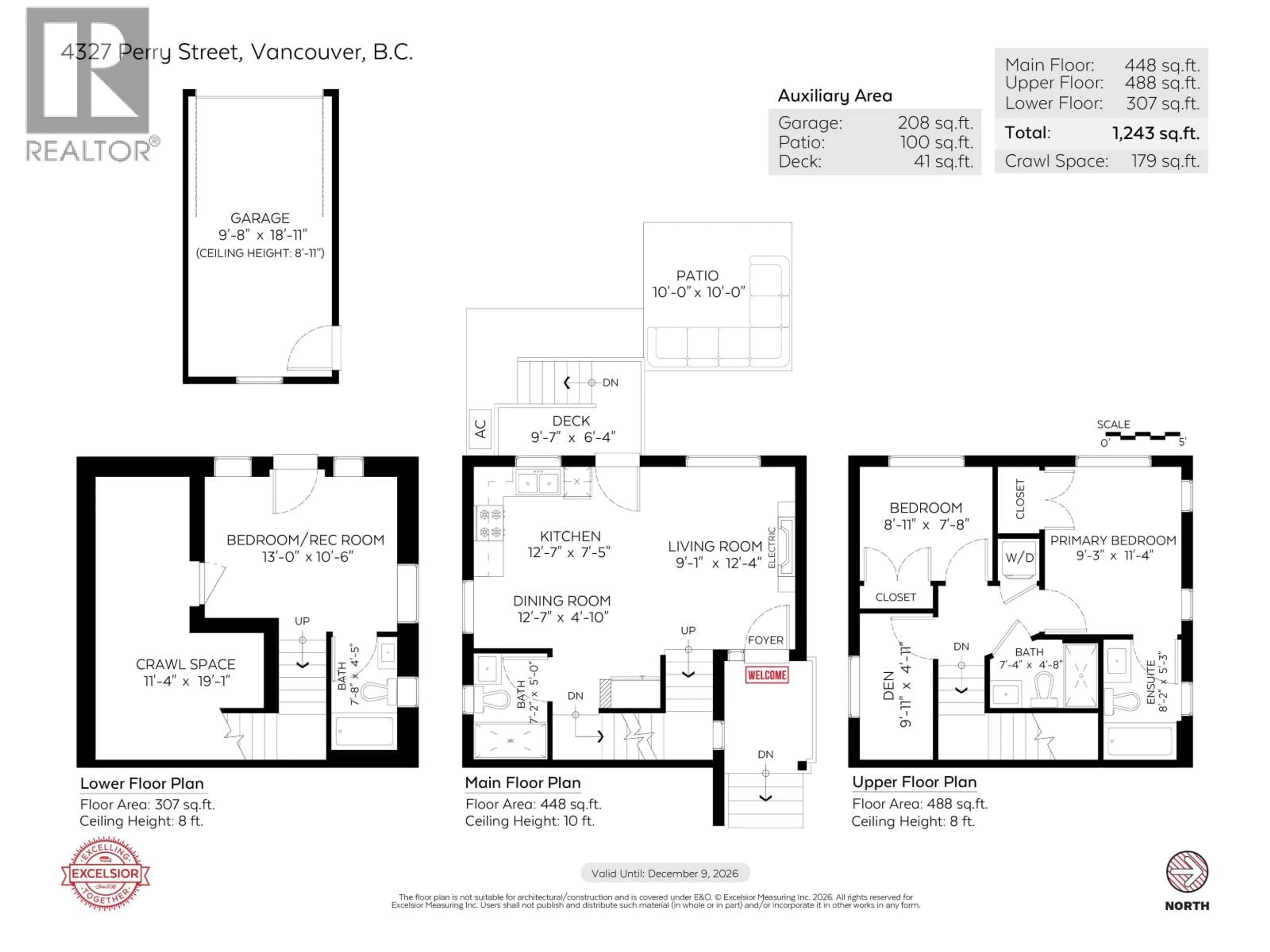
Welcome to this sparkling 4-year-old (back unit) half-duplex in the heart of sought-after Cedar Cottage. Designed for light and luxury, this bright residence offers a perfect balance of modern style and comfort. The main floor features airy 10' ceilings and a chef's kitchen with contemporary cabinetry and integrated Fisher & Paykel appliances, including a hidden fridge and dishwasher. The layout spans three levels, with the upper floor hosting two bedrooms and a versatile den. The lower level offers a third bedroom or recreation room with a private ensuite, plus a bonus 179-sq-ft crawl space. Enjoy West Coast living in your sunny, west-facing backyard with a private patio and garage. Upgraded with air-conditioning, this home is located close to local parks, transit, and diverse eateries. (id:39198)
Property Details
Interior
Features
Exterior
Parking
Garage spaces -
Garage type -
Total parking spaces 1
Condo Details
Amenities
Laundry - In Suite
Inclusions
Property History
33




