609 - 1680 12TH AVENUE, Vancouver, British Columbia V5N2A3
Contact us about this property
Highlights
Estimated valueThis is the price Wahi expects this property to sell for.
The calculation is powered by our Instant Home Value Estimate, which uses current market and property price trends to estimate your home’s value with a 90% accuracy rate.Not available
Price/Sqft$1,187/sqft
Monthly cost
Open Calculator
Description
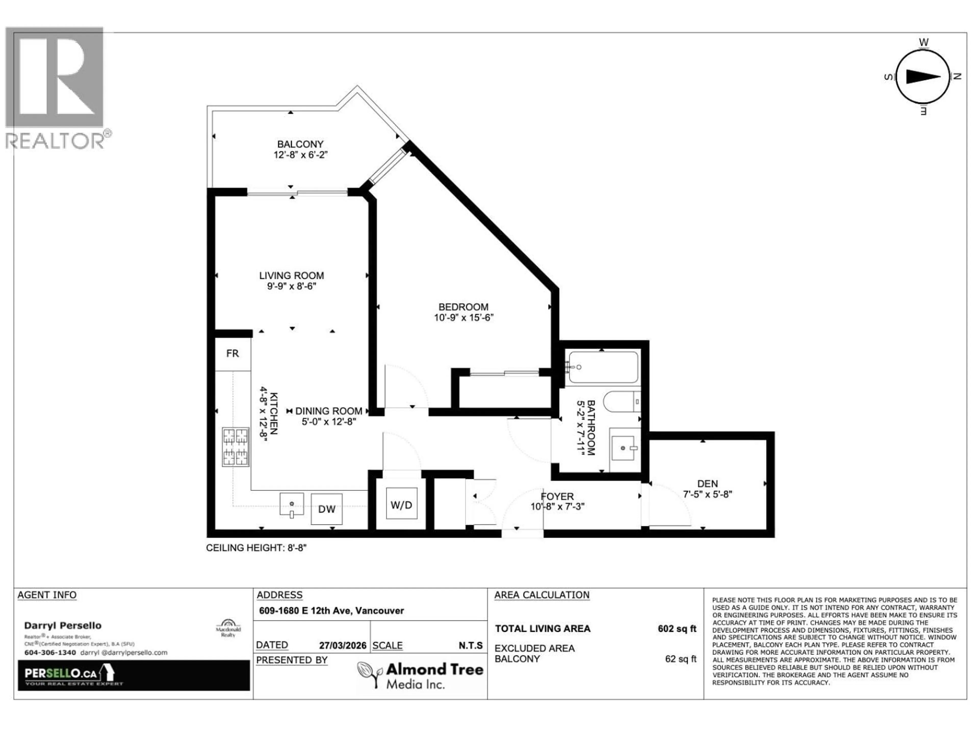
Waiting for a lovely new PH on the Drive? It' here! Just over 600 sq ft, with 8´8" ft ceilings, this highly desirable B5 plan 1 bed plus flex is BRAND NEW, never been occupied, full 2/5/10 warranty and GST has been paid! Enjoy quiet and serene view from your private balcony overlooking character homes along East 13. High end Fulgor Milano appliances, 5 burner gas cooktop, quartz counters and beautiful quiet closing Italian cabinetry. Enjoy FULL size washer and dryer, insuite storage/flex room and heat pump ensures year round comfort! Short strolls to Clark Park, Trout Lake and Broadway/Commercial Skytrain station and all the amazing retail along the Drive. Amenties include meeting room, party room and outdoor BBQ plaza with childrens play area and pet wash. Comes with 1 parking EV R/I. (id:39198)
Property Details
Interior
Features
Exterior
Parking
Garage spaces -
Garage type -
Total parking spaces 1
Condo Details
Amenities
Laundry - In Suite
Inclusions
Property History
30




