3254 5TH AVENUE, Vancouver, British Columbia V5M1P3
Contact us about this property
Highlights
Estimated valueThis is the price Wahi expects this property to sell for.
The calculation is powered by our Instant Home Value Estimate, which uses current market and property price trends to estimate your home’s value with a 90% accuracy rate.Not available
Price/Sqft$617/sqft
Monthly cost
Open Calculator
Description
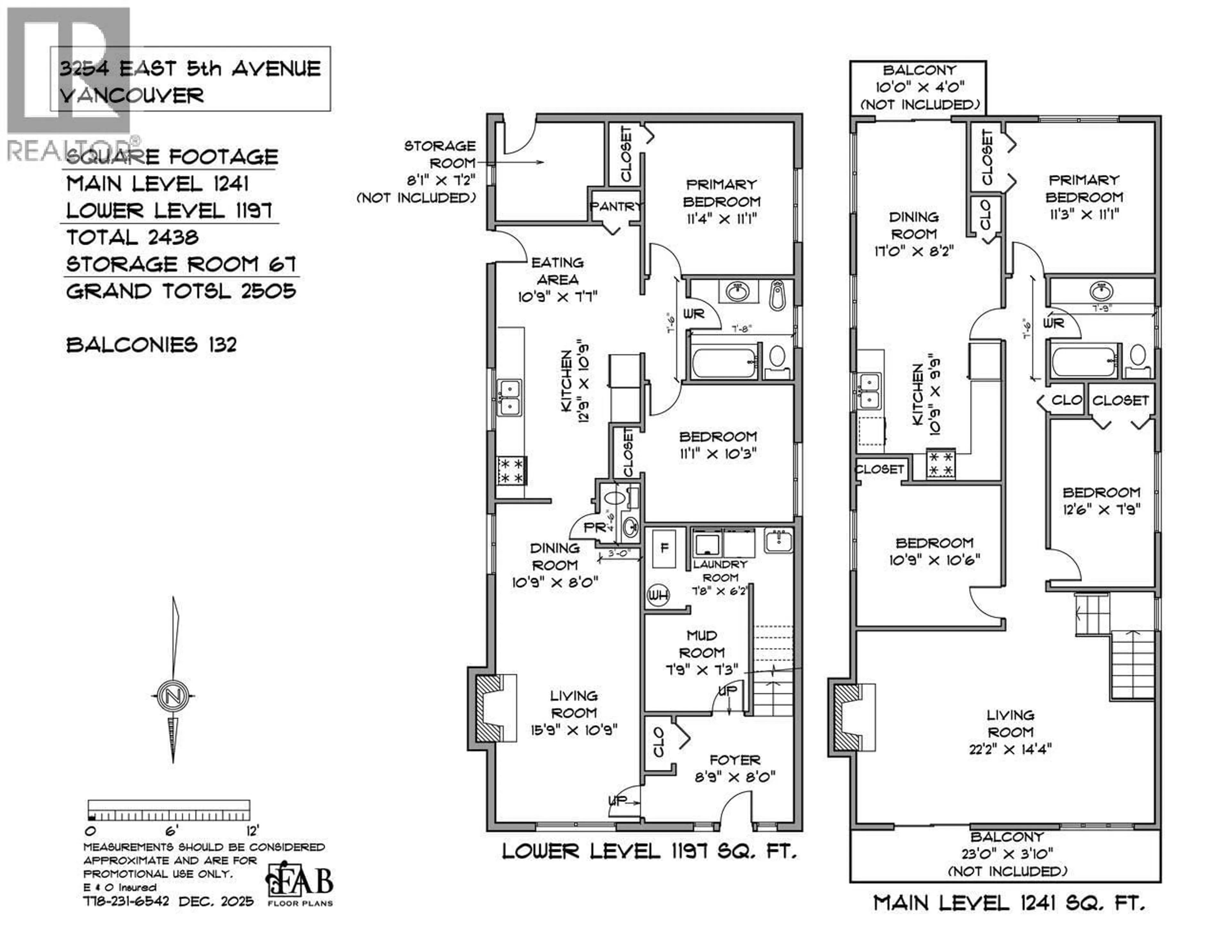
Detached single-family home located at 3254 East 5th Avenue in East Vancouver. Originally built in 1934, it is a two-level house with a full lower-level two-bedroom suite and a 3-bedroom main floor, offering approximately 2,505 square feet of total living space. The home sits on a 4,026-square-foot lot with rear-lane access and a detached double garage. Finished with stucco and brick and topped by a tar-and-gravel roof, the house is in average overall condition with dated interior finishes. The property is located in the established Renfrew neighbourhood, a quiet residential area characterized by single-family homes, and sits directly across from Sunrise Park with convenient access to schools, transit, shopping, and major roadways. The Court date is Mar. 23, at Smythe St. Court. Tks (id:39198)
Property Details
Interior
Features
Exterior
Parking
Garage spaces -
Garage type -
Total parking spaces 2
Property History
38




