1102 - 2323 STREET STREET, Vancouver, British Columbia V6J1S5
Contact us about this property
Highlights
Estimated valueThis is the price Wahi expects this property to sell for.
The calculation is powered by our Instant Home Value Estimate, which uses current market and property price trends to estimate your home’s value with a 90% accuracy rate.Not available
Price/Sqft$3,067/sqft
Monthly cost
Open Calculator
Description
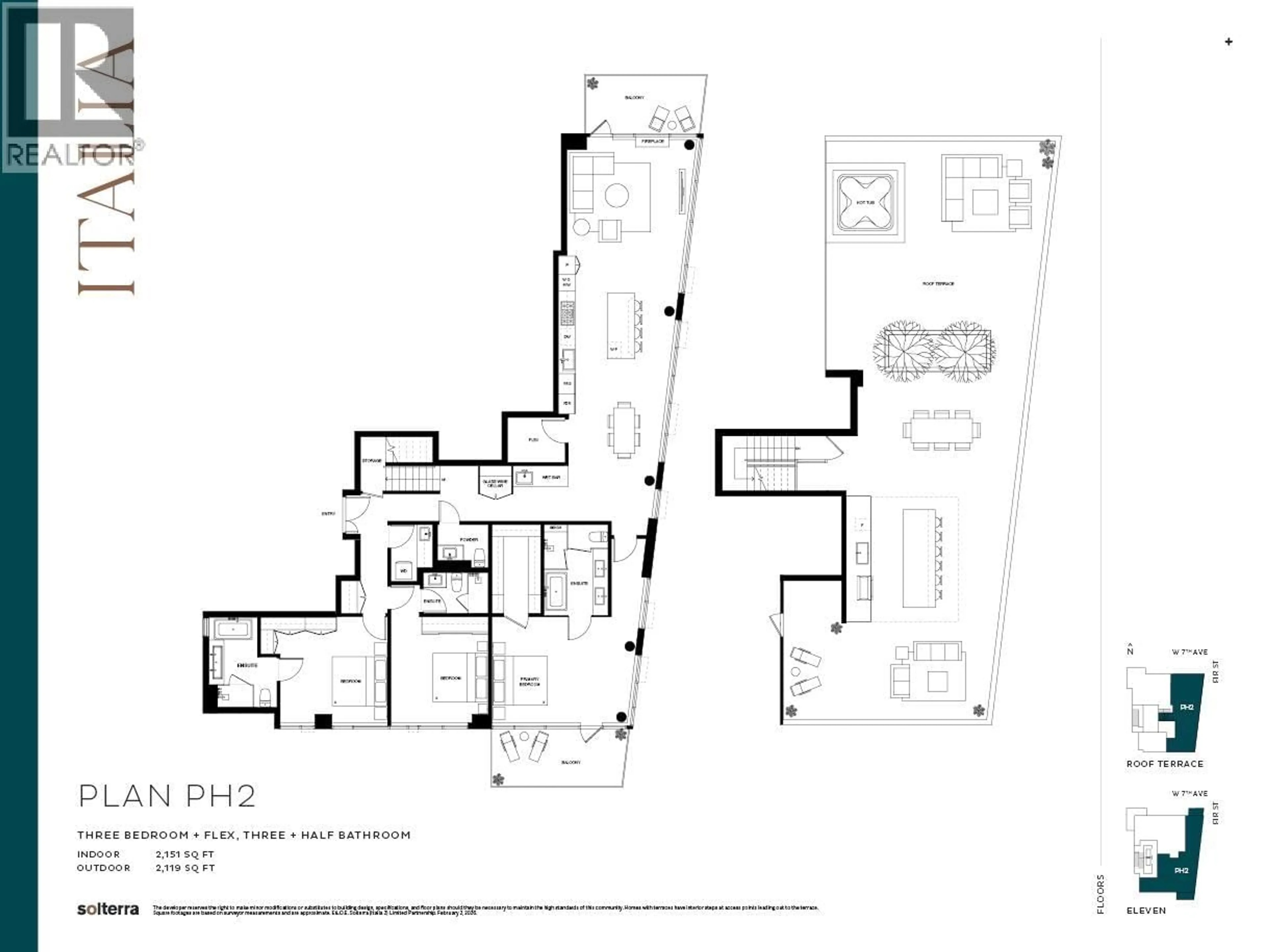
Penthouse at Italia´s Private Collection by award-winning Solterra. This 3 bed + flex home offers over 2,100 sqft of interior living and over 2,000 sqft of private rooftop terrace with hot tub and north-facing views of English Bay, downtown Vancouver, and the North Shore mountains. Open-concept kitchen, dining, and living areas designed for both everyday living and entertaining. Primary suite features a spa-inspired ensuite and custom millwork. Interiors include wide-plank hardwood flooring, Italian cabinetry, quartz surfaces, and a premium Gaggenau appliance package. A/C and smart home features included. Comes with secure parking, storage, and access to concierge, fitness, social lounge, and outdoor amenities. Located in South Granville near shops, dining, and future transit. Presentation Centre located at 880 Seymour Street, open Sat to Wed, 12-5 pm. (id:39198)
Property Details
Interior
Features
Exterior
Parking
Garage spaces -
Garage type -
Total parking spaces 4
Condo Details
Amenities
Exercise Centre
Inclusions
Property History
15





