703 - 1288 ALBERNI STREET, Vancouver, British Columbia V6E4N5
Contact us about this property
Highlights
Estimated valueThis is the price Wahi expects this property to sell for.
The calculation is powered by our Instant Home Value Estimate, which uses current market and property price trends to estimate your home’s value with a 90% accuracy rate.Not available
Price/Sqft$1,074/sqft
Monthly cost
Open Calculator
Description
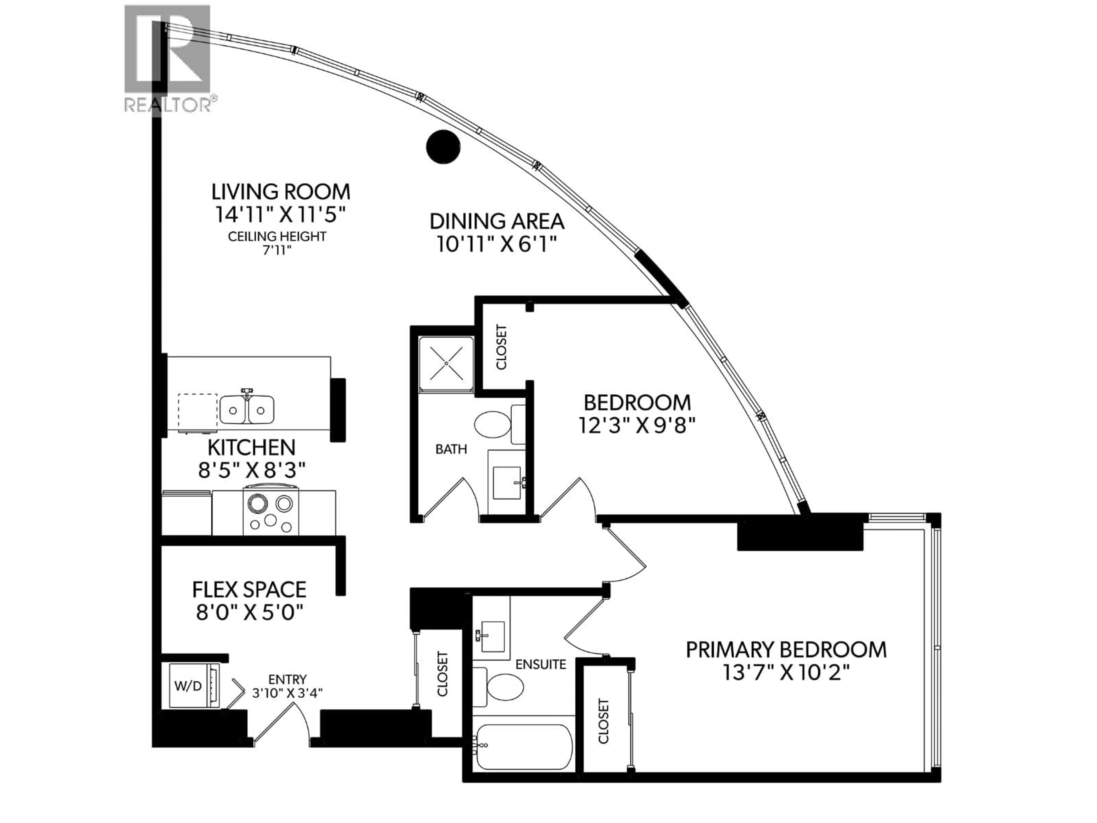
MECA Location & BESPOKE renovation! This private residence is situated above some of the world's most luxury fashion labels and foot steps away from a bunch of Michelin restaurants. Affluent community doesn't stop here...Equinox gym is a block away so looking good is as easy as A,B,C. If refined lifestyle is your way of life...This home features a massive primary room that fits a KING bed, a large entrance foyer that can house your own arcade machines! Bathrooms designs are inspired by Nubu Hotel and the kitchen is not only sexy, it's fully equipped with all the gear to be a TOP CHEF! 24/7 concierge team to service your special needs. When there are many options, you want to pick the unique and limited property you are proud to call home! Book your private viewing (id:39198)
Property Details
Interior
Features
Exterior
Parking
Garage spaces -
Garage type -
Total parking spaces 1
Condo Details
Amenities
Exercise Centre, Laundry - In Suite
Inclusions
Property History
21





