406 - 3050 KINGSWAY, Vancouver, British Columbia V5R5J7
Contact us about this property
Highlights
Estimated valueThis is the price Wahi expects this property to sell for.
The calculation is powered by our Instant Home Value Estimate, which uses current market and property price trends to estimate your home’s value with a 90% accuracy rate.Not available
Price/Sqft$973/sqft
Monthly cost
Open Calculator
Description
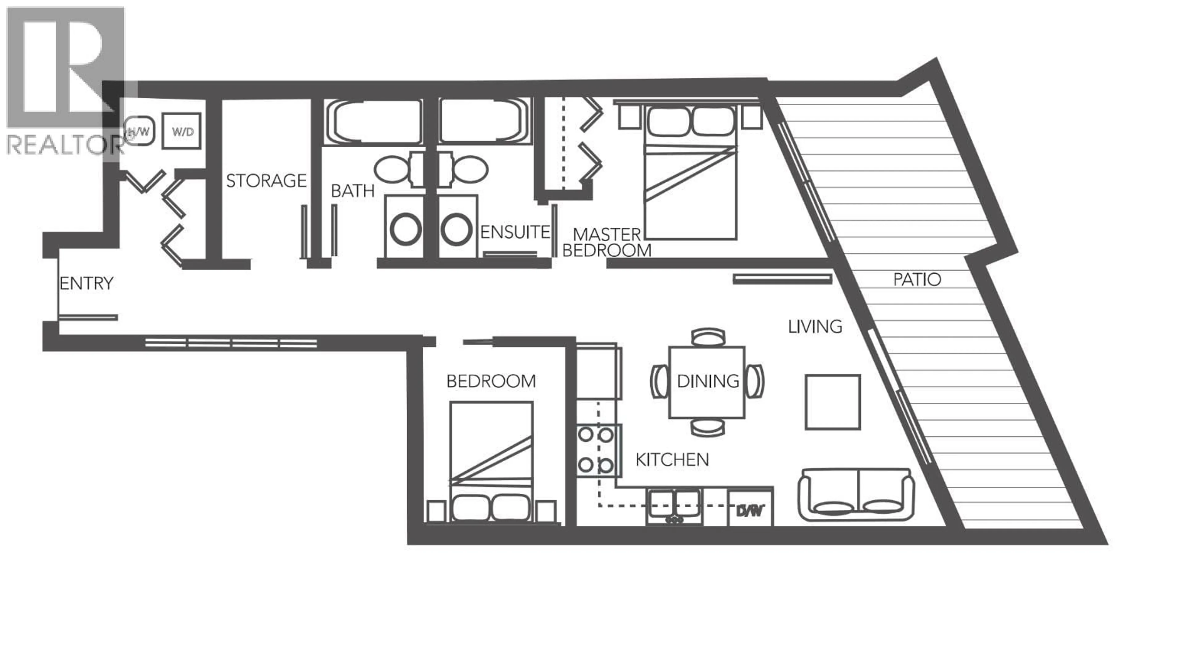
Welcome to RUPERT by Kaval, in the heart of vibrant Collingwood. This top-floor, end-unit, true corner home offers the perfect combination of modern comfort and everyday convenience. Featuring 2 bedrooms and a den, it´s ideal for a home office, kids´ playroom, or creative space. The sleek, contemporary design includes designer paint colours, stainless steel appliances, quartz countertops, and over-height ceilings, creating a bright and open atmosphere. Located steps away from schools, shopping, cafes, banks, grocery stores, and restaurants, with easy access to Joyce SkyTrain and major bus routes, you´ll enjoy seamless connectivity throughout Vancouver. Experience boutique living at its best-modern design, unbeatable location, and a home that truly stands out. (id:39198)
Property Details
Interior
Features
Exterior
Parking
Garage spaces -
Garage type -
Total parking spaces 1
Condo Details
Amenities
Laundry - In Suite
Inclusions
Property History
32





