20453 78A AVENUE, Langley, British Columbia V2Y1X3
Contact us about this property
Highlights
Estimated valueThis is the price Wahi expects this property to sell for.
The calculation is powered by our Instant Home Value Estimate, which uses current market and property price trends to estimate your home’s value with a 90% accuracy rate.Not available
Price/Sqft$473/sqft
Monthly cost
Open Calculator
Description
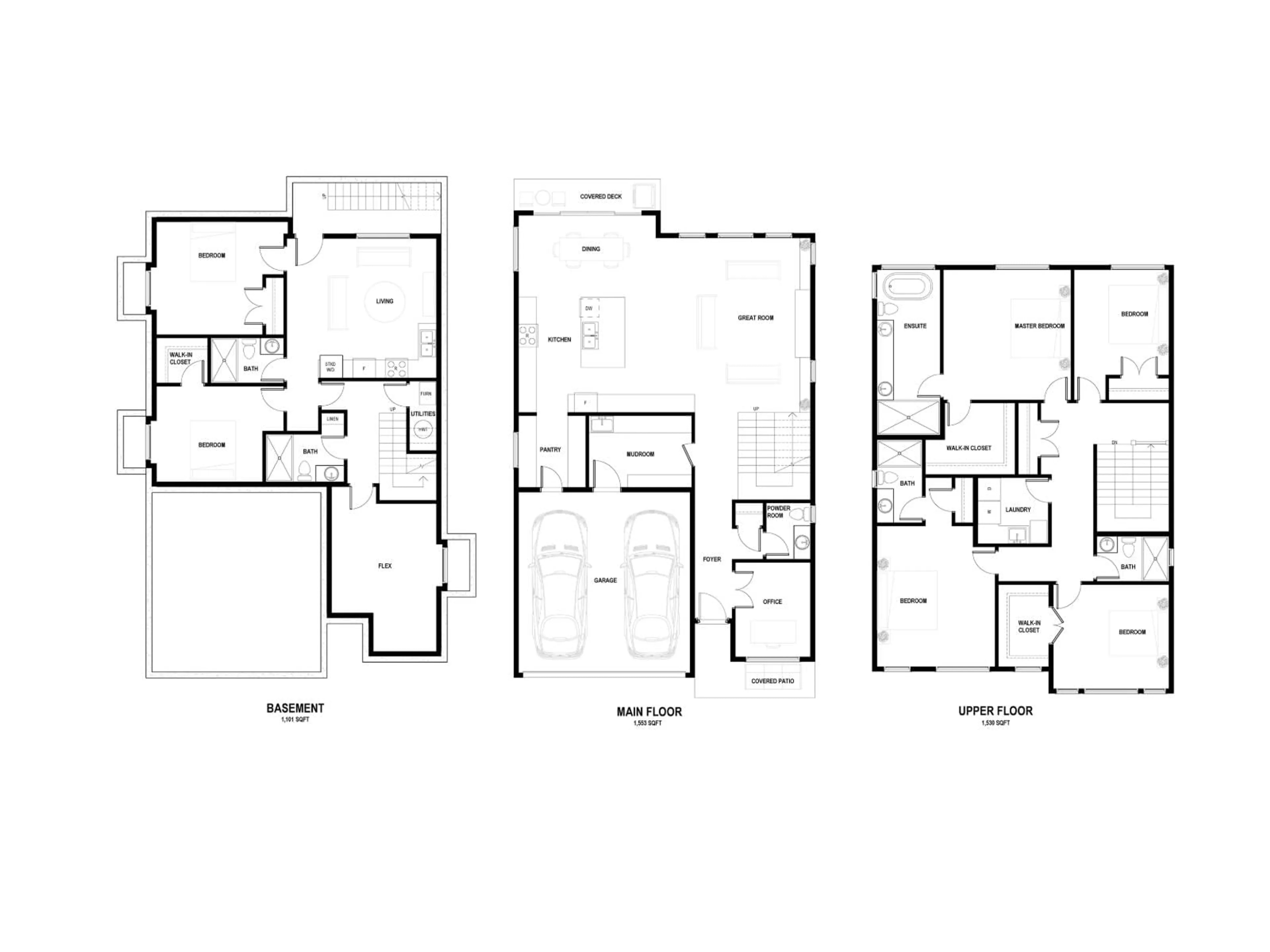
Introducing Lot 12 at the Seventy-Eight Collection in Willoughby, Langley. This brand-new single-family home sits on a 3,700 sq. ft. lot and offers over 4,000 sq. ft. of finished living space across three levels. Designed with families in mind, the home features 7 bedrooms, 5.5 bathrooms, an open-concept main floor with a gourmet kitchen, and a spacious great room. The fully finished basement with separate entry provides flexibility for a suite or additional living space. Located steps from schools, parks, and shops, this move-in ready home combines modern comfort with everyday convenience. Estimated completion Q3 2026. (id:39198)
Property Details
Interior
Features
Property History
2


