8769 215B STREET, Langley, British Columbia V1M2E6
Contact us about this property
Highlights
Estimated valueThis is the price Wahi expects this property to sell for.
The calculation is powered by our Instant Home Value Estimate, which uses current market and property price trends to estimate your home’s value with a 90% accuracy rate.Not available
Price/Sqft$662/sqft
Monthly cost
Open Calculator
Description
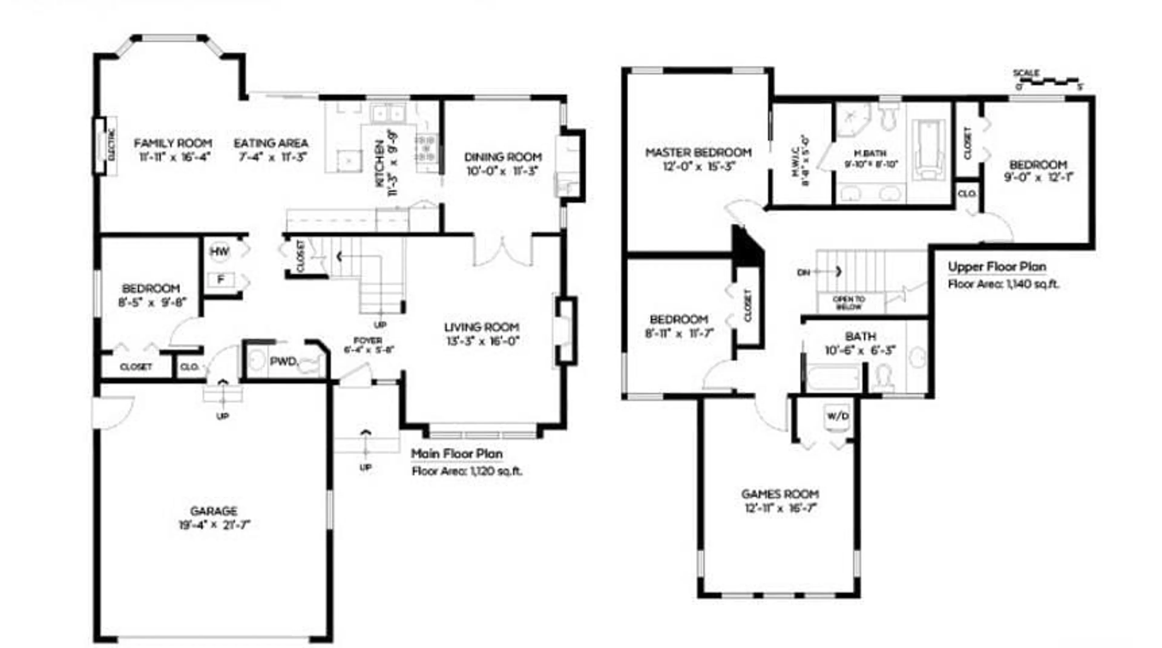
RARELY FOUND! FOREST HILLS Stunner in Walnut Grove! 4bdrms plus game room (could be used as 5bdrm) total 2260 sq ft. This house sits on a corner lot which offers loads of windows & skylights, a bright formal living area w gas fireplaces. Custom built in bar area in dining room to entertain. Kitchen area overlooks family room with ample storage capacity. Sliding door onto your private fully fenced backyard w 20'x25' stamped concrete deck. UPGRADES: Flooring / Painting / Appliances / Cabinets/ Roof/ Windows/ furnace w A/C / How Water Tank / Plumbing & Wiring. Walking distance to Alex Hope Elementary & Park! Steps to Hwy 1, shoppings, Rec Centre. Perfect for families! (id:39198)
Property Details
Interior
Features
Exterior
Parking
Garage spaces -
Garage type -
Total parking spaces 4
Property History
32





