4739 223 STREET, Langley, British Columbia V2Z1M5
Contact us about this property
Highlights
Estimated valueThis is the price Wahi expects this property to sell for.
The calculation is powered by our Instant Home Value Estimate, which uses current market and property price trends to estimate your home’s value with a 90% accuracy rate.Not available
Price/Sqft$635/sqft
Monthly cost
Open Calculator
Description
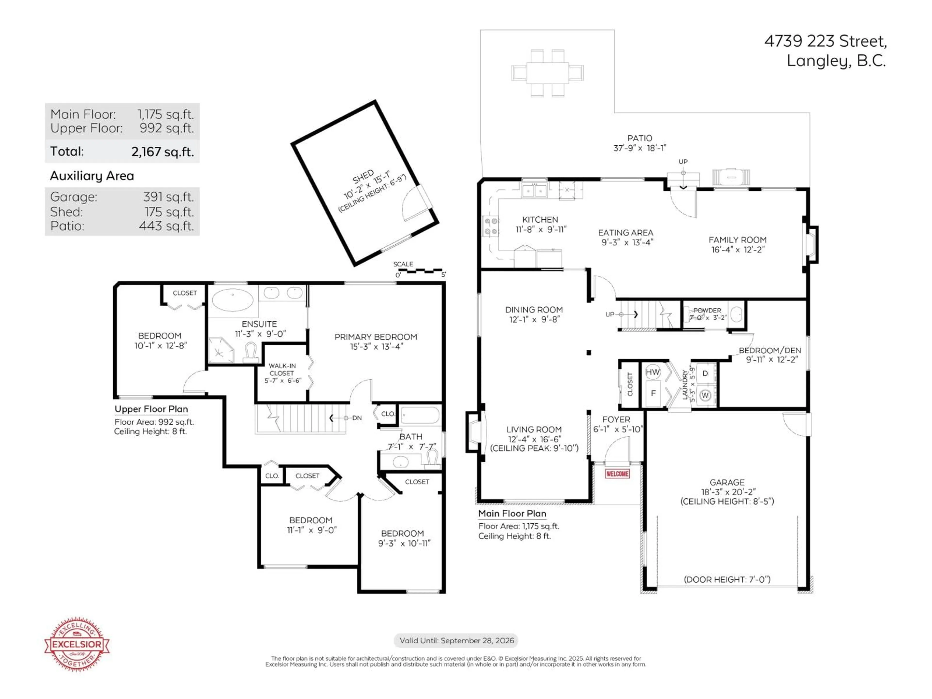
Attractive 2-storey home on a quiet, tree-lined street in upper Murrayville. Main floor features a welcoming living room w/ hardwood floors, gas fireplace, vaulted ceilings, & an adjacent dining area w/ crown molding. Kitchen w/ white cabinets, stainless appliances, tile backsplash, pot lights, & open eating area. Family room w/ gas fireplace & access to fenced rear yard w/ stamped concrete patios, gazebo, & large storage shed/shop w/ home office/flex space possibilities. Main floor bedroom/den, powder room, & laundry. Upstairs offers a generously sized primary bedroom w/ 5 pc ensuite, 3 additional bedrooms, & a full 4-pc bathroom. Central air-conditioning & crawl space storage. Great family neighbourhood close to parks, dog park, cafes, shops, schools, hospital, & WC Blair Rec. Centre. (id:39198)
Property Details
Interior
Features
Exterior
Parking
Garage spaces -
Garage type -
Total parking spaces 6
Property History
40





