21658 50B AVENUE, Langley, British Columbia V3A8W8
Contact us about this property
Highlights
Estimated valueThis is the price Wahi expects this property to sell for.
The calculation is powered by our Instant Home Value Estimate, which uses current market and property price trends to estimate your home’s value with a 90% accuracy rate.Not available
Price/Sqft$550/sqft
Monthly cost
Open Calculator
Description
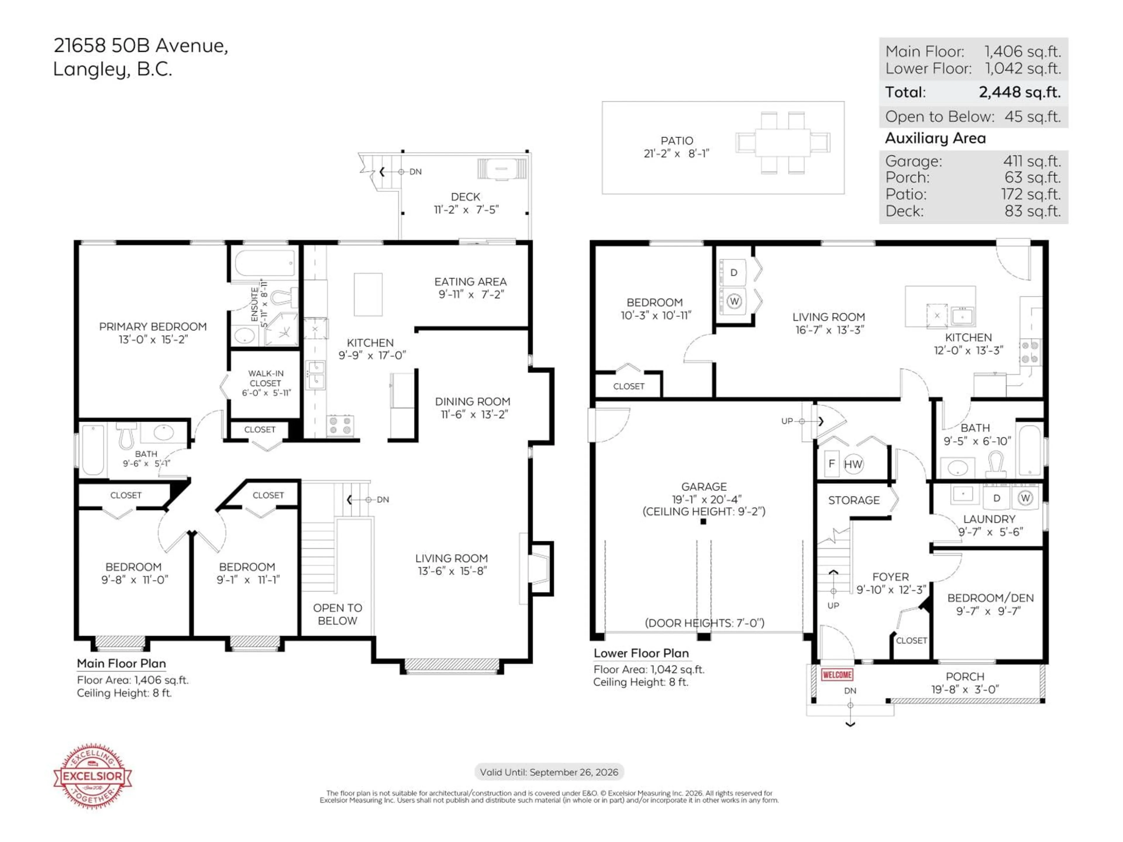
Terrific basement entry home on a corner lot in a quiet, family-friendly Murrayville neighbourhood. Foyer w/ open staircase leading to the spacious main (upper) floor w/ hardwood floors, crown molding, large living room w/ feature gas fireplace, & adjacent dining area. Kitchen w/ white raised-panel shaker cabinets, tile backsplash, stainless appliances, & eating area w/ access to the covered deck & south-exposed rear yard. Primary bedroom w/ 4 pc ensuite & walk-in closet, 2 add'l bedrooms, & 4 pc main bath. Grade-level basement w/ laundry & bedroom/den off the foyer. Bright & open 1 bedroom suite w/ separate laundry, covered patio, & private side yard. Plenty of storage w/ crawlspace, double garage, & shed. Covered RV parking & plenty of add'l parking! Close to schools, parks, & shopping. (id:39198)
Property Details
Interior
Features
Exterior
Parking
Garage spaces -
Garage type -
Total parking spaces 8
Property History
37




