332 - 27358 32 AVENUE, Langley, British Columbia V4W3M5
Contact us about this property
Highlights
Estimated valueThis is the price Wahi expects this property to sell for.
The calculation is powered by our Instant Home Value Estimate, which uses current market and property price trends to estimate your home’s value with a 90% accuracy rate.Not available
Price/Sqft$487/sqft
Monthly cost
Open Calculator
Description
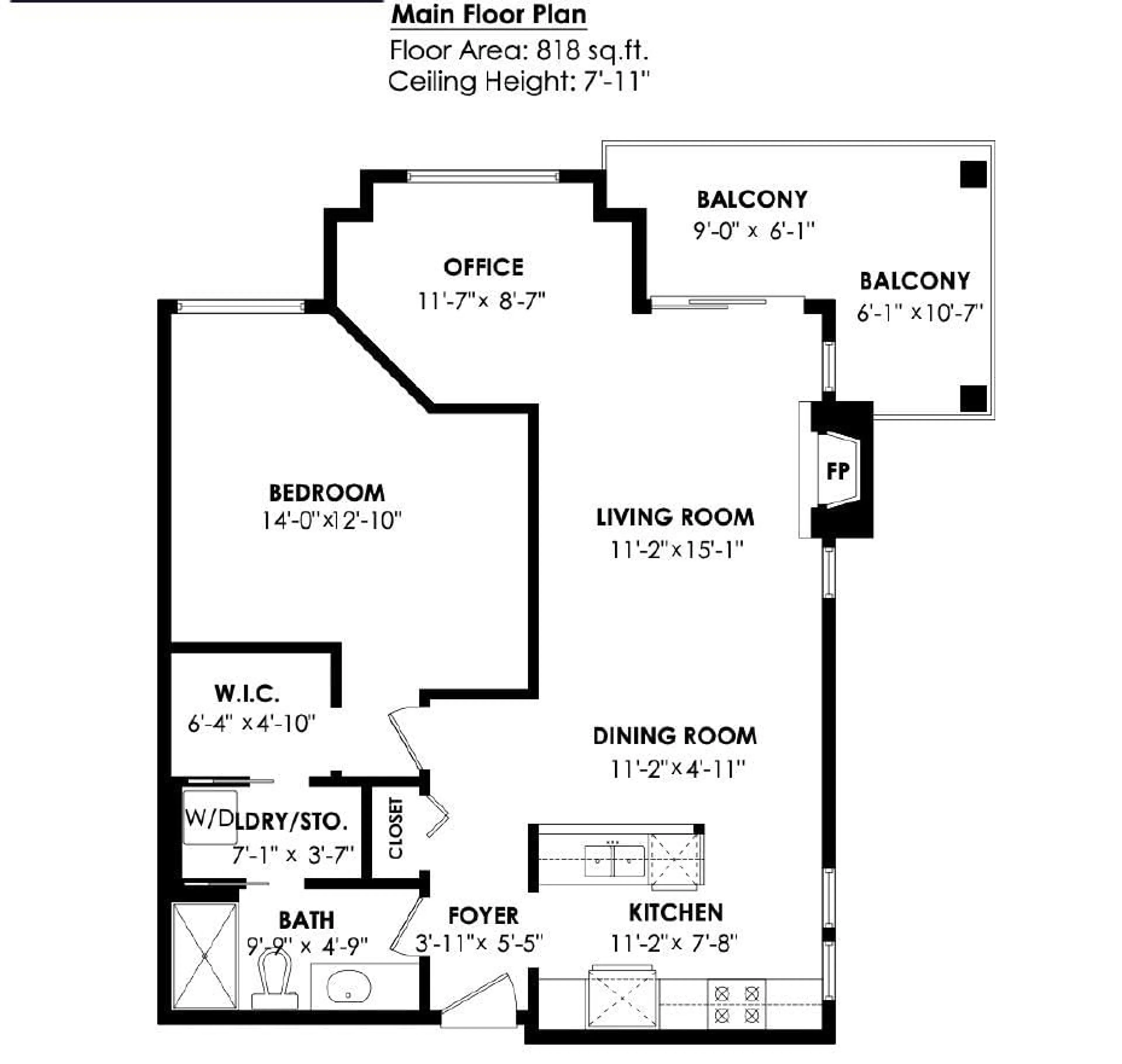
This is the one, Stop The Search! Immaculate 3rd-floor corner home featuring a 1 bedroom & 1 generous Den / Office / bedroom filled with natural light from all sides, plus a wraparound deck. Offering over 818 sq ft of bright, functional interior living space, shows like new with a spacious master bedroom, walk-in closet, updated bathroom walk-in shower. The kitchen is a lovely galley kitchen with windows, gas fireplace (gas and hot water are included in strata fees), in-suite laundry, updated flooring, and fresh finishes. Move in Ready, Enjoy elevated privacy with a wraparound balcony overlooking a Bertrand Creek & a green space setting. Includes same-floor storage & secure underground parking. Steps to parks, trails, shopping, schools, and everyday amenities. (id:39198)
Property Details
Interior
Features
Exterior
Parking
Garage spaces -
Garage type -
Total parking spaces 1
Condo Details
Amenities
Storage - Locker, Laundry - In Suite
Inclusions
Property History
31




