10 - 9400 128 STREET, Surrey, British Columbia V3V5N4
Contact us about this property
Highlights
Estimated valueThis is the price Wahi expects this property to sell for.
The calculation is powered by our Instant Home Value Estimate, which uses current market and property price trends to estimate your home’s value with a 90% accuracy rate.Not available
Price/Sqft$495/sqft
Monthly cost
Open Calculator
Description
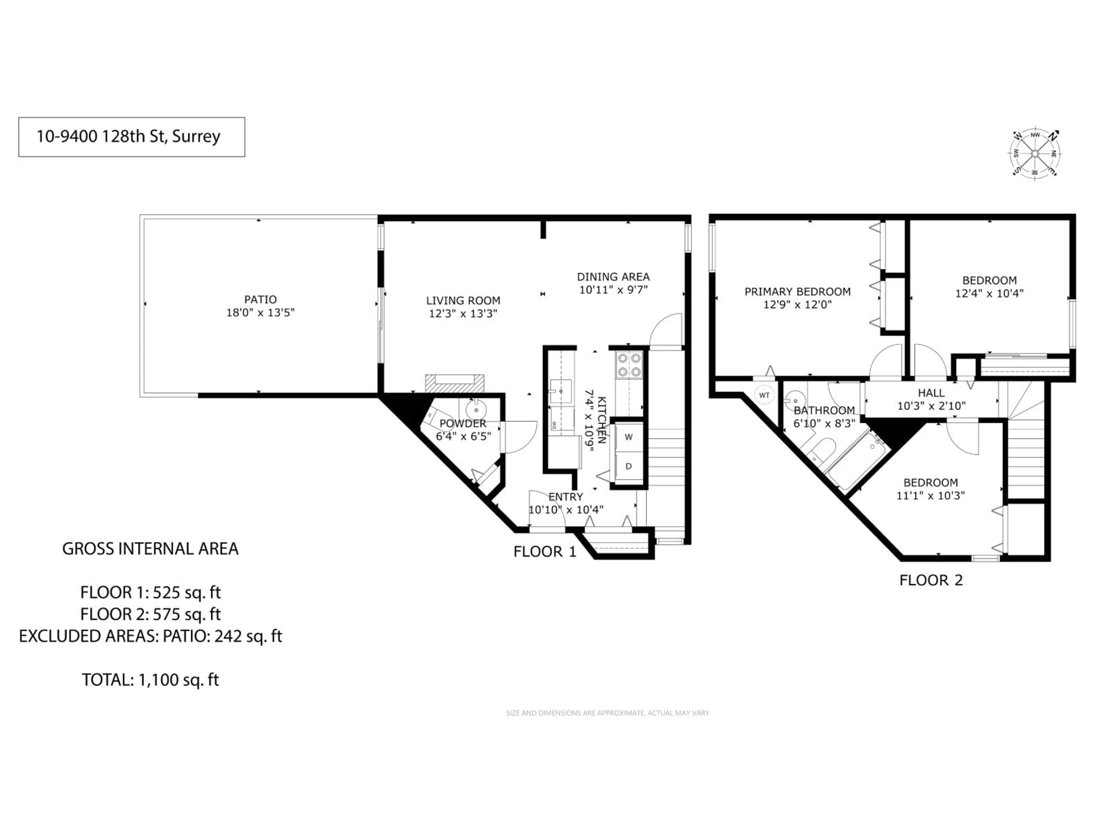
ONE OF THE LOWEST-PRICED TOWNHOMES IN SURREY! Exceptional value in this beautiful 3-bedroom, 2-bath home nestled in a quiet, family- and pet-friendly complex. This bright two-storey residence features a spacious primary retreat (king-size ready) plus two well-sized bedrooms with generous closets. Enjoy a large living and dining area that opens to a very private, oversized backyard-perfect for kids, pets, and easy entertaining. Covered parking with ample visitor parking adds everyday convenience. Unbeatable location just steps to transit, grocery stores, banks, schools, and restaurants. Walking distance to both elementary and high schools-an ideal starter home or savvy investment opportunity. OPEN HOUSE Sat Feb 14th, 2-4pm. Some photos "digitally enhanced" and/or "digitally decluttered". (id:39198)
Property Details
Interior
Features
Exterior
Parking
Garage spaces -
Garage type -
Total parking spaces 1
Condo Details
Inclusions
Property History
23





