9666 ASHWOOD DRIVE, Richmond, British Columbia V6Y2Z5
Contact us about this property
Highlights
Estimated valueThis is the price Wahi expects this property to sell for.
The calculation is powered by our Instant Home Value Estimate, which uses current market and property price trends to estimate your home’s value with a 90% accuracy rate.Not available
Price/Sqft$819/sqft
Monthly cost
Open Calculator
Description
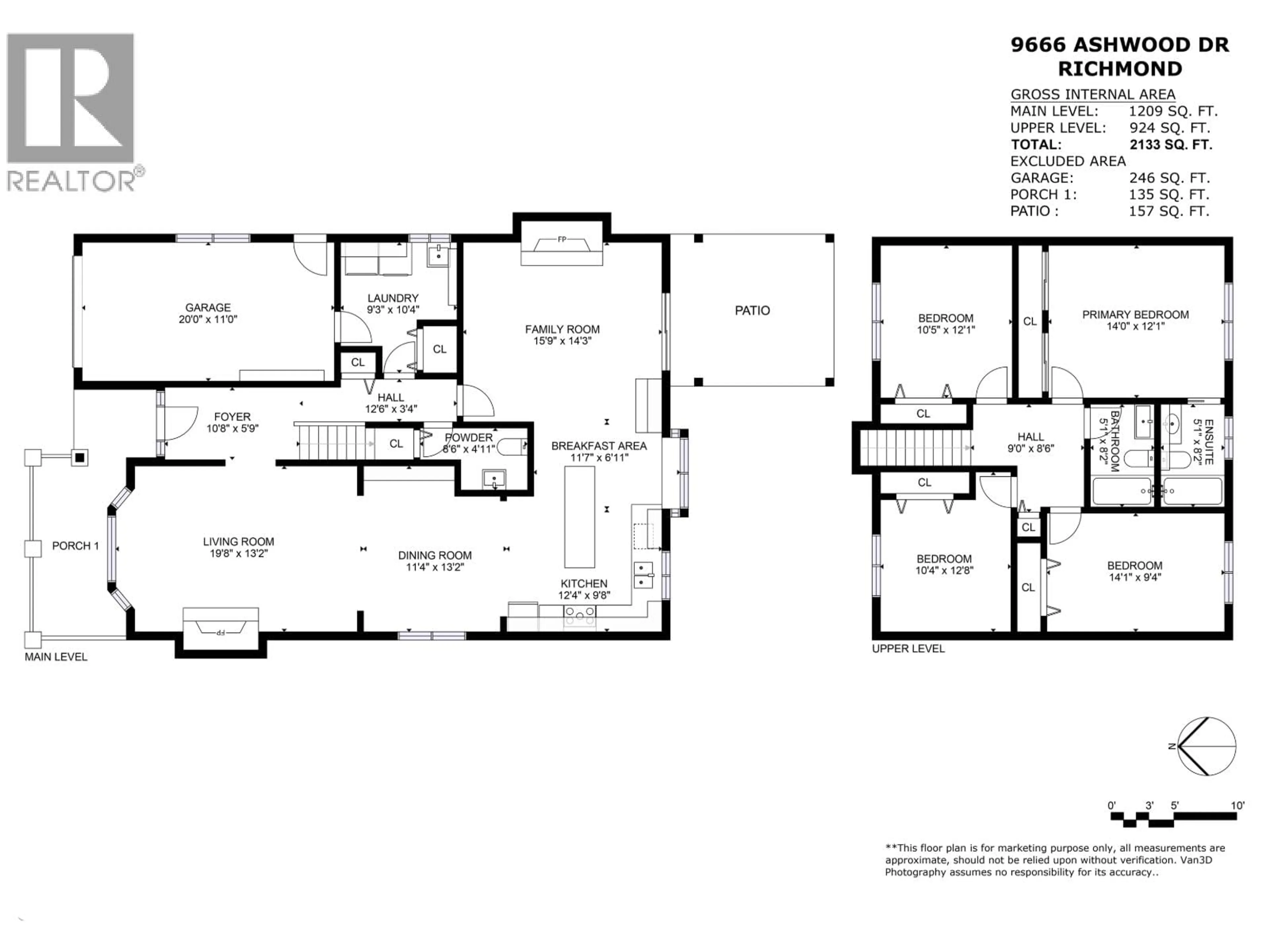
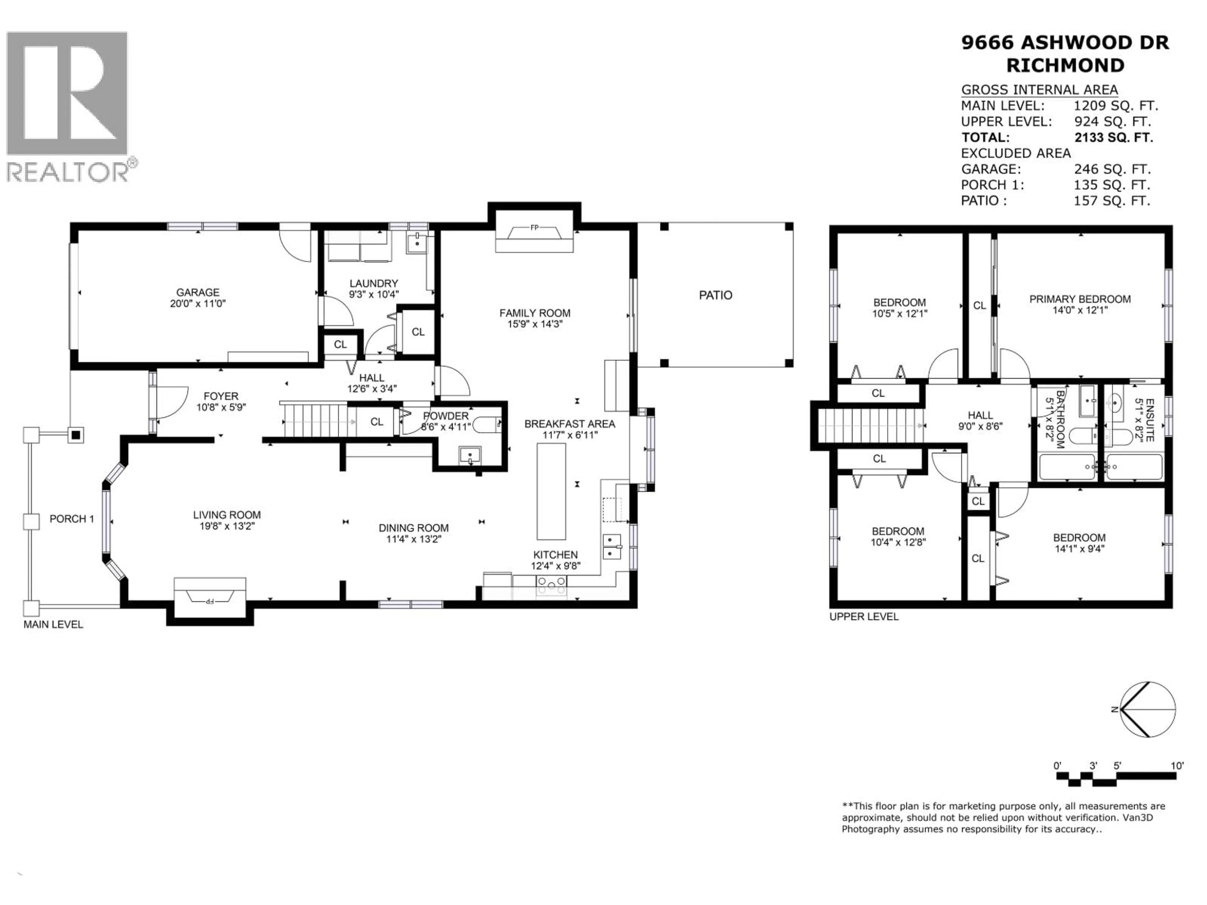
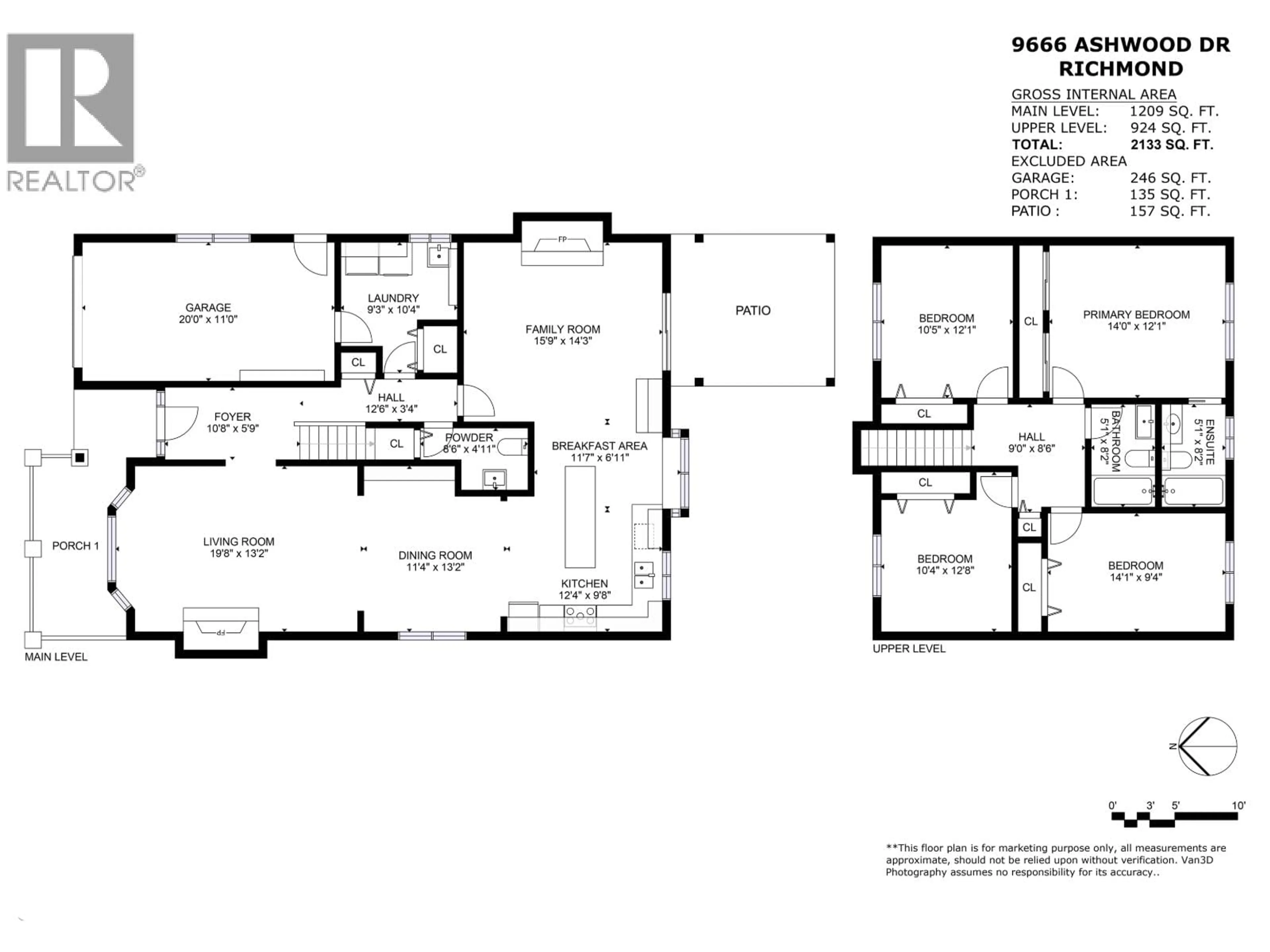
This spacious and well-maintained home sits on a generous 4,000 sf lot and offers a practical, family-friendly layout. Ideally located in a quiet residential neighborhood in the desirable Garden City area, perfect for families. Main floor features a functional floor plan with a welcoming living room, a connected dining area, a well-equipped kitchen, a powder room, and a convenient laundry area. The property comes with numerous extras, including tankless hot water(2018),energy efficient windows & patio door(2009) and refrigerator, stove & washer/dryer upgraded. Just a short walk to DeBeck Elementary, and only a 4-minute drive to Palmer Secondary, this home offers both comfort and convenience for growing families. Open house: Oct 25 Saturday 2-4pm & Oct 26 Sunday 2-4pm (id:39198)
Property Details
Interior
Features
Exterior
Parking
Garage spaces -
Garage type -
Total parking spaces 1
Property History
40




