915 - 6200 MINORU BOULEVARD, Richmond, British Columbia V6Y0M9
Contact us about this property
Highlights
Estimated valueThis is the price Wahi expects this property to sell for.
The calculation is powered by our Instant Home Value Estimate, which uses current market and property price trends to estimate your home’s value with a 90% accuracy rate.Not available
Price/Sqft$981/sqft
Monthly cost
Open Calculator
Description
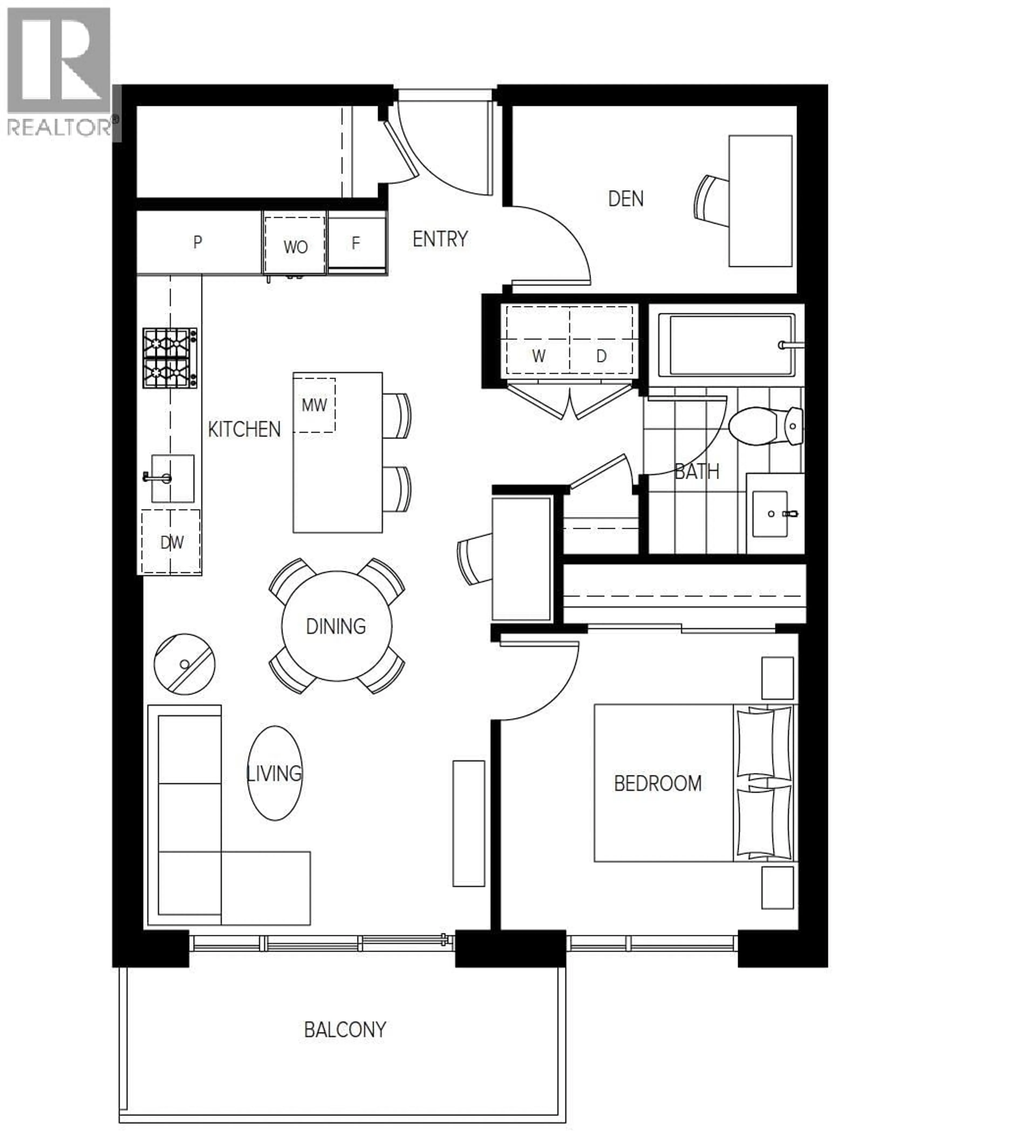
Situated on the 9th floor of RC Tower A, this air-conditioned 1 Bedroom + Den, 1 Bathroom home offers refined living in SHAPE´s master-planned community at the centre of Richmond. With CF Richmond Centre only steps away, daily conveniences, dining, and shopping are all within effortless reach. The interior is bright and well planned, highlighted by 9-foot ceilings, sleek Italian cabinetry, and top-tier GAGGENAU appliances. Residents have access to an outstanding collection of amenities, including a fitness centre, sky garden, lounge spaces, music and mahjong rooms, guest suites, and more. An EV-ready parking stall is included. Open House: Dec 13 & 14 (Sat & Sun) from 2-4 pm. (id:39198)
Property Details
Interior
Features
Exterior
Parking
Garage spaces -
Garage type -
Total parking spaces 1
Condo Details
Amenities
Exercise Centre, Guest Suite, Laundry - In Suite
Inclusions
Property History
35





