528 - 5233 GILBERT ROAD, Richmond, British Columbia V7C0B3
Contact us about this property
Highlights
Estimated valueThis is the price Wahi expects this property to sell for.
The calculation is powered by our Instant Home Value Estimate, which uses current market and property price trends to estimate your home’s value with a 90% accuracy rate.Not available
Price/Sqft$890/sqft
Monthly cost
Open Calculator
Description
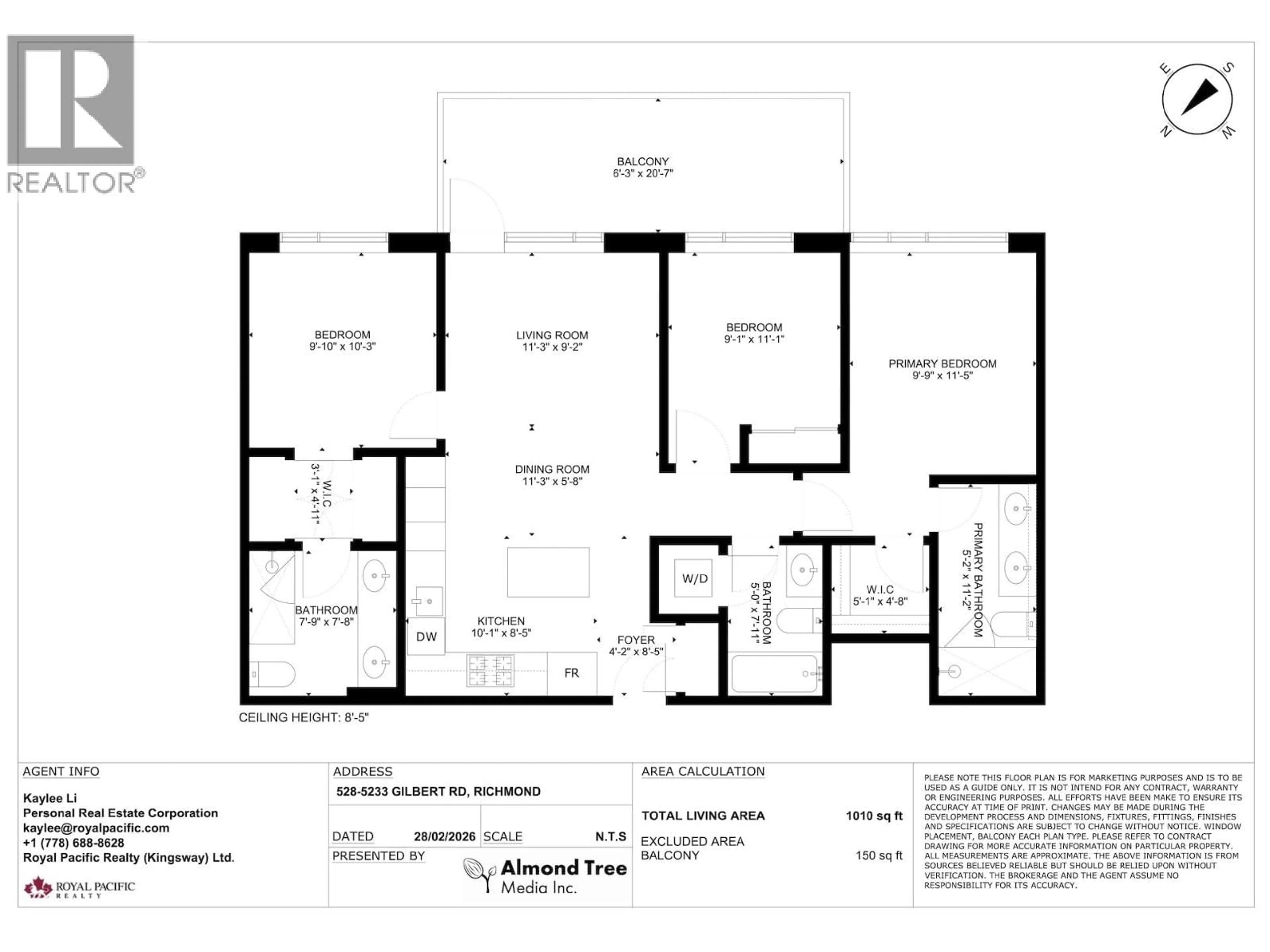
Center Location in Richmond! River Park Place Tower1 built by Award winning INTRACORP. Nice Bright and Big sizes 3 bed all South facing with Garden VIEW + 3 baths, Rare 3 suites in one unit with perfect floor plan! central A/C, integrated appliances, quartz countertops, a large balcony great than 130 sft. Less than 5 minutes walking distance to Olympic Oval, Shopping Centre. Also a 25000 SF rooftop garden & 5000 SF of indoor amenities (basketball court, exercise room, music and Study room). Don't miss out, and bring your best offer! (id:39198)
Property Details
Interior
Features
Exterior
Parking
Garage spaces -
Garage type -
Total parking spaces 1
Condo Details
Amenities
Exercise Centre
Inclusions
Property History
29




