121 - 7437 MOFFATT ROAD, Richmond, British Columbia V6Y3V9
Contact us about this property
Highlights
Estimated valueThis is the price Wahi expects this property to sell for.
The calculation is powered by our Instant Home Value Estimate, which uses current market and property price trends to estimate your home’s value with a 90% accuracy rate.Not available
Price/Sqft$618/sqft
Monthly cost
Open Calculator
Description
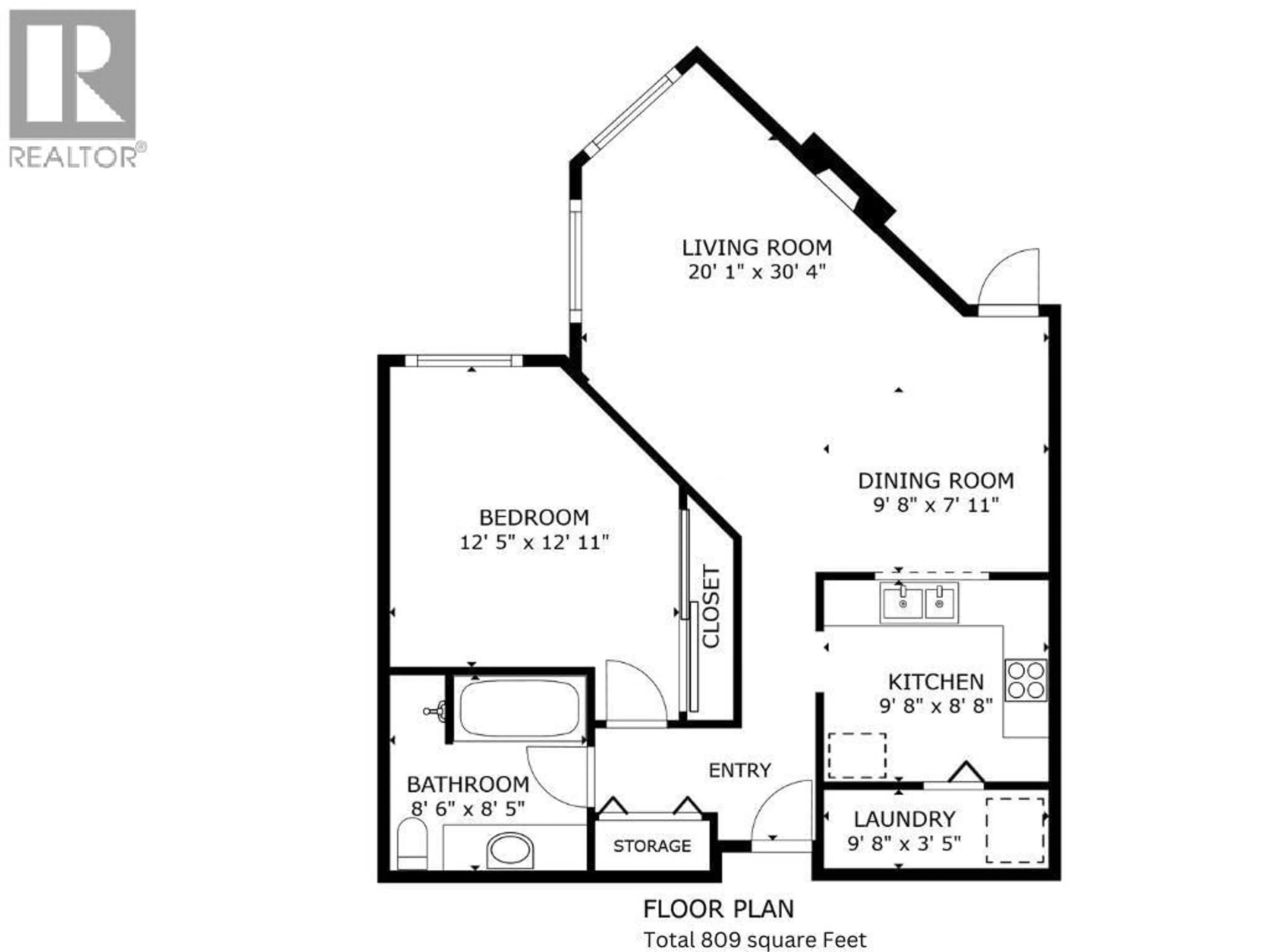
Welcome to Colony Bay! This rarely available 1-bedroom, 1-bathroom condo offers over 806 sqft of bright and spacious living. Enjoy two large balconies, perfect for soaking up the sun and fresh air. The building underwent a full rainscreen upgrade in 2022, including balconies, windows, doors, decks, and siding for peace of mind. Additional updates include repiped plumbing (2011) and a new roof (2014). Inside, the home features newer laminate hardwood flooring in the living room and hallway, re-tiled kitchen and bathroom floors, and a quiet, open outlook from the living area. The kitchen has updated lighting fixtures, and the home includes the convenience of in-suite laundry, a cozy gas fireplace, and secured underground parking. Located in the heart of Richmond, this home is just a short walk to Richmond Centre, Minoru Park, and the SkyTrain, offering the perfect blend of comfort and convenience. (id:39198)
Property Details
Interior
Features
Exterior
Parking
Garage spaces -
Garage type -
Total parking spaces 1
Condo Details
Amenities
Laundry - In Suite
Inclusions
Property History
25




