1004 - 6633 PEARSON WAY, Richmond, British Columbia V7C0C4
Contact us about this property
Highlights
Estimated valueThis is the price Wahi expects this property to sell for.
The calculation is powered by our Instant Home Value Estimate, which uses current market and property price trends to estimate your home’s value with a 90% accuracy rate.Not available
Price/Sqft$1,128/sqft
Monthly cost
Open Calculator
Description
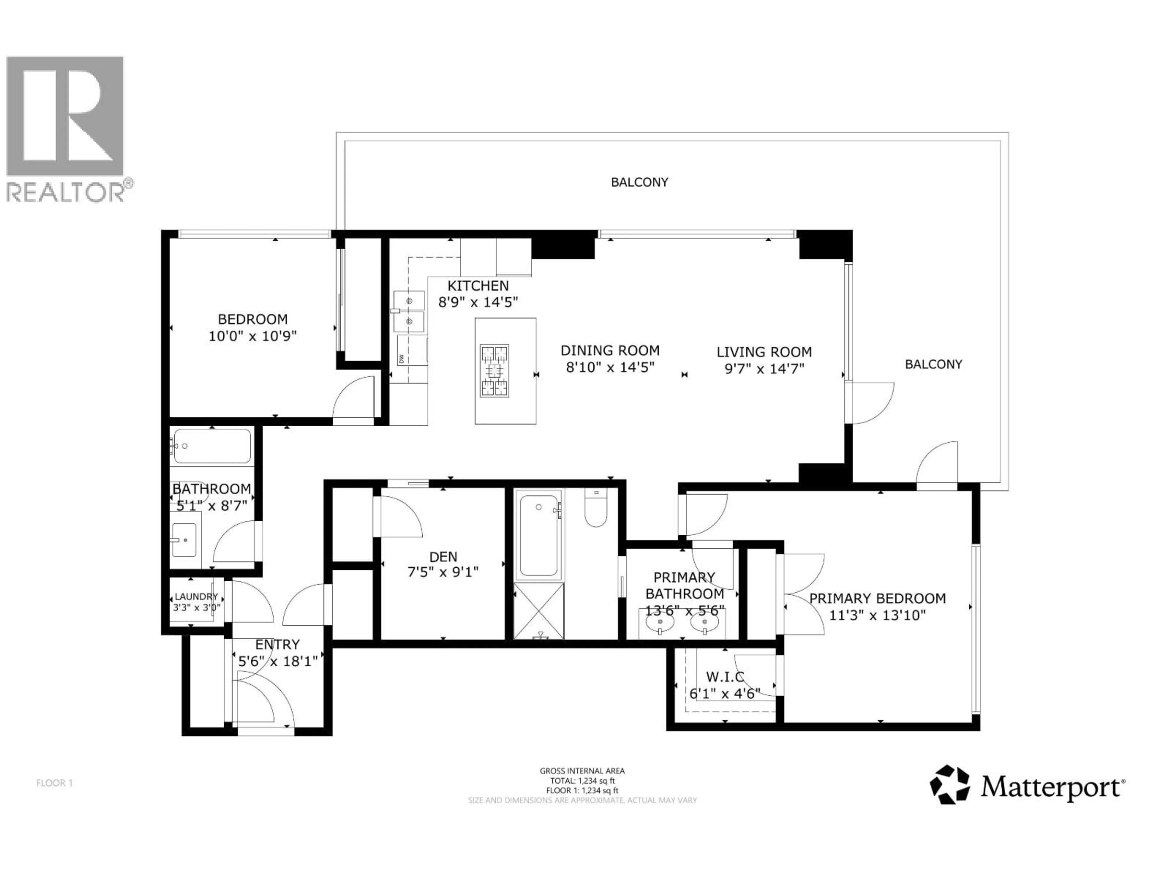
Welcome to this bright corner unit in 2River Green, a waterfront community. Offering over 1,240 square ft of well-designed living space, this home features 2 bedrooms plus a large den with its own closet, ideal as a third bedroom or home office. Premium appliances and central heating and cooling complete the modern interior. Enjoy Southeast exposure with abundant natural light, overlooking the beautifully landscaped garden and courtyard with water views. The oversized wrap-around balcony is perfect for outdoor entertaining and summer BBQs.2River Green is a prestigious low-density community with only 171 residences, offering enhanced privacy and exclusivity. Resort-style amenities,24-hour concierge service!First time on the market - don´t miss this rare opportunity! (id:39198)
Property Details
Interior
Features
Exterior
Features
Parking
Garage spaces -
Garage type -
Total parking spaces 1
Property History
32




