1345 53A STREET, Delta, British Columbia V4M3E8
Contact us about this property
Highlights
Estimated valueThis is the price Wahi expects this property to sell for.
The calculation is powered by our Instant Home Value Estimate, which uses current market and property price trends to estimate your home’s value with a 90% accuracy rate.Not available
Price/Sqft$649/sqft
Monthly cost
Open Calculator
Description
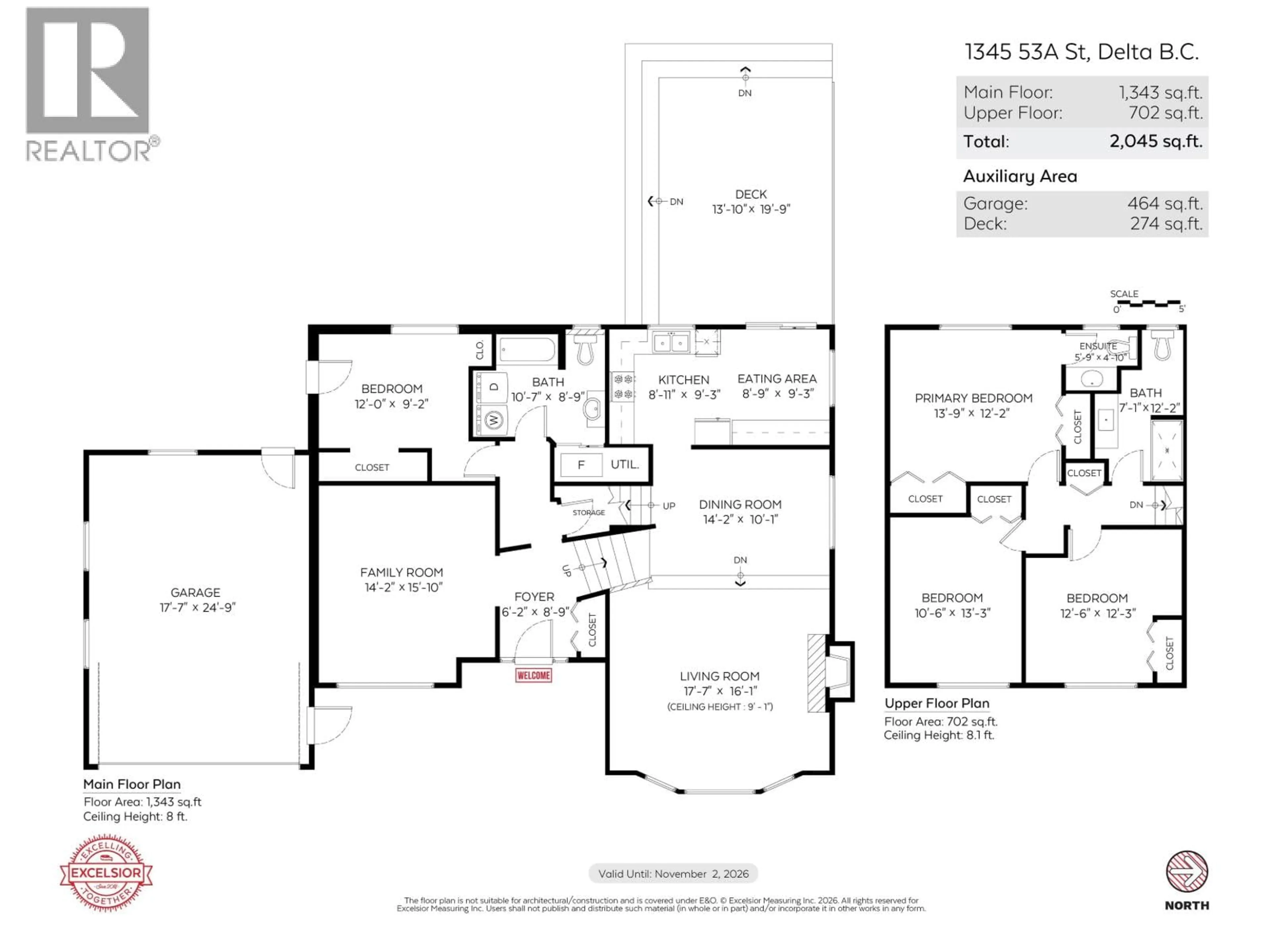
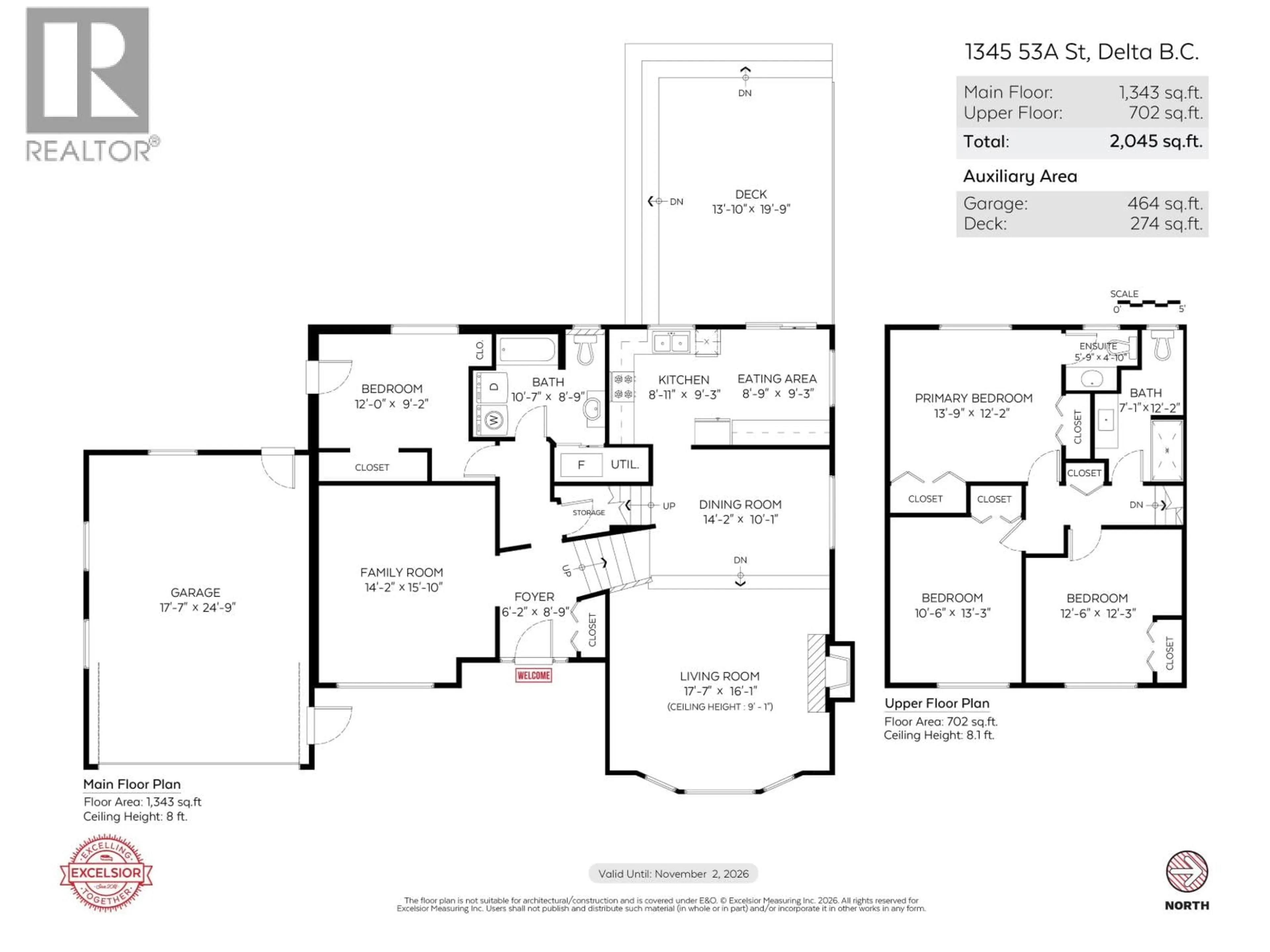
Updated 4-bedroom, 2.5-bath home offering over 2,000 sqft of living space on a 7,696 sqft lot. The bright kitchen overlooks the private, west-facing backyard and opens to a spacious deck, perfect for entertaining. Large dining area and adjacent living room with a cozy fireplace create an inviting main floor. Upstairs offers 3 bedrooms, including a generous primary with 2-piece ensuite, while the lower level features a flexible 4th bedroom, full bathroom and family room. Enjoy figs and apples from your own trees in the back yard. Updates include interior paint, downstairs bathroom and newer windows. Centrally located, just a short walk to schools, town centre and transit. (id:39198)
Property Details
Interior
Features
Exterior
Parking
Garage spaces -
Garage type -
Total parking spaces 6
Property History
40




