10969 86A AVENUE, Delta, British Columbia V4C2Y3
Contact us about this property
Highlights
Estimated valueThis is the price Wahi expects this property to sell for.
The calculation is powered by our Instant Home Value Estimate, which uses current market and property price trends to estimate your home’s value with a 90% accuracy rate.Not available
Price/Sqft$473/sqft
Monthly cost
Open Calculator
Description
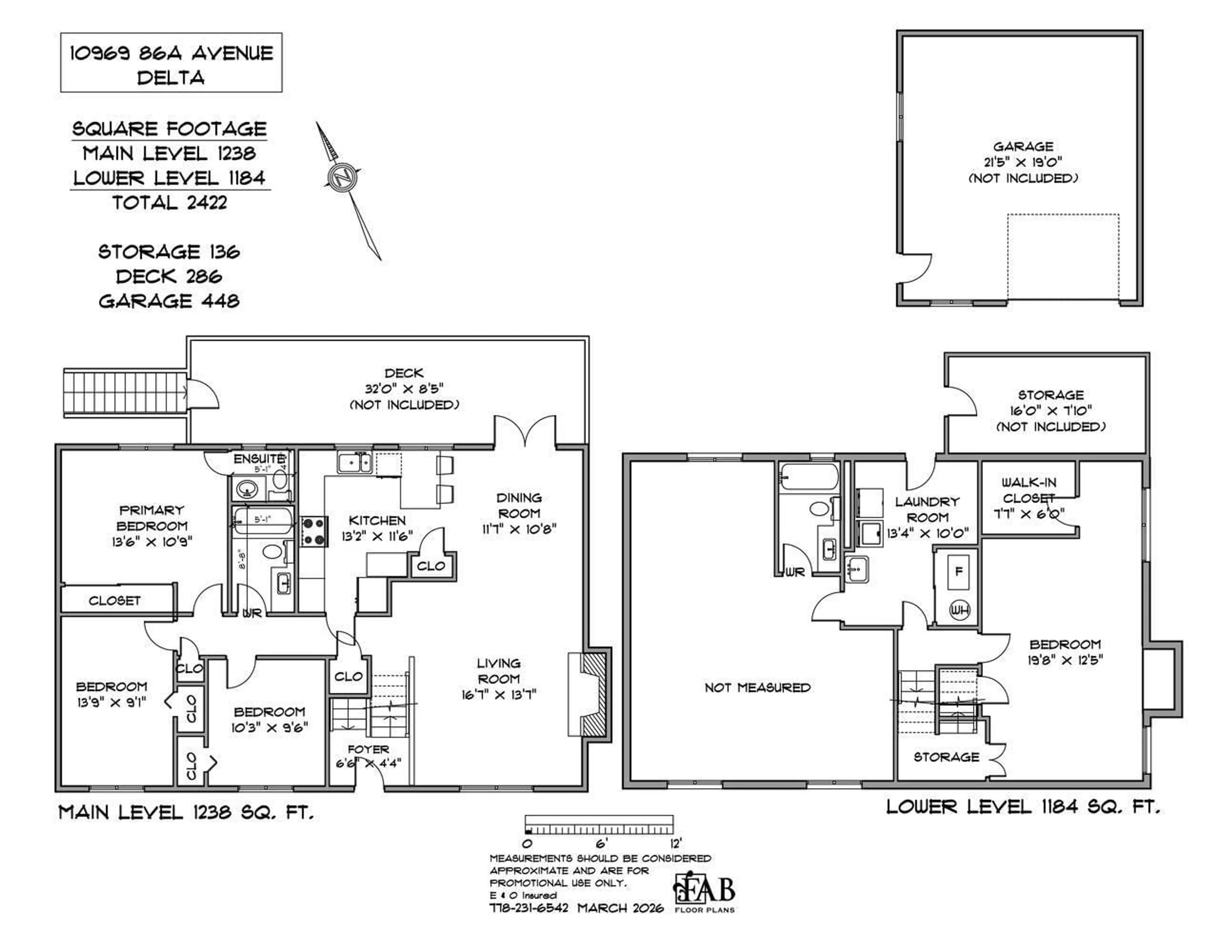
This well-maintained and inviting home offers a great mix of comfort, convenience, and potential. Just five minutes from Hwy 17, it provides quick access to Vancouver, shopping, dining, and essentials. The home is also close to parks, transit, and top-rated schools-perfect for families. Inside, you'll find spacious rooms with tasteful updates, including sleek quartz countertops. The fully fenced backyard is a private retreat, ideal for relaxing or entertaining. A separate basement suite adds flexibility for extended family or mortgage-helper potential; however. Property contains accommodation which is not authorized. Whether you're looking to move in or invest, this home offers strong long-term value. 24 Hours' Notice. Touch Base Pls. Tks Luke (id:39198)
Property Details
Interior
Features
Exterior
Parking
Garage spaces -
Garage type -
Total parking spaces 6
Property History
36




