4766 SPRUCE WAY, Tsawwassen, British Columbia V4M0A8
Contact us about this property
Highlights
Estimated valueThis is the price Wahi expects this property to sell for.
The calculation is powered by our Instant Home Value Estimate, which uses current market and property price trends to estimate your home’s value with a 90% accuracy rate.Not available
Price/Sqft$553/sqft
Monthly cost
Open Calculator
Description
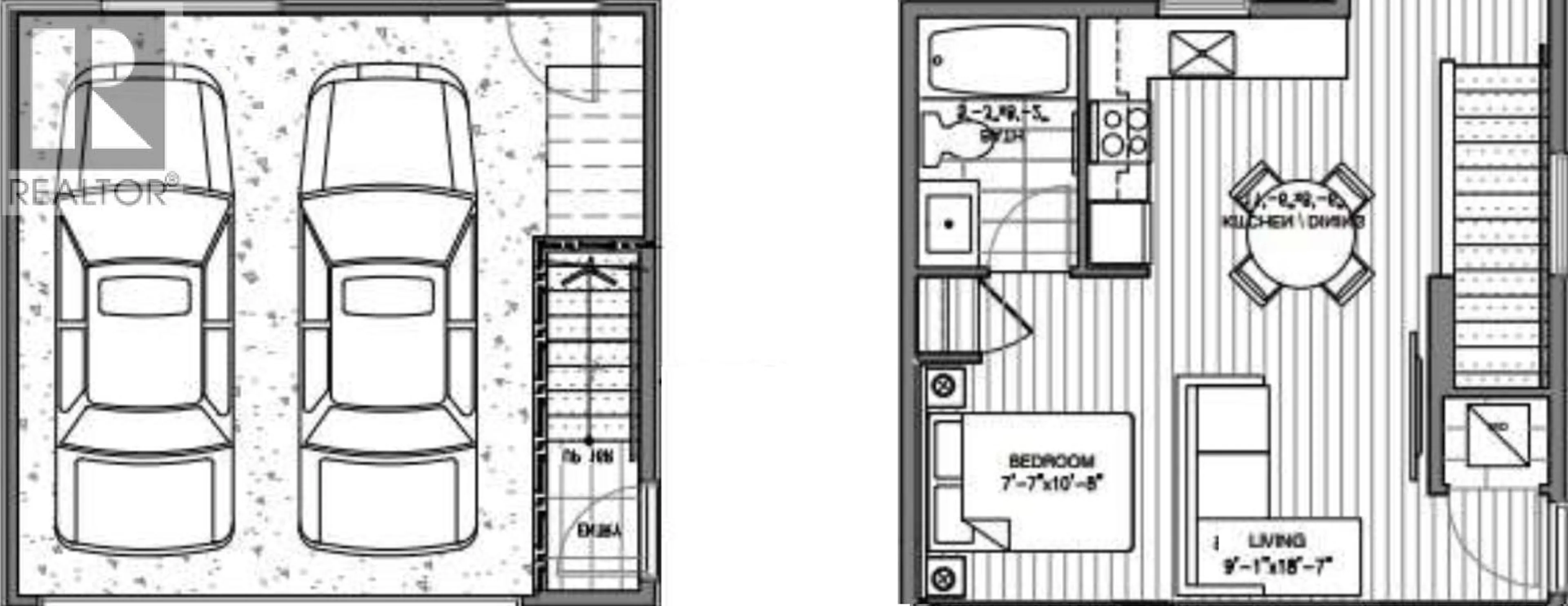
Discover this 4-bedroom corner lot home just a 4-minute walk to Tsawwassen Mills. The main home features A/C, a modern kitchen with a gas stove, stainless steel appliances, quartz counters, a large entertainment island, and an approved deck by Tsawwassen First Nation costed $20,000 perfect for hosting friends and family. The double garage is EV-charging ready. The legal 519sf couch house is an excellent mortgage helper, generating approximately $1,900/month, and offers a private entrance with its own parking, a full kitchen, in-suite laundry, and a full bath. Perfect for families living together across generations, homeowners, or investors seeking strong cash flow. Open House - Sunday 12 - 2pm. May, 3nd 2026. (id:39198)
Property Details
Interior
Features
Exterior
Parking
Garage spaces -
Garage type -
Total parking spaces 3
Property History
21





