308 - 2000 HANNINGTON ROAD, Langford, British Columbia V9B6R6
Contact us about this property
Highlights
Estimated valueThis is the price Wahi expects this property to sell for.
The calculation is powered by our Instant Home Value Estimate, which uses current market and property price trends to estimate your home’s value with a 90% accuracy rate.Not available
Price/Sqft$734/sqft
Monthly cost
Open Calculator
Description
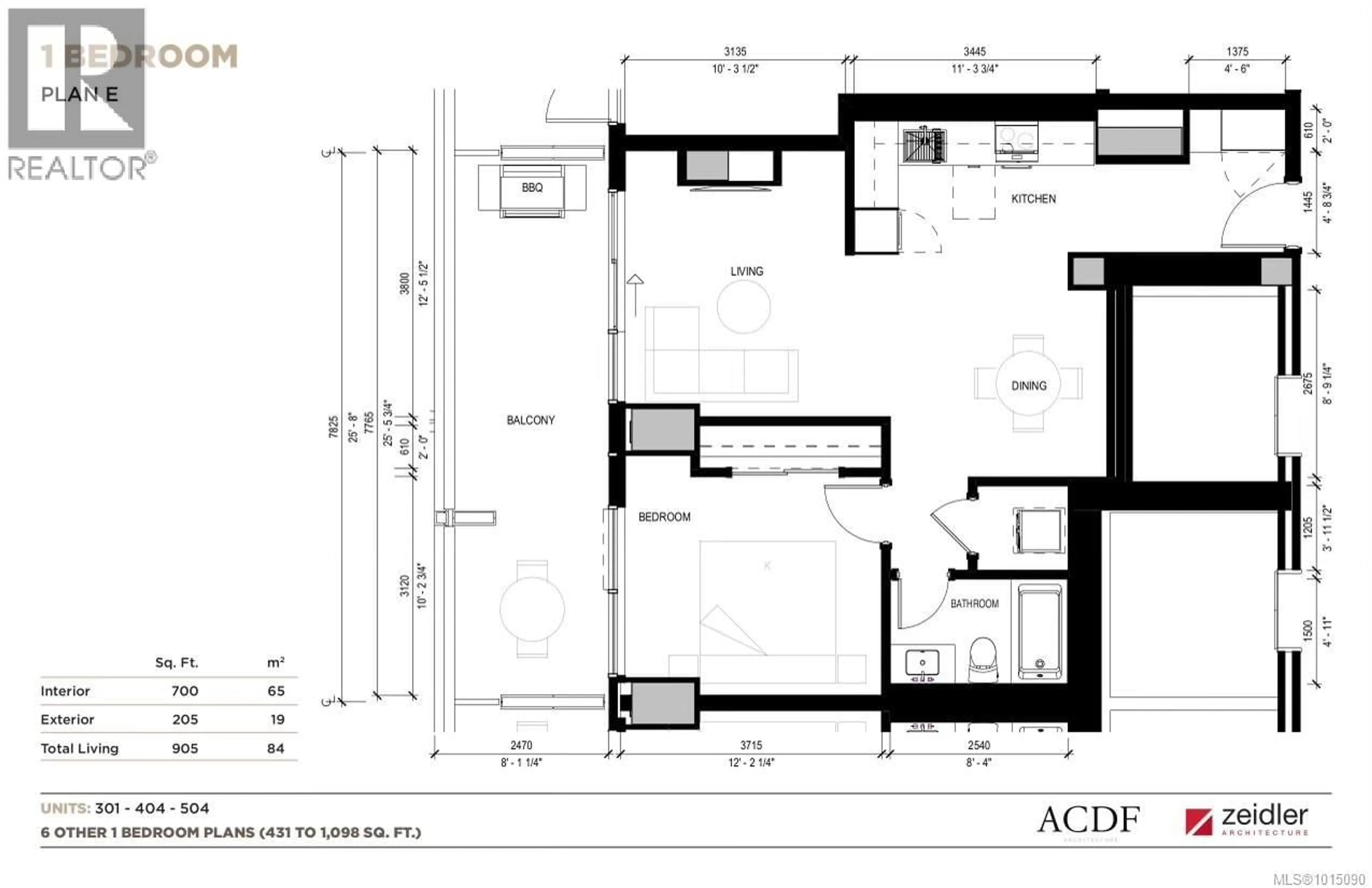
This elegant one-bedroom, one-bathroom luxury condo at the highly desirable One Bear Mountain features one of the building’s most sought-after floor plans and is vacant and turnkey ready. Soaring 10-ft ceilings, floor-to-ceiling windows, and a 205 sqft balcony offer breathtaking mountain views. The modern kitchen boasts Italian cabinetry, quartz countertops, and integrated Bosch appliances. High-end finishes include hardwood flooring, heated bathroom tiles, soft-close cabinetry, and air conditioning. Additional perks include in-suite laundry and a secured parking stall with an EV charger. Residents enjoy premium amenities: an outdoor pool, gym, yoga studio, sky lounge, pet and car wash, and business center. Golf, dining, and trails are just steps away. GST INCLIDED (id:39198)
Property Details
Interior
Features
Main level Floor
Bathroom
Primary Bedroom
1 x 1Dining room
1 x 1Living room
1 x 1Exterior
Parking
Garage spaces -
Garage type -
Total parking spaces 1
Condo Details
Inclusions
Property History
38





