1161 MOONSTONE LOOP, Langford, British Columbia V9B0Y6
Contact us about this property
Highlights
Estimated valueThis is the price Wahi expects this property to sell for.
The calculation is powered by our Instant Home Value Estimate, which uses current market and property price trends to estimate your home’s value with a 90% accuracy rate.Not available
Price/Sqft$334/sqft
Monthly cost
Open Calculator
Description
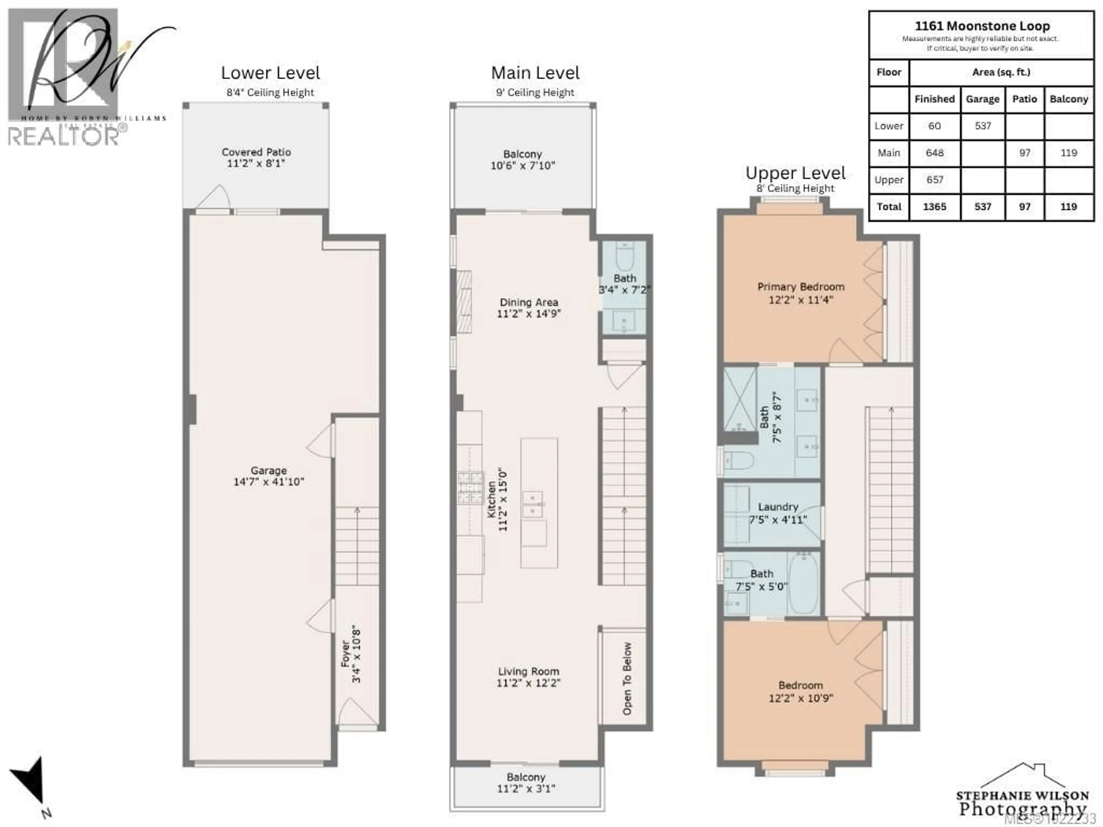
Welcome to 1161 Moonstone Loop in Bear Mountain’s South Point community! This bright 2 Bed, 3 Bath END UNIT townhouse offers stunning mountain views and a flexible, open-concept layout. The chef-inspired kitchen features stainless steel appliances, two-tone cabinetry, and a spacious island. The living and dining areas can be arranged to suit your lifestyle—dine by the fireplace or relax and enjoy the view. Upstairs, a bright skylight adds natural light, and the primary suite offers oversized closets and a spa-like ensuite with radiant floor heating and a glass shower. The second bedroom also includes its own ensuite, and a full laundry room is conveniently located upstairs near both bedrooms. Enjoy two private balconies and a low-maintenance backyard. The tandem double garage provides parking, storage, or space for a gym/office with its own entrance. Just one minute to the highway for a quick Victoria commute! (id:39198)
Property Details
Interior
Features
Second level Floor
Laundry room
5' x 7'Laundry room
9' x 7'Bedroom
11' x 12'Bathroom
Exterior
Parking
Garage spaces -
Garage type -
Total parking spaces 2
Condo Details
Inclusions
Property History
45





