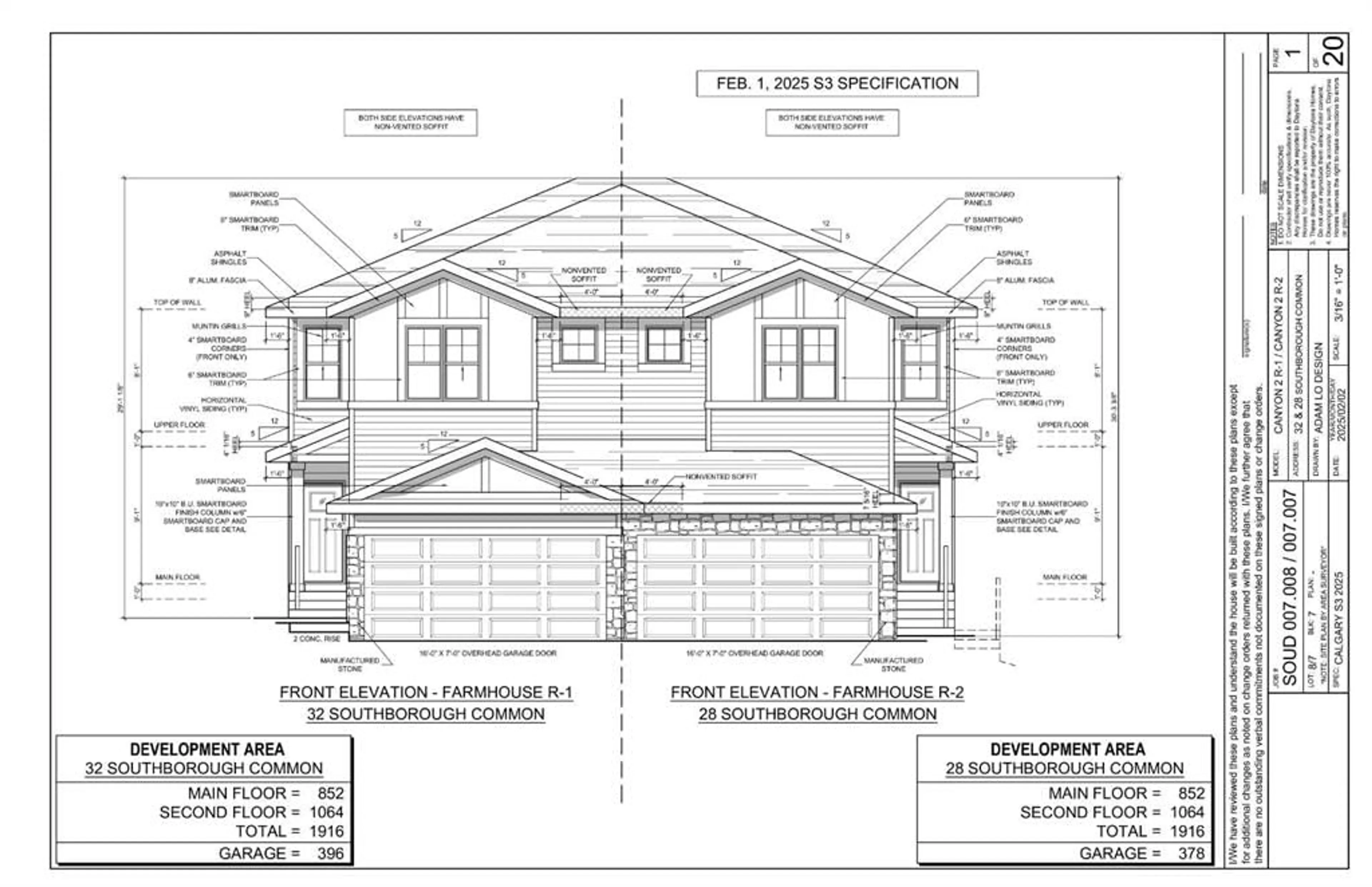
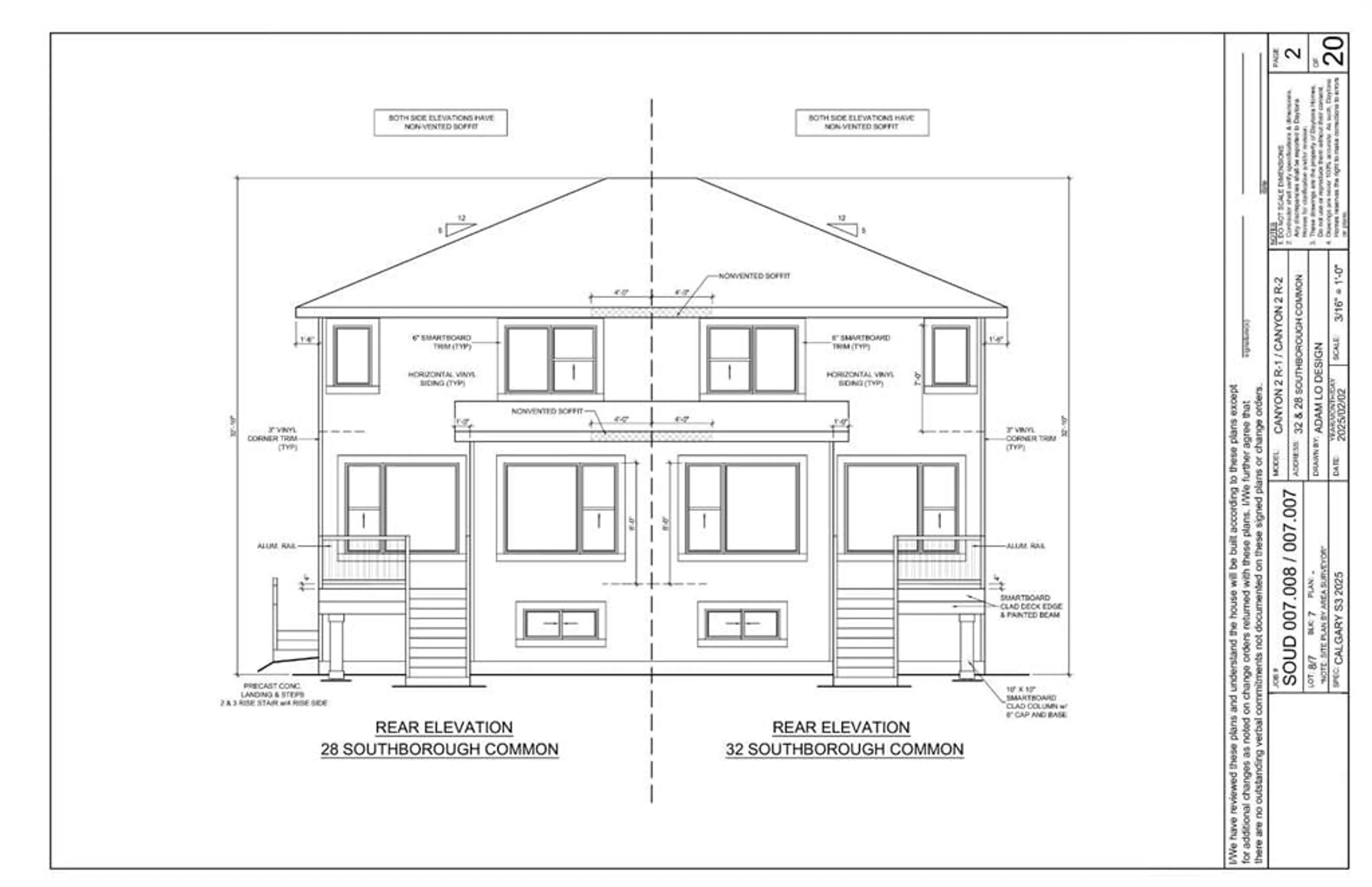
32 Southborough Common, Cochrane, Alberta T4C 3J7
Contact us about this property
Highlights
Estimated valueThis is the price Wahi expects this property to sell for.
The calculation is powered by our Instant Home Value Estimate, which uses current market and property price trends to estimate your home’s value with a 90% accuracy rate.Not available
Price/Sqft$339/sqft
Monthly cost
Open Calculator
Description
This exceptional half duplex in Cochrane's rapidly developing Southbow Landing community is a strategic investment, uniquely designed for both premium family living and significant financial advantage, while adhering strictly to a modern, concise, and clear standard. The main floor opens with a welcoming foyer, leading into a bright, open-concept layout defined by durable, contemporary finishes. The core of the home is the functional kitchen, typically featuring an island and ample prep space, which flows naturally into the casual nook and the spacious Great Room, creating an ideal area for daily life and entertaining. Efficiency is maximized by the crucial walk-through pantry connecting the kitchen to the convenient mudroom. Moving upstairs, the floor plan is dedicated to rest and privacy, highlighted by the Primary Bedroom retreat, which boasts a generous 5-piece ensuite bathroom ( with dual sinks) and a walk-in closet. The upper level is completed by two additional well-proportioned bedrooms—one of which includes its own walk-in closet—and a 4-piece secondary bathroom. The true distinguishing feature of this property, however, lies in the lower level: a fully finished and professionally legal secondary suite. This self-contained, income-generating unit is positioned as a powerful mortgage helper or an excellent option for multi-generational living, featuring its own additional spacious bedroom, a full bathroom, a complete second kitchen, and a private family room, offering independence and a strong return on investment within a highly desirable community close to pathways, parks, and all of Cochrane's amenities.
Property Details
Interior
Features
Main Floor
Foyer
7`2" x 7`11"2pc Bathroom
5`0" x 6`2"Great Room
16`10" x 12`4"Kitchen
9`0" x 11`9"Exterior
Features
Parking
Garage spaces 2
Garage type -
Other parking spaces 2
Total parking spaces 4
Property History
11






