3157 FAVEL DRIVE, Regina, Saskatchewan S4V4C7
Contact us about this property
Highlights
Estimated valueThis is the price Wahi expects this property to sell for.
The calculation is powered by our Instant Home Value Estimate, which uses current market and property price trends to estimate your home’s value with a 90% accuracy rate.Not available
Price/Sqft$318/sqft
Monthly cost
Open Calculator
Description
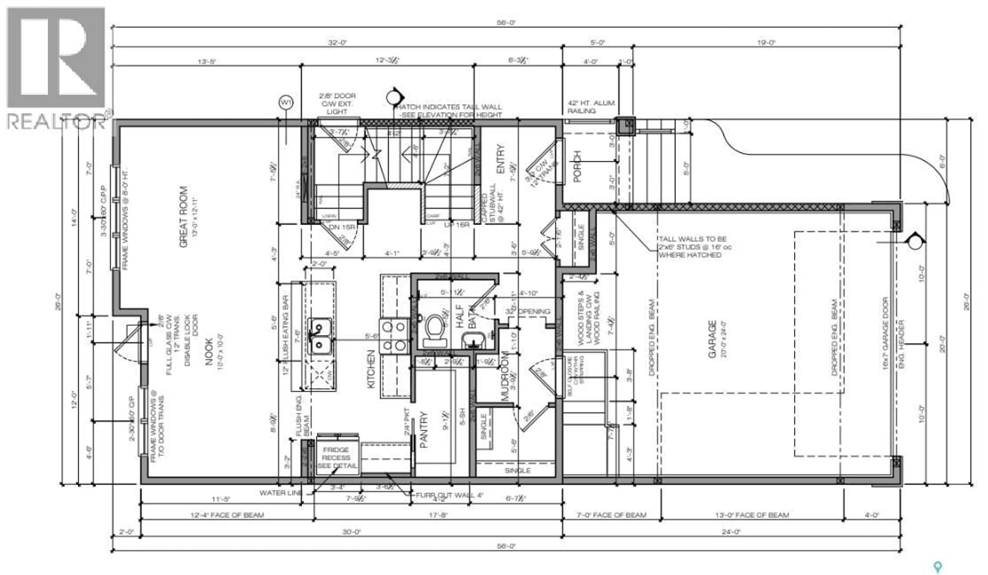
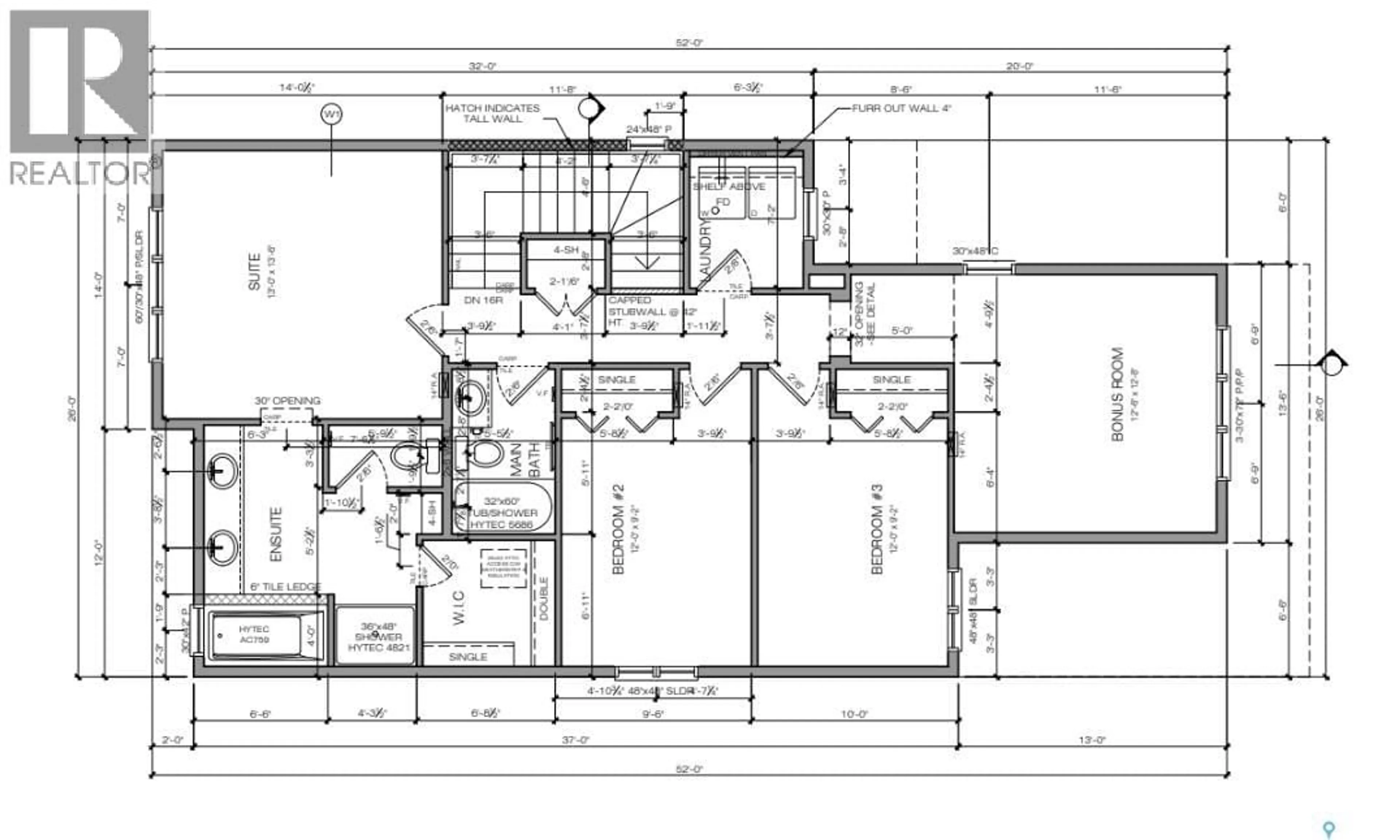
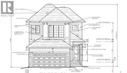
Welcome to Homes by Dream's Sullivan that's under construction at 3157 Favel Drive in Eastbrook. This home is located near shopping, restaurants, an elementary school, walking paths, parks & more. It's main floor open concept design features a bright kitchen with quartz countertops, ceramic tile backsplash, soft close to the drawers & doors, stainless steel fridge, stove, microwave hoodfan, dishwasher and a large walk in pantry. The main floor also features a 2 piece bath, mudroom with a walk in closet, dining area and a spacious living room. The 2nd floor includes a sizeable bonus room, laundry room, 3 piece bath, a large primary bedroom, spacious ensuite, which includes a soaker tub, separate shower and double sinks, walk in closet and 2 additional bedrooms. The 3 piece bath & ensuite are finished with quartz countertops, ceramic tile flooring, ceramic tile backsplash and soft close to the drawers & doors. There's a side entry door to the basement and the basement is bright with large windows that meet egress and ready for development. The foundation features a DMX foundation wrap and the home also includes front yard landscaping and an attached 2 car garage. (id:39198)
Property Details
Interior
Features
Main level Floor
Kitchen
Dining room
10 x 10Living room
12.11 x 132pc Bathroom
Property History
3



